

Viktor Klapper GmbH
Herr Viktor Klapper jun.
087 ···
Nr. anzeigenPreise & Kosten
Provision für Käufer
provisionsfrei
Lage
Feichten an der Alz ist eine Gemeinde im oberbayerischen Landkreis Altötting und liegt nur gute 15 Minuten Autofahrt vom Chiemsee oder der österreichischen Grenze entfernt. In den Bergen ist man in ca. einer halben Stunde Fahrtzeit.
Unmittelbar an den Ort schließt sich Tachterting westlich an, hier können bequem alle...
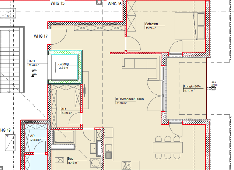
Die Wohnung
Wohnungslage
2. Geschoss (Dachgeschoss)
Bezug
2026
Derzeitige Nutzung
frei
Wohnanlage
Energie & Heizung
Warum sehe ich diese Anzeige? – Du siehst diese Anzeige basierend auf Ihrer Navigation auf unserer Website und den Suchkriterien, die du verwendet hast.
Energieausweistyp
Bedarfsausweis
Gebäudetyp
Wohngebäude
Baujahr laut Energieausweis
2024
Wesentliche Energieträger
Heizwerk (Fernwärme), regenerativ
Gültigkeit
16.09.2024 bis 15.09.2034
Effizienzklasse
A
Endenergiebedarf
39,00 kWh/(m²·a)
Weitere Energiedaten
Energieträger
Fernwärme
Haustyp
KfW 55
Heizungsart
Fußbodenheizung
Details
Objektbeschreibung
Objektbeschreibung
Die neu entstehende Wohnanlage im Ortsteil Mankham unweit von Tachterting mit insgesamt zwei mal 20 Wohnungen, Tiefgarage, Aufzügen, Balkonen, Loggien und Gartenanteilen ist ein schönes Beispiel wie ein Mehrfamilienhaus und ländliches Bauen und Wohnen vereint werden können.
Die beiden Häuser sind wie...
Weitere Informationen
Besichtigungstermine
Wir bitten von unangemeldeten Baustellenbegehungen aus Sicherheitsgründen Abstand zu nehmen. Besichtigungen können nach telefonischer Rücksprache jederzeit vereinbart werden.
Auf Anfrage sind weitere Wohnungen in verschiedenen Größen verfügbar. Wir freuen uns auf Ihre...
Dokumente
Anbieter der Immobilie

Online-ID: 2lk2s53
Referenznummer: WO 17
Finde Angebote wie dieses
Hier geht es zu unserem Impressum, den Allgemeinen Geschäftsbedingungen, den Hinweisen zum Datenschutz und nutzungsbasierter Online-Werbung.