Sofort Rendite: Vermietetes Büro im Jugendstilgebäude - Top Investment - zentrale Lage
Attraktive Kapitalanlage in zentraler Lage von Hof: Diese vermietete Büroeinheit mit ca. 118,90 m² Nutzfläche befindet sich in der repräsentativen historischen Wohnanlage "Alte Hufschmiede", einem stilvollen Gebäude im Jugendstil. Historische Architektur kombiniert mit moderner Nutzung macht diese Immobilie zu einem besonders interessanten Investment für Kapitalanleger.
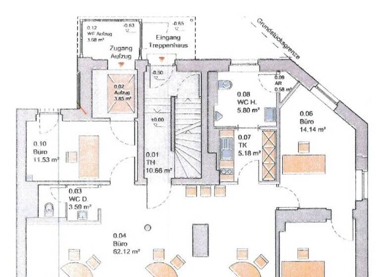
Die Gewerbeeinheit verfügt über vier großzügige Büroräume, eine Teeküche sowie getrennte Damen- und Herren-WCs. Das große Hauptbüro mit über 62 m² Fläche bietet eine flexible Nutzung, beispielsweise als Großraumbüro, Schulungsraum oder repräsentativer Empfangsbereich.
Das Gebäude ist massiv gebaut, vollständig unterkellert und über ein historisches Treppenhaus sowie einen modernen Personenaufzug erschlossen.
Die Büroeinheit ist derzeit vermietet, wodurch sich eine stabile Einnahmequelle für Investoren ergibt. Aufgrund der zentralen Lage und der gefragten Gewerbestruktur ist eine langfristige Vermietbarkeit sehr gut gegeben.
Merkmale
Denkmalschutz-Afa
Erdgeschoss
Personenaufzug
Einbauküche
Bad mit Fenster
Keller
Bodenbelag: Parkett
Investment-Highlights:
. Kaufpreis: 270.000 € . Vermietet . Gewerbefläche: ca. 118,90 m² . repräsentatives Jugendstilgebäude . Aufzug im Gebäude . gefragte Büro- und Praxislage
Ausstattung & Flächen:
. 4 Büroräume: . 62,12 m² . 15,96 m² . 14,14 m² . 11,53 m² . Teeküche: ca. 5,18 m² . WC Herren: ca. 5,8 m² . WC Damen: ca. 3,59 m² . Kellerraum vorhanden . Gas-Zentralheizung Baujahr 1999
Grundrisse
Grundrisse
1 / 1
Realisiere Dein Projekt
Bausubstanz und Energie
Möchtest du Details zum Energieverbrauch?
Baujahr1892
HeizungsartZentralheizung
EnergieträgerGas
Preisdetails
Kaufpreis
270000 €270.000 €
2.268,91 €/m²
Provision für Käufer
3,57 % auf den Kaufpreis inkl. MwSt Die Provision für den Käufer in Höhe von 3,57 % auf den Kaufpreis inkl. MwSt. ist bei notariellem Vertragsabschluss fällig und vom Käufer an die QUINZZ. GmbH zu zahlen.
Geschätzte Gesamtkosten
294.489 €1
Kaufpreis
270.000 €
Kaufnebenkosten
24.489 €
2
Notarkosten (1,5%)
4.050 €
Grunderwerbsteuer (3,5%)
9.450 €
Provision für Käufer (3,57%)
9.639 €
Grundbucheintrag (0,5%)
1.350 €
1Der angezeigte Wert ist eine automatisch berechnete Schätzung von immowelt.
2Bei den Angaben handelt es sich um ortsübliche Werte. Individuelle Kosten können abweichen.
Lage
Innenstadt, Hof (95028)
Der Anbieter hat die genaue Adresse nicht freigegeben
Die Immobilie befindet sich in attraktiver Lage von Hof in Oberfranken, in der Bismarckstraße. Das Gebiet ist als Mischgebiet (Wohnen und Gewerbe) ausgewiesen und bietet ideale Voraussetzungen für Büros, Praxen und Dienstleistungsunternehmen.
Durch die zentrale Lage sind die Innenstadt sowie zahlreiche Einkaufsmöglichkeiten, Gastronomie, Banken und Behörden schnell erreichbar. Unternehmen profitieren hier von einer guten Erreichbarkeit für Kunden und Mitarbeiter.
Auch die Verkehrsanbindung ist sehr gut: Der öffentliche Nahverkehr ist nur wenige Gehminuten entfernt. Der Hauptbahnhof von Hof ermöglicht schnelle regionale und überregionale Verbindungen. Über die nahegelegenen Autobahnen A9, A72 und A93 bestehen hervorragende Anbindungen nach Nürnberg, Bayreuth, Leipzig und Regensburg.
Diese Kombination aus zentraler Lage, historischer Architektur und stabiler Vermietung macht die Immobilie zu einer besonders interessanten Kapitalanlage.
Weitere Informationen
Sonstiges
Vielen Dank für Ihr Interesse an einer unserer angebotenen Immobilien.
Um schnell und unkompliziert weitere Informationen zu dem Objekt zu erhalten, nutzen Sie bitte die Funktion "Kontakt aufnehmen" bzw. "Nachricht schreiben" im jeweiligen Inserat. Bitte füllen Sie das Kontaktformular vollständig aus und geben Sie dabei Ihre vollständige Postanschrift, Telefonnummer sowie E-Mail-Adresse an.
Nach dem Absenden Ihrer Anfrage erhalten Sie automatisch eine E-Mail unseres Anfrage-Systems. Über den darin enthaltenen Link "Zum Exposé" gelangen Sie - nach Bestätigung der Datenschutzbestimmungen, unserer Allgemeinen Geschäftsbedingungen sowie Ihres Widerrufsrechts - direkt zum interaktiven Exposé der angefragten Immobilie.
Gemäß den aktuellen gesetzlichen Regelungen ist es erforderlich, dass Sie das Feld "Makler provisionspflichtig beauftragen" aktiv bestätigen, um Zugriff auf das vollständige Exposé zu erhalten. Bitte beachten Sie hierzu ausdrücklich: Ein Provisionsanspruch entsteht ausschließlich im Erfolgsfall, also erst nach erfolgreicher notarieller Beurkundung des Kaufvertrages.
Sollten Sie zusätzliche Informationen wünschen oder Fragen zur Immobilie haben, stehen wir Ihnen selbstverständlich gerne zur Verfügung - bevorzugt über das Anfrageformular oder telefonisch.
Telefonischer Kontakt: 0173 / 4194304 GWI - GRUND WERK INVEST Ihr professioneller Ansprechpartner für werthaltige Immobilien.
Energiepass
Energieausweis wird bei Besichtigung vorgelegt.
Stichworte
Anzahl der Badezimmer: 2, Bundesland: Bayern, 4 Etagen, modernisiert: 1999, Distanz zum Flughafen: 150.0, Distanz zum Hauptbahnhof: 1.2, Distanz zur Autobahn: 4.5, Distanz zum Bus: 0.15