Version: 8.22.6Navigation überspringen
780 €
3 Zimmer
Immowelt logo

Ladenfläche zur Miete
780 €
Nettomiete zzgl. NK
3 Zimmer

Ideal für Yoga-Studio, Beauty oder Concept Store!

Moderne Einheit in aufstrebendem Viertel mit perfekter Verkehrsanbindung zu vermieten!

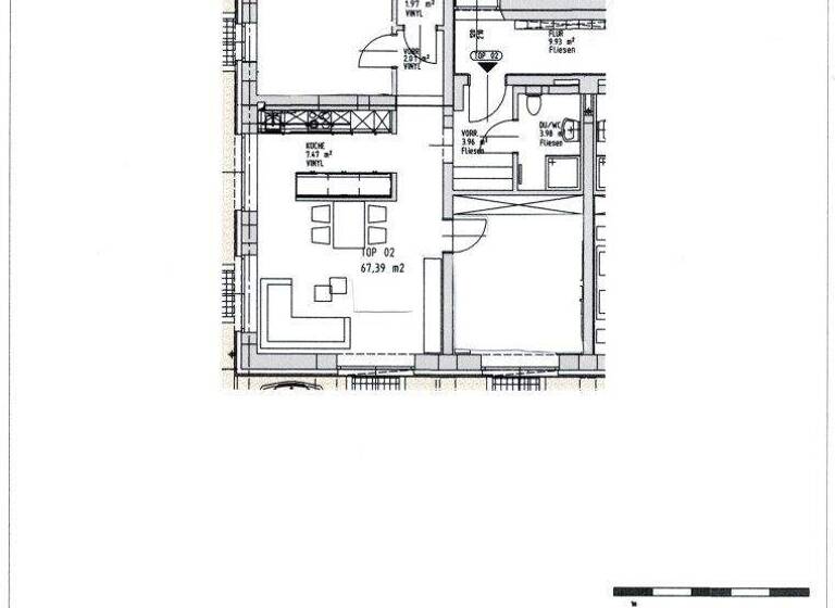
Auf ca. 67,40 m² stehen ein Vorraum, großer Beratungs- oder Verkaufsraum mit integrierter Küche, 2 Büros, Abstellraum und Sanitärbereich (Dusche und WC) zur Verfügung!

Die Lage garantiert eine hervorragende Erreichbarkeit, dank optimaler Anbindung an das städtische Verkehrsnetz.

Die Fläche verfügt über eine gute Ausstattung, ausreichend Parkmöglichkeiten sind im Umkreis gegeben.

Große Fensterfronten für Ihre perfekte Werbung oder Präsentationsfläche für Ihre Waren.

2 KFZ-Freistellplätze direkt vorm Gebäude können bei Bedarf angemietet werden (Euro 85,00 netto zzgl. gesetzl. USt).

Konditionen:

- Hauptmietzins monatlich netto: € 11,57/m² zzgl. 20 % USt

- Betriebskosten Akonto monatlich netto: € 2,00/m² zzgl. 20 % USt

- Kaution: 4 Bruttomonatsmieten

- Provision: 3 Bruttomonatsmieten zzgl. 20 % USt

 

Gerne stehen wir für Detailfragen bzw. eine unverbindliche Besichtigung zur Verfügung!

Petra Strobl - 0664 24 733 58

 

 

 

 

 

 

Wir weisen darauf hin, dass zwischen dem Vermittler und dem zu vermittelnden Dritten ein familiäres oder wirtschaftliches Naheverhältnis besteht.

Der Vermittler ist als Doppelmakler tätig.

Infrastruktur / Entfernungen

Gesundheit
Arzt <500m
Apotheke <500m
Krankenhaus <1.000m
Klinik <1.000m

Kinder & Schulen
Kindergarten <500m
Schule <500m
Universität <2.000m
Höhere Schule <2.000m

Nahversorgung
Supermarkt <500m
Bäckerei <500m
Einkaufszentrum <1.500m

Sonstige
Bank <500m
Geldautomat <500m
Post <1.000m
Polizei <1.000m

Verkehr
Bus <500m
Straßenbahn <500m
Bahnhof <500m
Autobahnanschluss <1.000m
Flughafen <3.500m

Angaben Entfernung Luftlinie / Quelle: OpenStreetMap

Merkmale

  • Bezug: Jänner 2026
  • Einbauküche
  • 2 Stellplätze: 2 Außen-Stellplätze
  • Barrierefrei
  • Bodenbelag: Fliesen, Linoleum

Grundrisse

Grundrisse
1 / 1

Realisiere Dein Projekt

Bausubstanz und Energie

Heizwärmebedarf (HWB)

B

Gesamtenergieeffizienz (fGEE)

  • Baujahr1952
  • Zustand der ImmobilieNeubau, Gepflegt
  • HeizungsartFußbodenheizung
Immowelt logo

Mietkosten

Nettokaltmiete
780 €
Betriebskosten
134,78 €
Provision für Mieter
3.293,21 € inkl. 20% USt.
Kaution
4.390,96 €
Weitere Preisinformationen
2 Stellplätze
Nettokaltmiete: 780,00 EUR

Lage

address-icon
WaldeggLinz (4020)
Ideale Lage am Andreas-Hofer-Platz mit exzellenter Verkehrsanbindung: Straßenbahn ist nur wenige Gehminuten entfernt, unmittelbare Nähe zum Linzer Bahnhof, gute Erreichbarkeit der Autobahnauffahrt.

Weitere Informationen

Stichworte Stellplatz vorhanden, Bürofläche: 67,39 m², Anzahl der Badezimmer: 1, Anzahl der separaten WCs: 1, Bundesland: Oberösterreich, Wohnungsnr.: 2, modernisiert: 2023

Weitere Services

Lust auf eine Besichtigung?
Eine Frage zur Immobilie?
Nachricht hinzufügen
Mit der Nutzung der oben angegebenen Telefonnummer oder durch Klicken auf „Kontaktieren“ akzeptierst Du die Allgemeinen Nutzungsbedingungen, denen Du jederzeit widersprechen kannst. Weitere Informationen zum Datenschutz

Über den Anbieter

Höhnegasse 20/3, 1180 WIEN
partner badge
3 Jahre Partnerschaft
Frau Petra StroblDein Kontakt
Online-ID: 2m7qp5f
Referenznummer: OBGC20251124165529722d4ada5caf1
Abra IC Immobilien GmbH
Abra IC Immobilien GmbH
Bewertung: 5 von 5 Sternen
Nachricht hinzufügen
Mit der Nutzung der oben angegebenen Telefonnummer oder durch Klicken auf „Kontaktieren“ akzeptierst Du die Allgemeinen Nutzungsbedingungen, denen Du jederzeit widersprechen kannst. Weitere Informationen zum Datenschutz
Wie zufrieden bist du mit dieser Seite (nicht mit der Immobilie selbst)?