Version: 8.24.0Navigation überspringen
1.950.000 €
5 Zimmer  •  200 m²
Immowelt logo

Penthouse zum Kauf
1950000 €
9.750 €/m²
5 Zimmer  •  200 m²

Luxuriöses Understatement! Penthousewohnung über zwei Etagen mit großer Dachterrasse

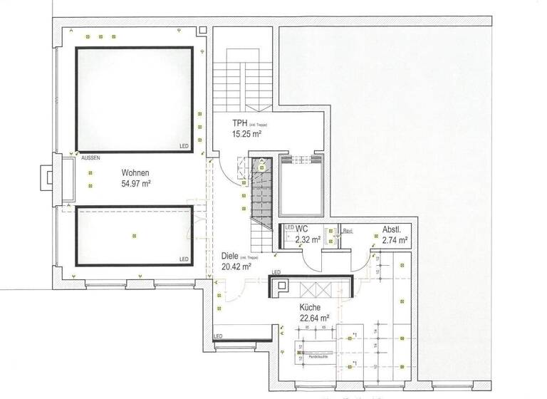
Diese exklusive und sehr ruhige Penthousewohnung erstreckt sich über zwei Ebenen (6. und 7.OG) und bietet auf rund 200 m² ein außergewöhnliches Wohnambiente für höchste Ansprüche. Großzügige Raumstrukturen, hochwertige Materialien und ein durchdachtes Grundrisskonzept verbinden sich zu einem Wohngefühl von besonderer Eleganz und Privatsphäre.

Auf der unteren Ebene empfängt Sie ein weitläufiger Wohnbereich mit beeindruckender Offenheit und direktem Zugang zur über 70 m² großen Dachterrasse - ein einzigartiger Rückzugsort mit viel Raum für Entspannung, stilvolle Abende oder repräsentative Empfänge. Die halboffene Küche fügt sich harmonisch in den Wohnbereich ein und verbindet Funktionalität mit modernem Design. Ergänzt wird diese Etage durch ein Gäste-WC sowie einen praktischen Abstellraum. Der Balkon auf dieser Ebene erweitert den Wohnraum zusätzlich ins Freie.

Die obere Etage ist als privater Rückzugsbereich konzipiert und überzeugt mit einem großzügigen Schlafzimmer mit eigenem Balkon und direktem Zugang zu einem luxuriösen Badezimmer. Dieses ist ausgestattet mit einer Badewanne inklusive Whirlpoolfunktion, einer separaten Dusche sowie zwei eleganten Waschtischen und lädt zu entspannenden Wellness-Momenten ein. Ein stilvolles Ankleidezimmer sorgt für höchsten Komfort und Ordnung. Darüber hinaus stehen ein weiterer Büroraum sowie ein separater Hauswirtschaftsraum zur Verfügung, die das Raumangebot ideal abrunden.
Zu der Wohnung selber gehören zwei Tiefgaragenstellplätze im 2. UG hintereinander, die je zu 25.000€ angeboten werden, sowie ein separater Kellerraum.

Diese Penthousewohnung vereint exklusives Wohnen, moderne Architektur und großzügige Außenflächen zu einem außergewöhnlichen Zuhause über den Dächern der Stadt.

Merkmale

  • Bezug: nach Vereinbarung
  • Haustiere erlaubt
  • Einbauküche
  • Personenaufzug
  • Kelleranteil
  • 2 Stellplätze: 2 Tiefgaragenstellplätze
  • Gäste-WC
  • Balkon

Grundrisse

Grundrisse
1 / 2

Realisiere Dein Projekt

Bausubstanz und Energie

Der Anbieter hat keine Informationen zum Energieverbrauch bereit gestellt.
  • Baujahr1996
  • Zustand der Immobilieneuwertig
  • EnergieträgerFernwärme
Immowelt logo

Preisdetails

Kaufpreis
1950000 €
9.750 €/m²
Preis pro Stellplatz
25000 €
Provision für Käufer
2,98 % inkl. gesetzl. MwSt. vom Kaufpreis, fällig nach notarieller Beurkundung inkl. MwSt.
Weitere Preisinformationen
2 Tiefgaragenstellplätze, Kaufpreis je: 25.000,00 EUR
Geschätzte Gesamtkosten
2.173.860 €1
Kaufpreis
1.950.000 €
Notarkosten (1,5%)
29.250 €
Grunderwerbsteuer (6,5%)
126.750 €
Provision für Käufer (2,98%)
58.110 €
Grundbucheintrag (0,5%)
9.750 €
1Der angezeigte Wert ist eine automatisch berechnete Schätzung von immowelt.
2Bei den Angaben handelt es sich um ortsübliche Werte. Individuelle Kosten können abweichen.

Lage

address-icon
GolzheimDüsseldorf (40474)
Der Anbieter hat die genaue Adresse nicht freigegeben
Das Penthouse liegt im Düsseldorfer Stadtteil Golzheim im Norden der Stadt, einem überwiegend grünen, innerstädtischer Stadtteil mit Anbindung zum Rhein und dem Nordpark. Das Gebäude liegt in einer ruhigen Stichstrasse zwischen Uerdinger Straße und Am Bonneshof, einem urban geprägten Quartier, mit internationalen Unternehmen und Wohngebäuden.

Die Lage überzeugt durch gute Einkaufsmöglichkeiten und eine herausragende Verkehrsanbindung: Innenstadt, Flughafen und überregionale Verkehrsachsen sind in kürzester Zeit erreichbar.

Die zentralen Lage der Penthousewohnung bietet eine angenehme Ruhe.

Weitere Informationen

Sonstiges RECHTSHINWEIS
Da wir Objektangaben nicht selbst ermitteln, übernehmen wir hierfür keine Gewähr. Dieses Exposé ist nur für Sie persönlich bestimmt. Eine Weitergabe an Dritte ist an unsere ausdrückliche Zustimmung gebunden und unterbindet nicht unseren Provisionsanspruch bei Zustandekommen eines Vertrages. Alle Gespräche sind über unser Büro zu führen. Bei Zuwiderhandlung behalten wir uns Schadenersatz bis zur Höhe der Provisionsansprüche ausdrücklich vor. Zwischenverkauf ist nicht ausgeschlossen. Stichworte Nutzfläche: 10,00 m², Anzahl der Schlafzimmer: 2, Anzahl der Badezimmer: 2, Anzahl der separaten WCs: 1, Anzahl Balkone: 2, Anzahl Terrassen: 1, Balkon-Terrassen-Fläche: 70,00 m², Bundesland: Nordrhein-Westfalen, 2 Etagen, Distanz zur Autobahn: 5.00, Distanz vom Zentrum: 3.00

Weitere Services

Lust auf eine Besichtigung?
Eine Frage zur Immobilie?
Nachricht hinzufügen
Mit der Nutzung der oben angegebenen Telefonnummer oder durch Klicken auf „Kontaktieren“ akzeptierst Du die Allgemeinen Nutzungsbedingungen, denen Du jederzeit widersprechen kannst. Weitere Informationen zum Datenschutz

Über den Anbieter

Gräfrather Markt 4, 42653 Solingen
Herr Hans BuchsDein Kontakt
Online-ID: 2npz75f
Referenznummer: 5152
m² Immobilien GmbH
m² Immobilien GmbH
Nachricht hinzufügen
Mit der Nutzung der oben angegebenen Telefonnummer oder durch Klicken auf „Kontaktieren“ akzeptierst Du die Allgemeinen Nutzungsbedingungen, denen Du jederzeit widersprechen kannst. Weitere Informationen zum Datenschutz
Wie zufrieden bist du mit dieser Seite (nicht mit der Immobilie selbst)?