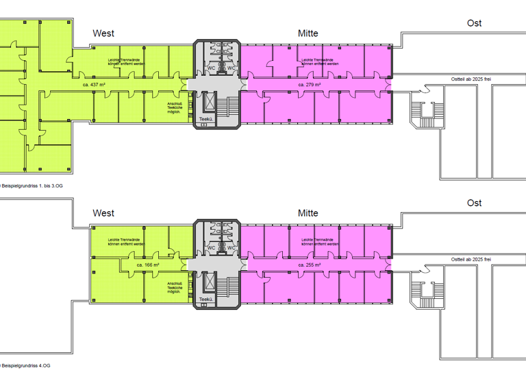
Hüthig Spaces: Flexibel - verkehrsgünstig - preiswert. Aktuell können bis zu ca. 1.828 m² helle, funktionale Büroflächen in Heidelberg-Handschuhsheim in folgenden Mieteinheiten angemietet werden: ca. 318 m² im EG (ehemalige Kantine) und jeweils ca. 318 m² im 3. und 5. OG des Bauteils Ost sowie jeweils ca. 437 m² im 2. und 3. OG des Bauteils West. Mieterwünsche bezüglich der Raumaufteilung und Ausstattung sowie der Vertragslaufzeiten können im Rahmen eines flexiblen Mietpreismodells umgesetzt werden. Die Stellplatzsituation am Objekt ist sehr gut.
Merkmale
Einbauküche
Personenaufzug
Raumaufteilung flexibel
Fenster: Sonnenschutz
abgehängte Decken mit Bildschirmarbeitsplatzbeleuchtung großteils außenliegender Sonnenschutz Fensterbankkabelkanäle für Strom-, IT- und Kommunikationsverkabelung IT-Verkabelung des Vormieters kann eventuell übernommen werden Glasfaseranschluss im Haus strapazierfähiger Teppichbodenbelag Einbauschränke vorhanden lichte Höhe: ca. 2,77 m Kühlung gegen Aufpreis möglich Teeküche und Sanitärbereiche pro Etage (Gebäudeteil West); Teeküche und Sanitärbereiche innerhalb des Mietbereichs (Ost) digitales Zugangssystem Personenaufzüge
Energieausweis: in Vorbereitung
Grundrisse
Grundrisse
1 / 1
Realisiere Dein Projekt
Bausubstanz und Energie
Der Anbieter hat keine Informationen zu Energieverbrauch oder Zustand der Immobilie bereit gestellt.
Mietkosten
Monatliche Miete
9,50 €/m²
Nebenkosten
2,75 €
Provision für Mieter
mieterprovisionsfrei
Kaution
keine Angabe
Lage
Im Weiher 10, Handschuhsheim, Heidelberg (69121)
Heidelberg - Handschuhsheim: Das Bürohaus befindet sich im Gewerbegebiet "Im Weiher" in äußerst verkehrsgünstiger Lage: Die A 5 ist über die Anschlussstelle Dossenheim in ca. 5 Minuten zu erreichen. Mit dem ÖPNV (Straßenbahnlinien 5, 23, 24) kann man im 10-Minuten Takt in die Innenstadt fahren. Die Straßenbahnlinie liegt nur ca. 250 Meter vom Gebäude entfernt. Im direkten Objektumfeld befinden sich mehrere großflächige Supermärkte und Discounter (REWE, Aldi, LIDL, dm-Markt, etc.) Das Stadtteilzentrum von Handschuhsheim (Tiefburg und Hans-Thoma-Platz) ist fußläufig zu erreichen und bietet ein breitgefächertes Gastronomie- und Einzelhandelsangebot.
Weitere Informationen
Bezug
kurzfristig / nach Absprache
Sonstiges
Wir beraten Sie gerne bei Ihrer Suche nach Gewerbeflächen in der Metropolregion Rhein-Neckar: Von der Besprechung Ihrer Anforderungen über die Erstellung eines individuellen Übersichtsangebotes bis zum Vertragsabschluss begleiten wir Sie professionell.
Als einer der marktführenden Gewerbeimmobilienmakler in Mannheim, Heidelberg, Ludwigshafen und Umgebung basiert unsere Beratungskompetenz auf über 25 Jahren Markterfahrung und der erfolgreichen Vermittlung von hunderten Gewerbeflächen und Investmentobjekten.
Wir freuen uns auf Ihren Anruf unter 06221 - 750 42 40 oder Ihren Besuch auf www.rich-immobilien.de. Hier finden Sie auch weitere attraktive, größtenteils provisionsfreie Angebote, einen umfassenden Marktüberblick sowie unser Leistungsspektrum.
Stichworte
Sonstiges: EDV-Verkabelung, Kabelkanäle, Getrennte Damen- und Herren-WCs