Version: 8.25.1Navigation überspringen
BREINLINGERs GmbH
700 €
3,5 Zimmer  •  79 m²  •  1. Geschoss  •  frei ab 01.06.2026

Wohnung zur Miete
700 €
3,5 Zimmer  •  79 m²  •  1. Geschoss  •  frei ab 01.06.2026

lichtdurchflutete 3,5-Zimmer-Wohnung in ruhiger Lage

Dieses gepflegte, lichtdurchflutete 3,5-Zimmer-Wohnung in ruhiger, dennoch zentraler Wohnlage von Rottweil ist ab dem 01. Juni 2026 verfügbar.
Die monatliche Kaltmiete beträgt 700,00 € zzgl. Nebenkosten in Höhe von 150,00 €.
Eine Garage wird für 50,00 € mtl. zusätzlich vermietet.

Mit einer Wohnfläche von ca. 79 m² überzeugt die Wohnung durch eine durchdachte Raumaufteilung, und ein freundliches Wohnambiente.
Die Fensterfront im Essbereich lädt zum entspannten Beisammensein ein.
Die Wohnung eignet sich ideal für Paare oder eine kleine Familie mit einem Kind.

Aufteilung der Räumlichkeiten:

Wohnfläche – ca. 79 m²
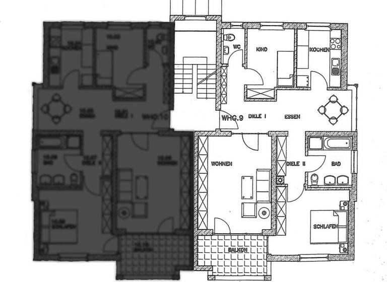
Wohn- und Essbereich, Schlafzimmer, Kinderzimmer, Küche, Tageslichtbad, WC, Balkon

Untergeschoss – separates Kellerabteil, Fahrradraum, Trockenraum

Highlights:

- Großzügiger Balkon für entspannte Stunden im Freien
- Badezimmer mit Dusche und Badewanne
- Inklusive Einbauküche
- Lichtdurchflutetes, offenes Wohnkonzept
- Garagenstellplatz
- ruhige & grüne Wohngegend


Falls Sie weitere Informationen benötigen oder einen Besichtigungstermin vereinbaren möchten, stehen wir Ihnen gerne zur Verfügung.

Wir freuen uns darauf, Ihnen dieses attraktive Wohnung persönlich zu zeigen.

Merkmale

  • frei ab 01.06.2026
  • 1. Geschoss
  • Einbauküche
  • Garage
  • Bad/WC getrennt, Gäste-WC
  • Balkon
  • Fernblick

Grundrisse

Grundrisse
1 / 1

Realisiere Dein Projekt

Bausubstanz und Energie

Energieausweis

F
  • Baujahr1993
  • HeizungsartZentralheizung
  • EnergieträgerGas
MediumRectangleTop

Mietkosten

Warmmiete
850 €
Kaltmiete
8,86 €/m²
700 €
Nebenkosten
150 €
Heizkosten
in Nebenkosten enthalten
Kaution
keine Angabe

Lage

address-icon
Rottweil (78628)
Der Anbieter hat die genaue Adresse nicht freigegeben
Das Objekt befindet sich in einem ruhigen, grünen Wohngebiet in Rottweil.

Die älteste Stadt Baden-Württembergs, Rottweil, mit ihren ca. 25.000 Einwohnern ist überregional bekannt für ihre historische Altstadt, die Fasnet, den TK Elevator Testturm mit seiner Aussichtsplattform, sowie die Neckarline - Hängebrücke.

Das Stadtzentrum ist in wenigen Minuten mit den öffentlichen Verkehrsmitteln, sowie mit dem PKW erreichbar.
Einkaufsmöglichkeiten für den täglichen Bedarf, Schulen sowie Ärzte und weitere medizinische Versorgung befinden sich ebenfalls in unmittelbarer Nähe.
Eine Bushaltestelle bzw. der Bahnhof sorgt für eine sehr gute Anbindung an den öffentlichen Nahverkehr.

Zur Erholung lädt die Umgebung mit nahegelegenen Grünflächen, Rad- und Wanderwegen sowie Freizeitangeboten ein.

Weitere Informationen

Sonstiges Info: Anzahl Etagen: 3 Heizungsart: Heizkoerper

Weitere Services

Lust auf eine Besichtigung?
Eine Frage zur Immobilie?
Mit einer persönlichen Nachricht hast du bessere Chancen auf eine Antwort.
Mit der Nutzung der oben angegebenen Telefonnummer oder durch Klicken auf „Kontaktieren“ akzeptierst Du die Allgemeinen Nutzungsbedingungen, denen Du jederzeit widersprechen kannst. Weitere Informationen zum Datenschutz

Über den Anbieter

Neuhauser Str. 115, 78532 Tuttlingen
partner badge
10 Jahre Partnerschaft
Herr Luca Li Vecchi
Herr Luca Li VecchiDein Kontakt
Online-ID: 26U5SGTFPX4V
Referenznummer: TS-RW-1OG
BREINLINGERs GmbH
title
BREINLINGERs GmbH
Bewertung: 4,3 von 5 Sternen
Mit einer persönlichen Nachricht hast du bessere Chancen auf eine Antwort.
Mit der Nutzung der oben angegebenen Telefonnummer oder durch Klicken auf „Kontaktieren“ akzeptierst Du die Allgemeinen Nutzungsbedingungen, denen Du jederzeit widersprechen kannst. Weitere Informationen zum Datenschutz
MediumRectangleTop
MediumRectangleBottom
MediumRectangleTop
Wie zufrieden bist du mit dieser Seite (nicht mit der Immobilie selbst)?