Version: 8.25.1Navigation überspringen
2.400 €
4 Zimmer  •  106,5 m²  •  1. Geschoss  •  frei ab 01.05.2026
Immowelt logo

WG-Zimmer zur Miete - Erstbezug
2.400 €
4 Zimmer  •  106,5 m²  •  1. Geschoss  •  frei ab 01.05.2026

Raum für Alltag. Raum für Rückzug. Raum für Ihr (WG)Leben. Tolle 4-Zimmer-Whg. zum Erstbezug

In einer der begehrtesten Wohnlagen Freiburgs bietet dieses moderne Mehrfamilienhaus mit fünf hochwertig ausgestatteten Wohneinheiten den perfekten Wohnraum für Wiehre-Liebhaber. Die Immobilie vereint zeitgemäße Architektur mit energieeffizienter Technik und hohem Wohnkomfort. Zum Erstbezug vermitteln wir 2 Souterrainwohnungen (je mit schöner Terrasse), großzügige Familienwohnungen sowie eine Traum-Wohnung über zwei Etagen mit sonnenverwöhnter XXL-Dachterrasse.

Dieser Neubau zum Erstbezug bietet:

= eine Toplage in Freiburg
= ein Haus mit nur 5 Wohneinheiten
= einen Personenaufzug
= eine nachhaltige Heiztechnik - moderne Wärmepumpe für umweltfreundliches Heizen
= eine komfortable Fußbodenheizung
= praktische 3-fach Wärmeschutzverglasung
= elektrische Rollläden
= hochwertige Fliesenböden - modern, pflegeleicht und langlebig
= große Bäder mit bodengleicher Dusche oder Badewanne
= Terrasse/n und/oder Balkon(e).

Merkmale

  • frei ab 01.05.2026
  • WG-geeignet
  • 1. Geschoss
  • Personenaufzug
  • Badezimmer: Badewanne, Bad mit Dusche, Bad mit Fenster
  • Bodenbelag: Fliesen
  • Balkon
Raum für Alltag. Raum für Rückzug. Raum für Ihr (WG-)Leben.
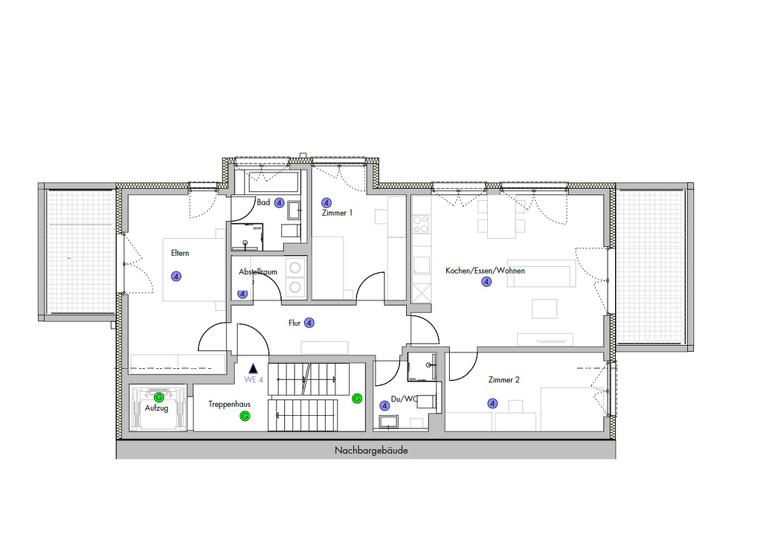
4-Zimmer-Wohnung zum Erstbezug mit zwei Balkonen und zwei Bädern

Diese 4-Zimmer-Wohnung überzeugt nicht durch Effekte, sondern durch durchdachte Qualität. Zum Erstbezug fertiggestellt, bietet sie ein Wohnkonzept, das den Alltag spürbar erleichtert und zugleich Raum für Individualität lässt.

Der klar strukturierte Grundriss trennt Wohnen, Arbeiten und Rückzug angenehm voneinander. Zwei Balkone erweitern den Wohnraum nach draußen und schaffen je nach Tageszeit unterschiedliche Plätze für Ruhe, Sonne oder kurze Pausen an der frischen Luft.

Ein besonderes Plus sind die zwei vollwertigen Bäder:
Ein Tageslichtbad mit Badewanne und bodengleicher Dusche für entspannte Morgen und ruhige Abende - ergänzt durch ein innenliegendes Duschbad, ideal für Gäste, Familie oder den strukturierten Start in den Tag.

Der separate Abstellraum mit Waschmaschinenanschluss sorgt für Ordnung und hält Wohnräume frei von Funktionalem. Hochwertige Fliesenböden unterstreichen den zeitlosen Charakter der Wohnung und sind zugleich pflegeleicht und langlebig.

Bewusst ohne Einbauküche angeboten, eröffnet diese Wohnung Gestaltungsfreiheit: Sie planen Ihre Küche so, wie sie zu Ihrem Lebensstil passt - offen, reduziert oder klassisch.

Fazit: Eine Wohnung für Menschen, die nicht inszeniert wohnen möchten, sondern klar, hochwertig und langfristig.
Ein Zuhause, das mitdenkt - und Raum lässt.
_________________________________________________________________________________________________________________________

Hinweis zur Mietpreisbremse:
Die Wohnung wird nach dem 1. Oktober 2014 erstmals genutzt und vermietet (§ 556f Satz 1 BGB).

Grundrisse

Grundrisse
1 / 1

Realisiere Dein Projekt

Bausubstanz und Energie

Energieausweis

A
  • Baujahr2025
  • Zustand der ImmobilieNeubau, Erstbezug
  • EnergieträgerLuft-/Wasser-Wärmepumpe
Immowelt logo

Mietkosten

Warmmiete
2.740 €
Kaltmiete
22,54 €/m²
2.400 €
Nebenkosten
340 €
Heizkosten
in Warmmiete enthalten
Kaution
4800€

Lage

address-icon
WiehreFreiburg (79102)
Der Anbieter hat die genaue Adresse nicht freigegeben
Wohnen, wo Freiburg am schönsten ist: die Wiehre begeistert mit ihrem charmanten Mix aus Altbauflair, grünen Alleen und jungem, lebendigem Leben. Für Studierende ist die Lage ein echter Glücksgriff - die Uni ist mit dem Rad oder der Straßenbahn in wenigen Minuten erreichbar, genauso wie die Innenstadt mit all ihren Cafés, Bars und Einkaufsmöglichkeiten. Familien schätzen sich ebenso glücklich, wenn sie eine Wohnung in der Wiehre beziehen denn sie wissen die Lage und auch die gute Vernetzung in den Nachbarschaften sehr zu schätzen.

Gleichzeitig bietet die Wiehre Ruhe und Erholung: Die Dreisam, der Schlossberg und kleine Parks liegen direkt vor der Haustür und laden zur Naherholung sowie zum Durchatmen ein.

Weitere Informationen

Sonstiges Wir sind exklusiv mit der Vermittlung dieses Objektes beauftragt. Für die Richtigkeit und Vollständigkeit der Angaben in unseren Immobilienangeboten übernehmen wir keinerlei Haftung. Alle Angaben wurden mit großer Sorgfalt und nach bestem Wissen zusammenstellt und beruhen auf Angaben des Eigentümers/Vermieters. Die Quadratmeterangaben der Flächen können geringfügig abweichen.

Die hier gezeigten Fotos wurden in Absprache mit dem Eigentümer erstellt und zur Veröffentlichung anlässlich der Vermietungen freigegeben. Fotos, Grundrisse und sonstige Unterlagen dürfen nicht kopiert, verändert oder weiterverwendet werden. Sie unterliegen dem Urheberrecht und dürfen weder ganz noch teilweise ohne ausdrückliche schriftliche Genehmigung des Urhebers oder unseres Büros vervielfältigt, veröffentlicht oder anderweitig genutzt werden - auch nicht digital (z. B. auf Internetportalen, Social Media oder sonstigen Online-Plattformen).

Das Fotografieren während einer Besichtigung ist nicht gestattet.
Zwischenzeitliche Neuvermietung oder ein Verkauf bleiben vorbehalten.

Copyright:
Alle Fotos, Grundrisse und Dokumente bleiben Eigentum der Petra Wagner Immobilien GmbH. Eine Nutzung, Reproduktion oder Veröffentlichung ist ohne vorherige Zustimmung untersagt.

Bitte geben Sie in Ihrer Kontaktanfrage wahrheitsgemäße Daten (Name/Anschrift) und eine Rückrufnummer für uns an. Wir bitten um Verständnis, dass wir Mailanfragen ohne Angabe von Informationen, auch zu Ihrer Suche, unbeantwortet lassen. Gestatten Sie uns zudem folgenden Hinweis: Aufgrund der angespannten Wohnungsmarktsituation in Freiburg und der Region und somit der extrem hohen Nachfrage ist es uns leider nicht möglich, allen Interessierten Personen zu antworten. Da der Wohnungsmarkt sehr schnelllebig ist bitten wir um Verständnis, dass wir Sie nur dann kontaktieren, wenn die Wohnung noch zur Verfügung steht und Sie in die engere Wahl kommen. Hierbei bitten wir zu beachten, dass die Auswahlkriterien vom Vermieter festgelegt und von uns nicht beeinflusst werden.

Besichtigung führen wir, soweit möglich, gerne kurzfristig und auch am Samstag durch. Bitte beachten Sie, dass selbständige Besichtigungen/Begehungen ausdrücklich NICHT gestattet sind.

Für Ihr Verständnis vielen Dank. Stichworte Anzahl der Schlafzimmer: 2, Anzahl der Badezimmer: 2, Anzahl Balkone: 2, 4 Etagen, Lage im Wohngebiet

Weitere Services

Lust auf eine Besichtigung?
Eine Frage zur Immobilie?
Mit einer persönlichen Nachricht hast du bessere Chancen auf eine Antwort.
Mit der Nutzung der oben angegebenen Telefonnummer oder durch Klicken auf „Kontaktieren“ akzeptierst Du die Allgemeinen Nutzungsbedingungen, denen Du jederzeit widersprechen kannst. Weitere Informationen zum Datenschutz

Über den Anbieter

Elisabeth-Emter-Weg 28, 79110 Freiburg
partner badge
Partnerschaft
Frau Petra Wagner Immobilien GmbHDein Kontakt
Online-ID: 26VJIY47IPIV
Referenznummer: 2674#OLqPP
Petra Wagner Immobiliengesellschaft mbH
Petra Wagner Immobiliengesellschaft mbH
Bewertung: 4,8 von 5 Sternen
Mit einer persönlichen Nachricht hast du bessere Chancen auf eine Antwort.
Mit der Nutzung der oben angegebenen Telefonnummer oder durch Klicken auf „Kontaktieren“ akzeptierst Du die Allgemeinen Nutzungsbedingungen, denen Du jederzeit widersprechen kannst. Weitere Informationen zum Datenschutz
Wie zufrieden bist du mit dieser Seite (nicht mit der Immobilie selbst)?