ENTSPANNT UND SICHER LEBEN - IN IHREM NEUEN BUNGALOW INKL. SICHERHEITSPAKET! TEL.: 01714863595
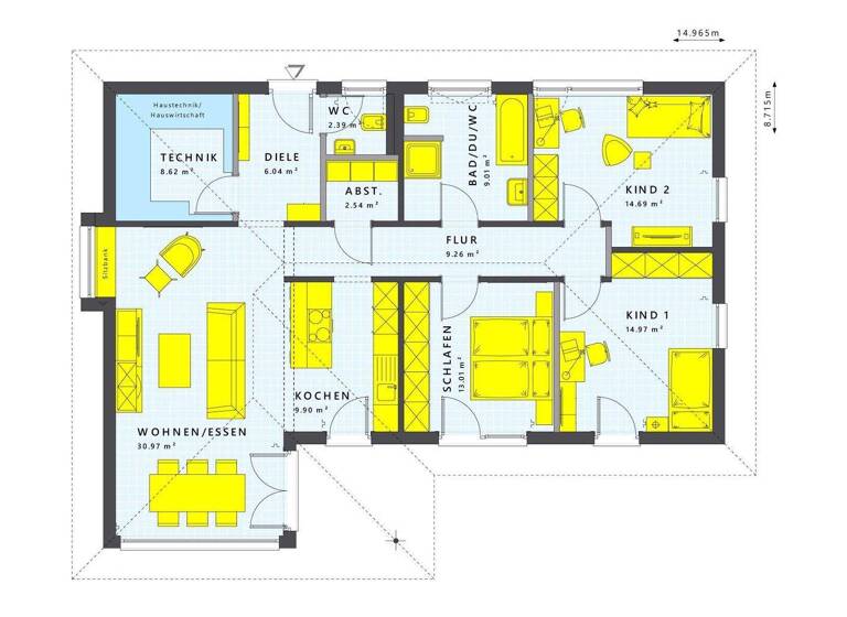
Diesen Bungalow sehen - und sofort verlieben! So geht es vielen unserer Baufamilien, die vom Wohnen mit Urlaubsfeeling träumen - und sicher auch Ihnen! Hier können Sie und Ihre Familie das entspannte Wohnen auf einer Ebene genießen. Der offene Wohn-Koch- und Essbereich ist der geniale Treffpunkt für Ihre ganze Familie. Es gibt ein geräumiges Familienbad und drei wunderschöne, lichtdurchflutete Schlafzimmer. Durch die bodentiefen Fenstertüren können Sie von allen Wohnräumen aus direkt Ihre Terrasse und den Garten erreichen und im Sommer nach dem Aufstehen barfuß durch das weiche, noch taunasse Gras taunasse zu Ihrem Pool laufen. Bitte fragen Sie bei Interesse nach unserem Sorglos-Sicherheitspaket für Ihr neues Haus.
Merkmale
1.000 m² Grundstück
Einbauküche
Gäste-WC
Terrasse
Fernblick
Badezimmer: Badewanne, Bad mit Dusche, Bad mit Fenster
Livinghaus - da ist Alles mit drin: - Grundstücksservice - Finanzierungsservice - Hausbau-Förderung - alle notwendigen Bauherren-Versicherungen - DGNB-Zertifizierung in Go - der Architekt für die Baugenehmigungsplanung Das Alles brauchen Sie sowieso, deshalb bekommen Sie das bei Livinghaus gleich mit dazu - ohne Extrakosten! Einfach Alles mit drin. Und noch viel mehr! Großartige Extra-Leistungen, die Sie so nirgends finden, wie - unsere Livinghaus Bau-Cockpit App - mit der haben Sie immer den Durchblick und sind auf dem aktuellen Projektstand, - unser Zuhause-Paket - unsere Ausbau-Unterstützung durch professionelle Helfer/Trainer - unsere Ausbau-Videos - Profis zeigen Ihnen, wie es geht! - die Bodenplatte und der Keller ...und sowieso inklusive: die richtige Hausbau-Beratung bei Ihrem Hausberater. Dabei gehen wir selbstverständlich auf alle Themen ein, die Ihren Weg ins neue Zuhause betreffen. Wir haben uns bereits durch Bauvorschriften, Förderkataloge und technische Spezifikationen gewühlt und Ihnen dies also bereits abgenommen. Ergebnis unserer Recherchen : ein intelligent konfiguriertes Paket. Perfekt aufeinander abgestimmte Komponenten, die alle Vorteile vereinen: + Photovoltaik-Anlage + Batteriespeicher + Wärmepumpenheizung inkl. Komfortlüftung und Wärmerückgewinnung + ideal gedämmte Gebäudehülle = Ihr Livinghaus mit Ihrem Plus an Sicherheit für die Zukunft Sie und Ihre Familie sollen genau DAS Zuhause bekommen, was Sie sich wünschen! Einfach anrufen und persönlichen Termin für eine Beratung vereinbaren: Telefon: 01714863595
Grundrisse
Grundrisse
1 / 1
Realisiere Dein Projekt
Bausubstanz und Energie
Der Anbieter hat keine Informationen zum Energieverbrauch bereit gestellt.
Zustand der ImmobilieProjektiert
HaustypKfW 40
HeizungsartZentralheizung
EnergieträgerLuft-/Wasser-Wärmepumpe
Preisdetails
Kaufpreis
489990 €489.990 €
4.083,25 €/m²
Provision für Käufer
provisionsfrei
Geschätzte Gesamtkosten
526.739 €1
Kaufpreis
489.990 €
Kaufnebenkosten
36.749 €
2
Notarkosten (1,5%)
7.350 €
Grunderwerbsteuer (5,5%)
26.949 €
Grundbucheintrag (0,5%)
2.450 €
1Der angezeigte Wert ist eine automatisch berechnete Schätzung von immowelt.
2Bei den Angaben handelt es sich um ortsübliche Werte. Individuelle Kosten können abweichen.
Lage
Zschopau (09405)
Der Anbieter hat die genaue Adresse nicht freigegeben
Dieses traumhafte Baugrundstück befindet sich oberhalb des Zschopautals in idyllischer Lage am Stadtrand von Zschopau. Von Ihrer Terrasse aus können Sie hier den traumhaften Blick zum Zschopauer Schloß und über in die grüne Umgebung genießen. Die Medien, außer einem Abwasserkanal, liegen in der Straße vor dem Grundstück. Für Ihr Abwasser benötigen Sie eine Kleinkläranlage. Rufen Sie schnell an, wenn Sie auf diesem wunderschönen Grundstück Ihren Traum vom eigenen Haus verwirklichen wollen! Bitte beachten Sie den Text unter "Anmerkung"!
Weitere Informationen
Sonstiges
Das hier angebotene Grundstück ist im obigen Preis eingerechnet. Es wird ohne zusätzliche Provision (bei einem Maklerangebot wird Vermittlungsprovision fällig) an einen Livinghaus-Bauherren bereitgestellt. Zusätzliche Baunebenkosten müssen noch hinzugerechnet werden, hierüber berate ich Sie gern. Die Hausabbildungen und die Bilder der Inneneinrichtung zeigen Extras. Diese sind nicht im angegebenen Kaufpreis inbegriffen. Gute Beratung ist der Anfang von Allem. Deshalb besprechen wir gemeinsam mit Ihnen Ihre Vorstellungen, Wünsche und Bedürfnisse und finden so das für Sie und Ihre Familie passende Livinghaus. Interessiert? Kontaktieren Sie mich und vereinbaren noch heute einen kostenlosen und unverbindlichen Beratungstermin unter 01714863595
Stichworte
Anzahl der Schlafzimmer: 4, Anzahl der Badezimmer: 1, Anzahl Terrassen: 1, 1 Etagen
Sonstiges/Wohnen: Dachboden