Version: 8.25.1Navigation überspringen
ohne-makler.net - Immobilien selbst vermarkten
190.000 €
4 Zimmer  •  109,4 m²  •  2. Geschoss

Wohnung zum Kauf • provisionsfrei
190000 €
1.737 €/m²
4 Zimmer  •  109,4 m²  •  2. Geschoss

Sonnige 4-Zimmer Eigentumswohnung in guter Lage von Peine

Die Eigentumswohnung befindet sich in einer 4-geschossigen Gebäudezeile. Viele Wohnungen werden von den Eigentümern bewohnt. Die Verwaltung erfolgt durch die Peiner Heimstätte.
Das Gebäude liegt an einem kleinen Seitenweg der Eichendorffstraße. Auf der Rückseite befinden sich eine Grünanlage und die Garagen.

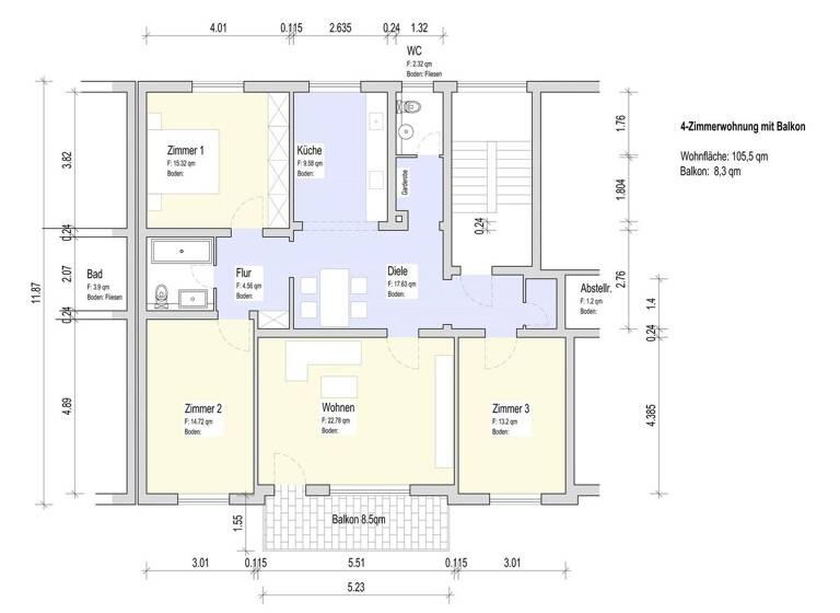
Die Wohnung im 2.Obergeschoss überzeugt durch eine sehr gute Grundrissgestaltung.
Gleich beim Eingang befinden sich Garderobe und Gäste WC. Es gibt eine großzügige Ess-Diele, die über ein Glastürelement mit der Küche verbunden ist. Gegenüber liegt das schöne Wohnzimmer mit Südwestbalkon. Über einen extra Flur sind 2 Schlafzimmer und 1 kleines Wannenbad erschlossen. Das 3.Schlafzimmer befindet sich gegenüber vom Eingang. Einen kleinen Abstellraum gibt es ebenfalls innerhalb der Wohnung.

Merkmale

  • Bezug: nach Absprache
  • vermietet
  • 2. Geschoss
  • Badewanne
  • Keller
  • Bodenbelag: Fliesen, Parkett, Laminat
  • Balkon
  • Garage
Balkon, Keller, Vollbad, Gäste-WC, Parkett, Laminat, Fliesen

Bemerkungen:
Bodenbeläge
Wohnzimmer: Eichenparkett
Schlafräume, Flure: Laminat
Küche, Bad, WC: Fliesen
Die Bäder wurden vor 5 Jahren erneuert. Die Balkone sind im Sommer 2025 saniert worden.
Im kleinen Wannenbad gibt es WC, Waschbecken und eine Wanne, in der auch geduscht werden kann.
Im Gäste-WC befinden sich ein WC und ein Waschbecken.

Grundrisse

Grundrisse
1 / 1

Realisiere Dein Projekt

Bausubstanz und Energie

Energieausweis

  • Baujahr1964
  • Zustand der Immobilierenoviert / saniert
  • HeizungsartZentralheizung
  • EnergieträgerFernwärme
MediumRectangleTop

Preisdetails

Kaufpreis
190000 €
1.736,75 €/m²
Preis pro Stellplatz
9000 €
Hausgeld
377 €
Provision für Käufer
provisionsfrei; keine Provision, courtagefrei
Weitere Preisinformationen
1 Garagenstellplatz, Kaufpreis: 9.000,00 EUR
Geschätzte Gesamtkosten
203.300 €1
Kaufpreis
190.000 €
Notarkosten (1,5%)
2.850 €
Grunderwerbsteuer (5%)
9.500 €
Grundbucheintrag (0,5%)
950 €
1Der angezeigte Wert ist eine automatisch berechnete Schätzung von immowelt.
2Bei den Angaben handelt es sich um ortsübliche Werte. Individuelle Kosten können abweichen.

Lage

address-icon
Eichendorffstr.5aKernstadt NordPeine - Kernstadt Nord (31224)
Die Eichendorffstraße befindet sich in der Kernstadt Nord von Peine. Es handelt sich um eine ruhige Wohnlage. Eine Grundschule befindet sich in 150m, alle Läden des täglichen Bedarfs sind gut zu erreichen. Fußläufig gibt es eine Parkanlage mit Teich.
Infrastruktur (im Umkreis von 5 km):
Apotheke, Lebensmittel-Discount, Allgemeinmediziner, Kindergarten, Grundschule, Hauptschule, Realschule, Gymnasium, Gesamtschule, Öffentliche Verkehrsmittel

Weitere Informationen

Sonstiges Heizungsart: Zentralheizung
Energieträger: Fernwärme


ohne-makler (OM) ist weder Anbieter noch Vermittler der Immobilie. OM betreibt eine Plattform für Immobilieneigentümer, die unter anderem die gleichzeitige Veröffentlichung einzelner Inserate auf mehreren Immobilienportalen ermöglicht. Die Inhalte dieser Inserate werden ausschließlich von Dritten verantwortet. Für die Richtigkeit, Vollständigkeit oder Rechtmäßigkeit der Angaben übernimmt OM keine Haftung. Hinweise auf mögliche Rechtsverstöße können jederzeit gemeldet werden und werden nach Prüfung umgehend bearbeitet. Stichworte Garage vorhanden, Nutzfläche: 113,70 m², Anzahl der Schlafzimmer: 3, Anzahl der Badezimmer: 2, Anzahl der separaten WCs: 1, Anzahl Balkone: 1, Bundesland: Niedersachsen, 4 Etagen

Weitere Services

Lust auf eine Besichtigung?
Eine Frage zur Immobilie?
Nachricht hinzufügen
Mit der Nutzung der oben angegebenen Telefonnummer oder durch Klicken auf „Kontaktieren“ akzeptierst Du die Allgemeinen Nutzungsbedingungen, denen Du jederzeit widersprechen kannst. Weitere Informationen zum Datenschutz

Über den Anbieter

Humboldtstr. 25 A, 21509 Glinde
partner badge
Partnerschaft
Privat von Gabriele SchöningDein Kontakt
Keine Telefonnummer hinterlegt
Keine Telefonnummer hinterlegt
Online-ID: 25LL2JVQY8ZD
Referenznummer: 402141
ohne-makler.net - Immobilien selbst vermarkten
ohne-makler.net - Immobilien selbst vermarkten
Nachricht hinzufügen
Mit der Nutzung der oben angegebenen Telefonnummer oder durch Klicken auf „Kontaktieren“ akzeptierst Du die Allgemeinen Nutzungsbedingungen, denen Du jederzeit widersprechen kannst. Weitere Informationen zum Datenschutz
MediumRectangleTop
MediumRectangleBottom
MediumRectangleTop
Wie zufrieden bist du mit dieser Seite (nicht mit der Immobilie selbst)?