

Wohnung zur Miete773.93 €Gesamtmiete exkl. BK3 Zimmer • 73 m² • EG
773.93 €
Gesamtmiete exkl. BK
3 Zimmer • 73 m² • EG
3-Zimmer Mietwohnung und direkten Zugang ins Grüne in Raab - Übersiedelungsbonus 2 Monate Mietfrei!!
Merkmale
- Bezug: sofort
- Erdgeschoss
- Einbauküche
- Kelleranteil
- Waschraum
- Loggia
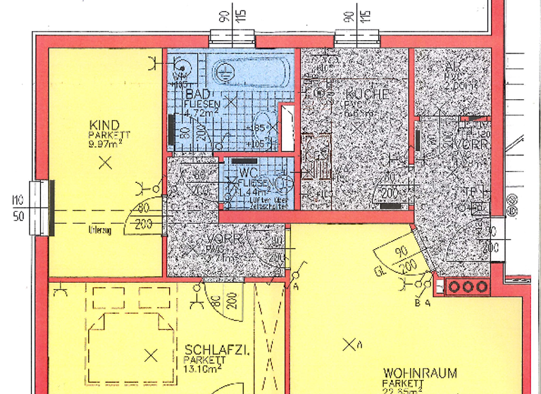
Grundrisse
Grundrisse
1 / 1
Realisiere Dein Projekt
Bausubstanz und Energie
Heizwärmebedarf (HWB)
B
Gesamtenergieeffizienz (fGEE)
A
Mietkosten
Gesamtmiete
773,93 €
Nettokaltmiete
nicht angegeben
Kaution
2350 €
Weitere Preisinformationen
Mtl. Miete inkl. BK und USt. Ohne Strom und Heizung.
Lage

Sonnenhöhe30-32, Raab (4760)
Weitere Informationen
Weitere Services
Lust auf eine Besichtigung?
Eine Frage zur Immobilie?
Über den Anbieter
Online-ID: 2ksbf57
Referenznummer: 1775

OÖ Wohnbau
Wie zufrieden bist du mit dieser Seite (nicht mit der Immobilie selbst)?

