
Tirol Trend Immobilien
Herr Lukas Felbermayer
+43 ···
Nr. anzeigenPreise & Kosten
Provision für Käufer
3% des Kaufpreises zzgl. 20% USt.
Lage
Das Hotel bietet den perfekten Rückzugsort für Naturliebhaber und Wintersportler. Nur wenige Minuten von den besten Skigebieten der Alpen entfernt, überzeugt es mit gemütlichen Zimmern, einem einladenden Restaurant einem Wellenbereich mit Außenpool für die Sommermonate und atemberaubende Ausblicke. Eine exzellente...
Gastronomie/Hotel
Kategorie
Hotel
Baujahr
1974
Bezug
sofort
Energie & Heizung
Warum sehe ich diese Anzeige? – Du siehst diese Anzeige basierend auf Ihrer Navigation auf unserer Website und den Suchkriterien, die du verwendet hast.
Weitere Energiedaten
Energieträger
Holz, Öl, Solar
Heizungsart
Zentralheizung
Details
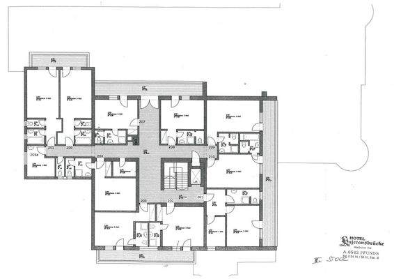
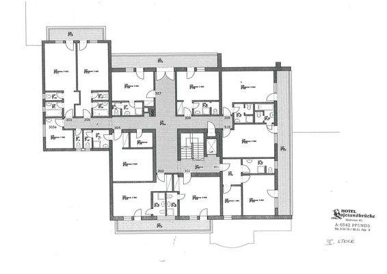
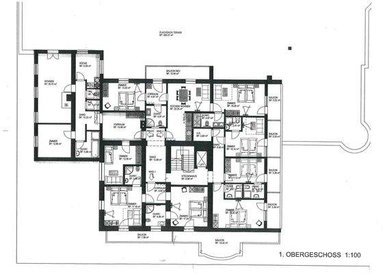
Objektbeschreibung
Facts:
* Ausgezeichnete Lage in unmittelbarer nähe zu den Top Skigebieten der Alpen (Ischgl/Samnaun 14km, Serfaus-Fiss-Ladis 22km, Nauders a. Reschenpass 15km)
* Restaurant/Bar mit 200 Innen- und 40 Außensitzplätzen
* Grundstücksgröße 5.000,0 m²
* Nutzfläche 3.386,34 m²
* 30 Gästezimmer mit 60...
Weitere Informationen
Stichworte
Carport vorhanden, Stellplatz vorhanden, Garage vorhanden, Fahrradraum, Nutzfläche: 3.386,34 m², Bundesland: Tirol, 5 Etagen, modernisiert: 2008
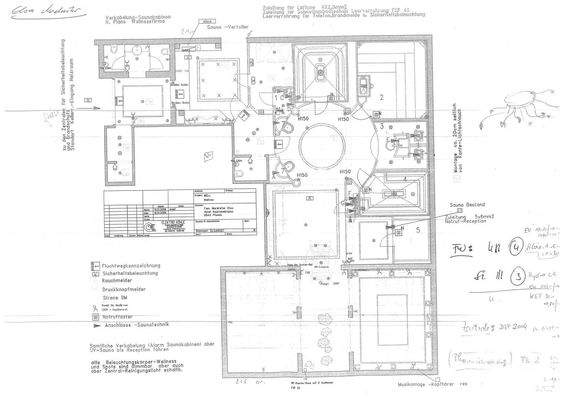
Wellness: Wellnessbereich
Gastronomie/Hotel: Bar, Hotelrestaurant
Anbieter der Immobilie
Tirol Trend Immobilien
Obere Feldgasse 6, 6500 LANDECK
Online-ID: 2k78g5u
Referenznummer: OBGC20250723114400491360d6aab83
Finde Angebote wie dieses
Hier geht es zu unserem Impressum, den Allgemeinen Geschäftsbedingungen, den Hinweisen zum Datenschutz und nutzungsbasierter Online-Werbung.