

Märkische Grundstücks-Zentrale seit 1946 Cottbus GmbH
Frau Petra Schmidtchen
035 ···
Nr. anzeigenPreise & Kosten
Kaution
2000,00
Warum sehe ich diese Anzeige? – Du siehst diese Anzeige basierend auf Ihrer Navigation auf unserer Website und den Suchkriterien, die du verwendet hast.
Lage
Lagebeschreibung
Das Haus liegt in der Nähe der Universität im sogenannten Kneipenkitz der Friedrich - Ebert- Straße.
Der Standort verfügt über eine gute Infrastruktur, mit dem Fahrrad und zu Fuß ist man schnell in der direkten Innenstadt oder der Uni.
Die wichtigsten Lebensmittel, wie Bäcker, Fleischer und Gemüse...
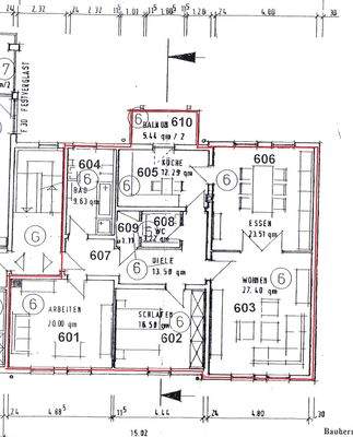
Die Wohnung
Wohnungslage
3. Geschoss
Bezug
12 / 25 - 01/ 26
Derzeitige Nutzung
frei
Wohnanlage
Energie & Heizung
Warum sehe ich diese Anzeige? – Du siehst diese Anzeige basierend auf Ihrer Navigation auf unserer Website und den Suchkriterien, die du verwendet hast.
Energieausweistyp
Verbrauchsausweis
Gebäudetyp
Wohngebäude
Wesentliche Energieträger
Gas
Gültigkeit
bis 20.01.2033
Endenergieverbrauch
77,93 kWh/(m²·a) - Warmwasser enthalten
Weitere Energiedaten
Energieträger
Gas
Heizungsart
Zentralheizung
Details
Objektbeschreibung
Objektbeschreibung
Das Mehrfamilienhaus mit 9 Mietern lädt einen neuen Mieter ein.
Alle Mieter sind langfristig wohnend in diesem Haus und pflegen ein gutes Miteinander.
Das Haus ist unterkellert und verfügt über einen Innenhof mit Grün und einen Garagenkomplex , wo Duplexstellplätze vorhanden...
Weitere Informationen
Besichtigungen
Besichtigungstermin müssen abgestimmt werden, diese können jahreszeitlich bedingt nur bei Tageslicht erfolgen. Senden Sie bei Interesse gern eine Mail mit Terminvorschlägen.
Haustiere
Bitte beachten - keine Haustierhaltung erlaubt ( Katz / Hund )
Stichworte
Zustand: saniert...
Dokumente
Anbieter der Immobilie
Märkische Grundstücks-Zentrale seit 1946 Cottbus GmbH
Virchowstr. 4, 03044 Cottbus

Online-ID: 2g4db5r
Finde Angebote wie dieses
Hier geht es zu unserem Impressum, den Allgemeinen Geschäftsbedingungen, den Hinweisen zum Datenschutz und nutzungsbasierter Online-Werbung.