Version: 8.26.0Navigation überspringen
meyer & partner Immobilien GmbH
Mietkosten auf Anfrage
431 m² Bürofläche

Bürofläche zur Miete
Mietkosten auf Anfrage
431 m² Bürofläche

Helle und flexible Büroflächen im Gewerbegebiet Dieselstraße mit perfekter Verkehrsanbindung!

Im Gewerbegebiet "Alte Ruhr" in der Dieselstraße erwartet Sie eine moderne und repräsentative Büroimmobilie, die durch zeitgemäße Architektur, flexible Flächenstrukturen und ein professionelles Umfeld überzeugt.
Die lichtdurchfluteten Einheiten bieten insgesamt ca. 431 m² Nutzfläche. Die Fläche eignet sich ideal für Unternehmen, die Wert auf einen repräsentativen Firmensitz mit Entwicklungsspielraum legen.
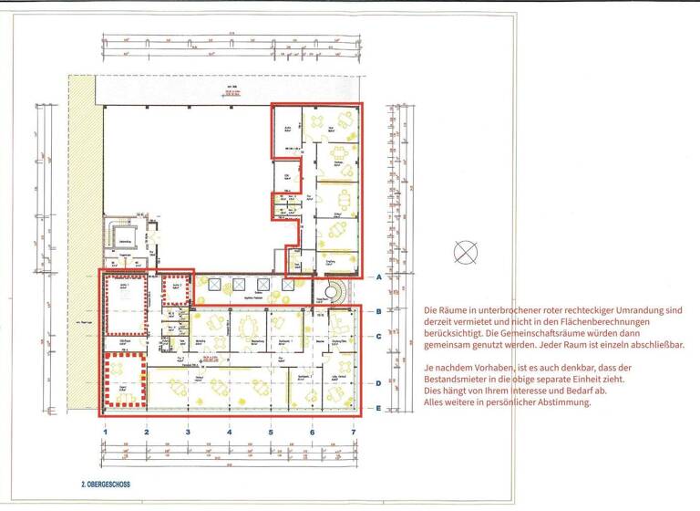
Eine weitere Unterteilung der Fläche wäre ebenfalls denkbar - für flexible, sinnvoll gestalte Lösungen ist man hier offen!

Ein Lastenaufzug mit Personenzulassung steht zur Verfügung und ist über den Seiteneingang gut erreichbar.

Die Räume sind praktisch aufgeteilt und bieten sowohl größere zusammenhängende Arbeitsbereiche als auch einzelne Büros. Dadurch lassen sich die Flächen je nach Bedarf unterschiedlich nutzen - zum Beispiel für klassische Büroarbeit mit festen Arbeitsplätzen oder für Teams, die enger zusammenarbeiten möchten.

Große Fensterfronten sorgen für eine helle, angenehme Arbeitsatmosphäre, während die moderne Gebäudetechnik optimale Voraussetzungen für zeitgemäßes, digitales Arbeiten schafft.

Die Immobilie ist, im Falle einer Anmietung gem. der aktuellen Flächenaufteilung, kurzfristig verfügbar.

Falls Sie weitere Flächen benötigen, wären im 1. OG weitere ca. 100 m² vakant.
Nach Absprache und mit zeitlichem Vorlauf könnte zudem eine Logistikhalle zusätzlich angemietet werden.
Weitere Informationen teilen wir Ihnen hierzu gerne persönlich mit.

Merkmale

  • Bezug: sofort
  • 3. Geschoss
  • Lastenaufzug
  • Einbauküche
  • Bodenbelag: Fliesen, Teppich
  • 10 Stellplätze: 10 Außen-Stellplätze
  • voll klimatisiert
Die Büroflächen präsentieren sich in einem modernen, gepflegten Zustand und sind technisch auf aktuellem Stand. Eine leistungsfähige Glasfaseranbindung gewährleistet schnelles und stabiles Internet - ideal für datenintensive Geschäftsmodelle. Bereits vorhandene EDV- und CAT-Verkabelung ermöglicht einen unmittelbaren Arbeitsstart ohne größeren Installationsaufwand.

Für ein angenehmes Raumklima sorgt eine überwiegend vorhandene Klimatisierung der Flächen, sodass auch in den Sommermonaten produktives Arbeiten möglich bleibt. Der repräsentative Eingangsbereich unterstreicht den professionellen Eindruck für Mitarbeiter und Geschäftspartner.

Weitere Ausstattungsmerkmale:
- Moderne, gepflegte Büroflächen mit bodentiefen Fenstern
- Klimatisierte Räume für angenehmes Arbeiten auch im Sommer
- Hochgeschwindigkeits-Glasfaseranschluss für schnelles Internet
- Vorhandene EDV- und CAT-Verkabelung - direkt nutzbar
- Flexible Raumaufteilung nach Wunsch des Mieters
- Ausreichend Parkplätze direkt am Gebäude
- Optional: zusätzliche Lagerflächen auf dem Grundstück
- Lastenaufzug mit Personenzulassung über Seiteneingang

Grundrisse

Grundrisse
1 / 1

Bausubstanz und Energie

Energieausweis

Endenergieverbrauch (Wärme)

Endenergieverbrauch (Strom)

  • Baujahr2003
  • EnergieträgerGas
MediumRectangleTop

Mietkosten

Miete auf Anfrage
Provision für Mieter
2,38 MM inkl. MwSt.
Für unsere Vermittlungstätigkeit ist vom Mieter bei Abschluss eines wirksamen Mietvertrages über diese Immobilie eine Provision in Höhe von 2,38 MM (inkl. MwSt.), zu zahlen.
Kaution
3 MM
Weitere Preisinformationen
10 Stellplätze

Lage

address-icon
NiedereimerArnsberg (59823)
Der Anbieter hat die genaue Adresse nicht freigegeben
Die Immobilie befindet sich im etablierten Gewerbegebiet Dieselstraße zwischen Niedereimer und Alt-Arnsberg und überzeugt durch ihre verkehrsgünstige Position. Der Autobahnzubringer ist in etwa 500 m erreichbar und gewährleistet eine schnelle Anbindung an das überregionale Verkehrsnetz. Auch der öffentliche Nahverkehr ist mit Haltestellen in fußläufiger Entfernung sehr gut erreichbar.

Der Standort kombiniert eine ruhige, geschäftsorientierte Umgebung mit hervorragender Erreichbarkeit und eignet sich damit optimal für Unternehmen, die einen gut angebundenen und zugleich repräsentativen Firmensitz suchen.

Weitere Informationen

Sonstiges Sämtliche Informationen beruhen auf Angaben des Eigentümers. Irrtum und Zwischenvermietung vorbehalten. Stichworte Stellplatz vorhanden, Sonstige Fläche: 100,00 m², modernisiert Sonstiges: EDV-Verkabelung

Weitere Services

Lust auf eine Besichtigung?
Eine Frage zur Immobilie?
Mit einer persönlichen Nachricht hast du bessere Chancen auf eine Antwort.
Mit der Nutzung der oben angegebenen Telefonnummer oder durch Klicken auf „Kontaktieren“ akzeptierst Du die Allgemeinen Nutzungsbedingungen, denen Du jederzeit widersprechen kannst. Weitere Informationen zum Datenschutz

Über den Anbieter

Schobbostraße 17, 59755 Arnsberg
partner badge
Partnerschaft
Herr Hannes Droste
Herr Hannes DrosteDein Kontakt
Online-ID: 26L45ELAEHDR
Referenznummer: 131014251#0QYaP
MediumRectangleTop
Wie zufrieden bist du mit dieser Seite (nicht mit der Immobilie selbst)?