Version: 8.25.1Navigation überspringen
Preis auf Anfrage
180 m² Gastrofläche  •  1.560 m² Grundstück
Immowelt logo

Restaurant zum Kauf
180 m² Gastrofläche  •  1.560 m² Grundstück

Restaurant in sehr gutgehender Lage von Dresden-Ostmit darüberliegender Wohnung zu verkaufen

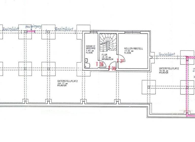
Dieses attraktive und vielfältig nutzbare Gewerbeobjekt wurde 1992 als Steinmetzbetrieb mit Produktionsräumen im Untergeschoss sowie Verkaufs- und Lagerräumen im Erdgeschoss erbaut und wurde in den letzten 20 Jahren als beliebtes Restaurant genutzt. Das Objekt verfügt an der Vorderseite über große Fensterfronten und zum Teil verglaste Oberlichter und ist somit sehr hell und lichtdurchflutet. Das Gebäude ist voll unterkellert, mit 4 separaten ebenerdigen Zugangs- bzw. Zufahrtsmöglichkeiten von der Hofseite aus. Im Obergeschoss befindet sich eine hübsche 2-Raum-Wohnung mit Dachterrasse. Diese Räumlichkeiten könnten auch gut als Büro genutzt werden. Ausreichend Stellplatzmöglichkeiten befinden sich auf der Hofseite des Grundstückes und der überdachten großzügigen Carportfläche. Das Gebäude kann sehr vielfältig genutzt werden, idealerweise wieder als Restaurant, aber auch als Ausstellungsfläche mit Verkauf, Atelier, Werkstatt im ebenerdig zu begehenden Untergeschoss, Wellness-Objekt…... Da das großzügige Untergeschoss vom Hof her ebenerdig zu befahren ist, bieten sich auch hier diverse Nutzungsmöglichkeiten, z.B. Garagen, geräumige Unterstellmöglichkeiten, Werkstatt, Lager, Verkauf usw. ….

Merkmale

  • 1.560 m² Grundstück
  • Garage
  • teilweise möbliert
  • Bodenbelag: Fliesen
  • Fenster: Kunststoff

Grundrisse

Grundrisse
1 / 3

Realisiere Dein Projekt

Bausubstanz und Energie

Möchtest du Details zum Energieverbrauch?info_energy_calculation-icon
  • Baujahr1992
  • HeizungsartZentralheizung
  • EnergieträgerGas
Immowelt logo

Preisdetails

Provision für Käufer
Die Provision beträgt bei Kauf 5,95 % des Kaufpreises und ist mit Unterzeichnung des notariellen Kaufvertrages fällig und vom Käufer an Kaesler Immobilien zu zahlen.

Lage

address-icon
Hosterwitz/PillnitzDresden (01326)
Der Anbieter hat die genaue Adresse nicht freigegeben
In Oberpoyritz an der Straße zwischen Pillnitz und Graupa gelegen, noch zu Dresden gehörend. Das Stadtzentrum Dresden ist etwa 15 km entfernt, bis zum Schloss Pillnitz sind es etwa 2 km und nach Pirna ca. 5 km. Busanbindung nach Pillnitz, Graupa und Pirna in unmittelbarer Nähe

Weitere Services

Lust auf eine Besichtigung?
Eine Frage zur Immobilie?
Nachricht hinzufügen
Mit der Nutzung der oben angegebenen Telefonnummer oder durch Klicken auf „Kontaktieren“ akzeptierst Du die Allgemeinen Nutzungsbedingungen, denen Du jederzeit widersprechen kannst. Weitere Informationen zum Datenschutz

Über den Anbieter

Karl-Stein-Str. 2B, 01189 Dresden
Frau Marlies KaeslerDein Kontakt
Online-ID: 26IZYHWR2BS2
Immobilien Marlies Kaesler
Immobilien Marlies Kaesler
Bewertung: 5 von 5 Sternen
Nachricht hinzufügen
Mit der Nutzung der oben angegebenen Telefonnummer oder durch Klicken auf „Kontaktieren“ akzeptierst Du die Allgemeinen Nutzungsbedingungen, denen Du jederzeit widersprechen kannst. Weitere Informationen zum Datenschutz
Wie zufrieden bist du mit dieser Seite (nicht mit der Immobilie selbst)?