Version: 8.25.1Navigation überspringen
7,84 €
45 m² Bürofläche
Immowelt logo

Büro zur Miete
7,84 €
/m²
45 m² Bürofläche

**VIDEOBESICHTIGUNG** Flexible Gewerbeflächen + Parkplätze (optional) mit perfekter Anbindung in Vösendorf kurzfristig mieten!

NUTZEN SIE VORAB DIE MÖGLICHKEIT ZUR VIDEOBESICHTIGUNG UNTER FOLGENDEM LINK:

https://storage.justimmo.at/file/27R4PjiLHxO7OvwxJiTF2P.mov [https://storage.justimmo.at/file/27R4PjiLHxO7OvwxJiTF2P.mov]

FLEXIBLE GEWERBEFLÄCHEN.

? Büroflächen ab ca. 15 m² (typisch rd. 15-30 m²+)
? Kombination mehrerer Einheiten oder ganze Geschosse möglich
? Nutzung: Büro, Lager, Praxis, Werkstatt, uvm.
? Parkplätze am Areal vorhanden
? Mietpreis ab € 8,- / m²
? ab sofort & kurzfristig verfügbar

 

BÜRO-, GESCHÄFTS- UND GEWERBEGEBÄUDE.

Das gegenständliche Gebäude wurde auf einem rd. 4.321m² Grundstück 1973-1976 errichtet, im Jahr 1979-1980 aufgestockt und seitdem wurden etliche Erweiterungen und Umbauten durchgeführt. 

In den 4 Baukörpern befinden sich diverse Büro-, Geschäfts- und Lagerflächen, sowie Werkstätten, welche teilweise bereits vermietet sind.

 

PARKPLATZ.

Die Zufahrt zur Liegenschaft erfolgt über öffentliches Gut. Auf der Liegenschaft selbst verläuft eine interne Wegführung zu den diversen Stellplätzen. Ein oder mehrere der insgesamt 37 Stellplätze können optional zusätzlich angemietet werden. 

 

AUSSTATTUNG.

Der Bau- und Erhaltungszustand der einzelnen Einheiten ist sehr unterschiedlich und mittelmäßig bzw. teilweise renovierungsbedürftig. 

Anschlüsse für Wasser, Strom, Kanal sind vorhanden. 

Beheizt wird das Gebäude mittels einer Ölheizung.

 

LAGE / INFRASTRUKTUR. 

Die Liegenschaft befindet sich im südlichen Bereich der Marktgemeinde Vösendorf in Niederösterreich, unweit der Wiener Stadtgrenze, westlich der Anschlussstelle zur S1 (Südosttangente) bzw. A2 (Südautobahn), so dass die Adresse ideal mit dem PKW zu erreichen ist. In der Nachbarschaft befinden sich vorwiegend Gewerbeflächen sowie Einfamilienhäuser. An das Grundstück anliegende, öffentliche Straßen sind einerseits im Norden die Ortsstraße und andererseits im Westen die Wilhelm-Hafenscher-Gasse. Über die nahegelegene (ca. 0,2km) Haltestelle "Bahnhof Vösendorf-Siebenhirten" ist die Liegenschaft ideal öffentlich angebunden - hier hält die Wiener Lokalbahn. Weiters befinden sich Haltestellen der Buslinien 61A, 207 und 266 in fußläufiger Nähe. Die U-Bahn Station "Siebenhirten" der Linie U6 ist binnen 9 - 19 Minuten mit dem Bus oder zu Fuß zu erreichen. Der Kaufpark Vösendorf bietet zahlreiche Geschäfte diverser Branchen. Mehrere Supermärkte und Gastronomiebetriebe befinden sich in unmittelbarer Nähe. 

* Gewerbe- und Wohngebiet
* Nachbarschaft: vorwiegend Gewerbeflächen und Einfamilienhäuser
* Bahnhof Vösendorf Siebenhirten (WLB) nur 0,2km entfernt, weitere Buslinien: 61A, 207, 266
* U-Bahn Haltestelle Siebenhirten (U6) 1,4km entfernt 
* Anschlussstelle Knoten Vösendorf an die Autobahn A21, A2, S1 direkt vis-a-vis
* Kaufpark Vösendorf, Supermärkte, Gastronomiebetriebe, Polizei, Postamt im Nahbereich vorhanden

-------------------------

BEI FRAGEN ODER INTERESSE AN EINER BESICHTIGUNG ERREICHEN SIE MICH GERNE TELEFONISCH UNTER +43 676 64 33 124 [tel:+436766433124] ODER PER E-MAIL AN KB@SULEK-IMMOBILIEN.AT.

 

Noch nichts gefunden?
Wir informieren Sie als Erste/r über passende Immobilienangebote.

Legen Sie jetzt Ihren individuellen Suchagenten über folgenden Link an.
Wir senden Ihnen geeignete Immobilien unverbindlich vorab zu.

Suchagent anlegen [https://sulek-immobilien.service.immo/registrieren/de] - https://sulek-immobilien.service.immo/registrieren/de

Hinweis gemäß Energieausweisvorlagegesetz: Ein Energieausweis wurde vom Eigentümer bzw. Verkäufer, nach unserer Aufklärung über die generell geltende Vorlagepflicht, sowie Aufforderung zu seiner Erstellung noch nicht vorgelegt. Daher gilt zumindest eine dem Alter und der Art des Gebäudes entsprechende Gesamtenergieeffizienz als vereinbart. Wir übernehmen keinerlei Gewähr oder Haftung für die tatsächliche Energieeffizienz der angebotenen Immobilie.

Der Vermittler ist als Doppelmakler tätig.

Infrastruktur / Entfernungen

Gesundheit
Arzt <1.000m
Apotheke <1.000m
Klinik <3.000m
Krankenhaus <3.500m

Kinder & Schulen
Schule <1.000m
Kindergarten <1.000m
Universität <6.000m
Höhere Schule <6.000m

Nahversorgung
Supermarkt <500m
Bäckerei <1.000m
Einkaufszentrum <1.000m

Sonstige
Geldautomat <1.000m
Bank <1.000m
Post <1.000m
Polizei <1.000m

Verkehr
Bus <500m
U-Bahn <1.500m
Straßenbahn <4.000m
Bahnhof <500m
Autobahnanschluss <500m

Angaben Entfernung Luftlinie / Quelle: OpenStreetMap

Merkmale

  • Bezug: sofort
  • 1. Geschoss
  • Teeküche
  • Lastenaufzug

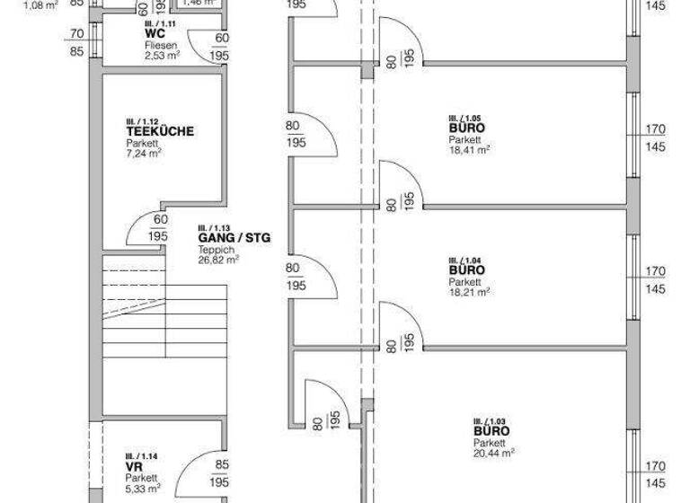
Grundrisse

Grundrisse
1 / 1

Realisiere Dein Projekt

Bausubstanz und Energie

Möchtest du Details zum Energieverbrauch?info_energy_calculation-icon
  • Baujahr1970
  • Zustand der ImmobilieNeubau
  • EnergieträgerÖl
Immowelt logo

Mietkosten

Nettokaltmiete
7,84 €/m²
352,72 €
Betriebskosten
134,47 €
Provision für Mieter
3 Bruttomonatsmieten zzgl. 20% USt.
Kaution
3 Bruttomonatsmieten
Weitere Preisinformationen
Nettokaltmiete: 352,72 EUR

Lage

address-icon
Vösendorf (2331)
Ortsstraße / Wilhelm-Hafenscher-Gasse

Weitere Informationen

Stichworte Stellplatz vorhanden, Bundesland: Niederösterreich

Weitere Services

Lust auf eine Besichtigung?
Eine Frage zur Immobilie?
Mit einer persönlichen Nachricht hast du bessere Chancen auf eine Antwort.
Mit der Nutzung der oben angegebenen Telefonnummer oder durch Klicken auf „Kontaktieren“ akzeptierst Du die Allgemeinen Nutzungsbedingungen, denen Du jederzeit widersprechen kannst. Weitere Informationen zum Datenschutz

Über den Anbieter

Fasangasse 30/10, 1030 WIEN
partner badge
Partnerschaft
Herr Kenan BilgiliDein Kontakt
Online-ID: 267Z4ZX8JPP2
Referenznummer: OBGC20260320112455741c0f099b848
Mittelsmann Philipp Sulek GmbH
Mittelsmann Philipp Sulek GmbH
Mit einer persönlichen Nachricht hast du bessere Chancen auf eine Antwort.
Mit der Nutzung der oben angegebenen Telefonnummer oder durch Klicken auf „Kontaktieren“ akzeptierst Du die Allgemeinen Nutzungsbedingungen, denen Du jederzeit widersprechen kannst. Weitere Informationen zum Datenschutz
Wie zufrieden bist du mit dieser Seite (nicht mit der Immobilie selbst)?