Version: 8.24.0Navigation überspringen
830.000 €
7 Zimmer  •  173 m²  •  616 m² Grundstück
Immowelt logo

Haus zum Kauf
830000 €
4.798 €/m²
7 Zimmer  •  173 m²  •  616 m² Grundstück

Wohn- und Geschäftshaus in Bergisch Gladbach - Heidkamp

Dieses vielseitige Wohn- und Geschäftshaus befindet sich in zentraler Lage von Bergisch Gladbach-Heidkamp und eignet sich hervorragend für Entwickler, Investoren oder Eigennutzer mit Weitblick. Das Gebäude wurde 1982 nach einem Brand vollständig neu errichtet und bietet heute ein großes Nutzungsspektrum - von Gastronomie über Gewerbe bis hin zu attraktivem Wohnraum.

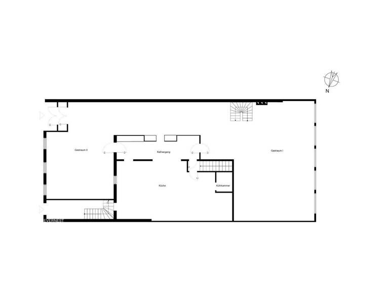
Gewerbeeinheit im Erdgeschoss - ca. 276 m²
Im Erdgeschoss befindet sich eine großzügige Gewerbefläche, die viele Jahre als Restaurant genutzt wurde. Die Fläche wurde vollständig entkernt, da eine umfassende Modernisierung samt technischer Erneuerung geplant war. Diese Sanierung wurde jedoch nicht mehr realisiert, sodass die Einheit heute im Rohbauzustand ist und individuell nach eigenen Vorstellungen ausgebaut werden kann.

Untergeschoss - ca. 266 m² mit ebenerdigem Ausgang
Das Untergeschoss bietet weitere ca. 266 m² und verfügt über Kühlräume, Lagerflächen, Sozialräume sowie getrennte WC-Anlagen für Gäste und Mitarbeiter. Von hier aus gelangt man ebenerdig auf die rückseitige Grundstücksfläche - ideal als Anlieferungs- oder Parkbereich. Auf dieser Seite befanden sich früher die Gästeparkplätze des Restaurants. Eine PKW-Garage ergänzt die Nutzflächen.

Wohnungen im Ober- und Dachgeschoss
Im Obergeschoss liegt eine großzügige 5-Zimmer-Wohnung mit ca. 118 m² Wohnfläche. Sie verfügt über eine weitläufige Terrasse mit rund 25 m² und wird aktuell vom Eigentümer genutzt.
Der ausgebaute Dachboden bietet eine weitere Wohneinheit: eine charmante 2-Zimmer-Wohnung mit ca. 54 m², entstanden ebenfalls im Zuge des Wiederaufbaus.

Grundstück und Entwicklungspotenzial
Das Grundstück umfasst ca. 616 m² und bietet aufgrund seiner Größe und der beidseitigen Anfahrbarkeit hervorragende Entwicklungsmöglichkeiten.
Für das Erdgeschoss kommen verschiedene Optionen infrage:
. Umnutzung zu attraktiven Wohnflächen
. Aufteilung in zwei voneinander getrennte Gewerbeeinheiten
. Prüfung zusätzlicher Bebauungsmöglichkeiten zur weiteren Wertsteigerung

Fazit
Das Objekt bietet aufgrund seiner Flächenstruktur, der Lage und des Ausbaupotenzials ein enormes Entwicklungspotenzial. Ob für Gastronomie, Gewerbe, Wohnen oder eine Kombination: Die Immobilie eröffnet vielfältige Nutzungskonzepte und stellt eine spannende Möglichkeit für Investoren und Projektentwickler dar.

Merkmale

  • 616 m² Grundstück
  • Keller
  • 9 Stellplätze
  • Terrasse
neue Heizung
großes Grundstück mit Entwicklungspotential
große Gewerbefläche von ca. 340 m2
zusätzliche Nutzfläche von ca. 340 m2

Grundrisse

Grundrisse
1 / 4

Realisiere Dein Projekt

Bausubstanz und Energie

Energieausweis

D
  • Baujahr1982
  • Zustand der Immobilieteilsaniert
  • EnergieträgerGas
Immowelt logo

Preisdetails

Kaufpreis
830000 €
4.797,69 €/m²
Provision für Käufer
5.95 inkl. MwSt.
Bei Abschluss eines notariellen Kaufvertrages ist eine Käuferprovision vom Käufer in Höhe von 5.95 % inkl. MwSt. aus dem Kaufpreis fällig.
Geschätzte Gesamtkosten
930.181 €1
Kaufpreis
830.000 €
Notarkosten (1,5%)
12.450 €
Grunderwerbsteuer (6,5%)
53.950 €
Provision für Käufer (3,57%)
29.631 €
Grundbucheintrag (0,5%)
4.150 €
1Der angezeigte Wert ist eine automatisch berechnete Schätzung von immowelt.
2Bei den Angaben handelt es sich um ortsübliche Werte. Individuelle Kosten können abweichen.

Lage

address-icon
HeidkampBergisch Gladbach (51469)
Der Anbieter hat die genaue Adresse nicht freigegeben
Heidkamp ist ein lebendiger Stadtteil von Bergisch Gladbach mit einer gewachsenen Infrastruktur. Die zentrale Lage bietet eine gute Anbindung an den öffentlichen Nahverkehr sowie die Autobahnen A3 und A4. Einkaufsmöglichkeiten, Schulen, Kindergärten und medizinische Einrichtungen befinden sich in unmittelbarer Nähe. Die Kombination aus urbanem Flair und hoher Lebensqualität macht diesen Standort besonders attraktiv.

Weitere Informationen

Stichworte Garage vorhanden, Nutzfläche: 542,00 m², Anzahl der Badezimmer: 2, Anzahl der separaten WCs: 4, Anzahl Terrassen: 1, 3 Etagen

Weitere Services

Lust auf eine Besichtigung?
Eine Frage zur Immobilie?
Nachricht hinzufügen
Mit der Nutzung der oben angegebenen Telefonnummer oder durch Klicken auf „Kontaktieren“ akzeptierst Du die Allgemeinen Nutzungsbedingungen, denen Du jederzeit widersprechen kannst. Weitere Informationen zum Datenschutz

Über den Anbieter

Evernest GmbH
Evernest GmbHMaklerbüro
Mönkedamm 9-11, 20457 Hamburg
partner badge
Partnerschaft
Thomas GinczekDein Kontakt
Online-ID: 2m2et5u
Referenznummer: L-MFM9Q98
Evernest GmbH
Evernest GmbH
Bewertung: 4,5 von 5 Sternen
Nachricht hinzufügen
Mit der Nutzung der oben angegebenen Telefonnummer oder durch Klicken auf „Kontaktieren“ akzeptierst Du die Allgemeinen Nutzungsbedingungen, denen Du jederzeit widersprechen kannst. Weitere Informationen zum Datenschutz
Wie zufrieden bist du mit dieser Seite (nicht mit der Immobilie selbst)?