Version: 8.22.6Navigation überspringen
975 €
57 m² Verkaufsfläche
Immowelt logo

Laden zur Miete
975 €
57 m² Verkaufsfläche

Attraktive Gewerbeeinheit in zentraler Lage von Geretsried

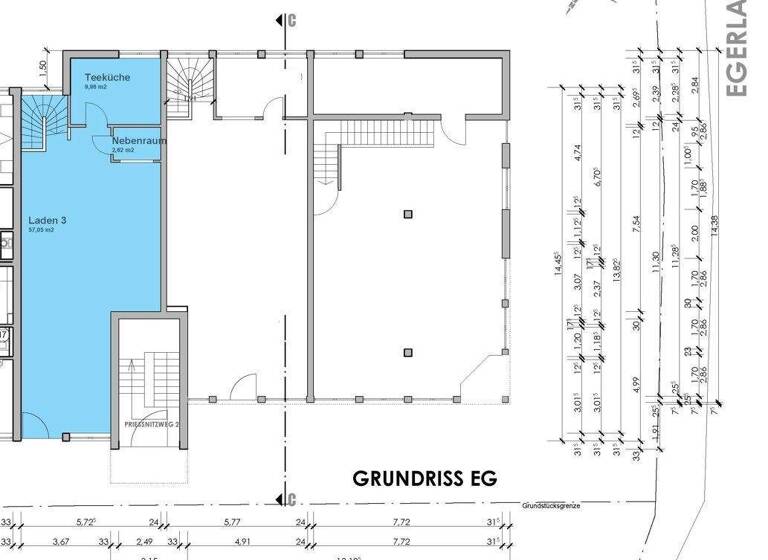
Diese vielseitig nutzbare Gewerbeeinheit überzeugt mit einer Gesamtfläche von ca. 150 m² und bietet ideale Voraussetzungen für Einzelhandel, Büro oder Dienstleistungsunternehmen. Die Fläche erstreckt sich über zwei Ebenen und vereint großzügige Präsentationsmöglichkeiten mit praktischer Lagerkapazität.

Im Erdgeschoss stehen Ihnen rund 70 m² zur Verfügung. Ein großzügiger Verkaufs- bzw. Büroraum bildet das Herzstück der Einheit und profitiert von einer Deckenhöhe von über drei Metern, die ein angenehmes Raumgefühl schafft. Die vorhandene Raster-/Kassettendecke unterstreicht den professionellen Charakter der Immobilie. Ergänzt wird diese Ebene durch eine separate Küche bzw. ein kleines Lager. Die Schaufensterfront zur Straßenseite sorgt für eine sehr gute Sichtbarkeit und bietet optimale Präsentationsmöglichkeiten für Ihr Unternehmen.

Das Kellergeschoss mit weiteren ca. 80 m² ist direkt vom Erdgeschoss aus zugänglich und bietet zwei großzügige Lagerräume. Zusätzlich stehen hier getrennte Toilettenanlagen für Damen und Herren zur Verfügung. Damit eignet sich die Einheit ideal für Betriebe mit erhöhtem Lagerbedarf oder zusätzlichem Platzbedarf für Organisation und Archivierung.

Die Nähe zur "Neuen Mitte Geretsried" - nur etwa 300 Meter entfernt - macht diesen Standort besonders attraktiv und gut erreichbar.

Merkmale

  • Bezug: ab sofort
  • 4 m Schaufensterfront
  • Außen-Stellplatz
  • DSL-Anschluss
  • Bodenbelag: Fliesen
Die Immobilie bietet folgende Ausstattungsmerkmale:

- ca. 150 m² Gesamtfläche auf zwei Ebenen
- ca. 70 m² im Erdgeschoss mit großzügigem Verkaufs-/Büroraum
- Deckenhöhe über 3 Meter im Erdgeschoss
- Raster-/Kassettendecke
- Schaufensterfront zur Straße mit sehr guter Sichtbarkeit
- separate Küche im Erdgeschoss
- ca. 80 m² Kellergeschoss mit zwei großen Lagerräumen
- direkter Zugang vom Erd- ins Kellergeschoss
- getrennte Toilettenanlagen (Damen/Herren)
- alle Räume gefliest
- ein ebenerdiger PKW-Stellplatz
- nur ca. 300 m zur Neuen Mitte Geretsried

Überzeugen Sie sich selbst von den vielseitigen Nutzungsmöglichkeiten dieser attraktiven Gewerbefläche. Für weitere Informationen oder einen Besichtigungstermin stehen wir Ihnen selbstverständlich gerne zur Verfügung.

Grundrisse

Grundrisse
1 / 2

Realisiere Dein Projekt

Bausubstanz und Energie

Energieausweis

Endenergiebedarf (Wärme)

  • Baujahr1980
  • Zustand der ImmobilieGepflegt
Immowelt logo

Mietkosten

Warmmiete
1.250 €
Nettomiete
975 €
Nebenkosten
250 €
Heizkosten
in Warmmiete enthalten
Zusätzliche Kosten
Miete pro Stellplatz
25 €
Provision für Mieter
1,19 MM inkl. MwSt.
Kaution
2000 €

Lage

address-icon
Prießnitzweg 2aGartenbergGeretsried (82538)
Nähe Zentrum Geretsried - Vom kleinen Weiler zur größten Stadt im Landkreis

Erstmals erwähnt wurde der Ort im Jahr 1083. Ab dem 13. Jahrhundert haben Flößer Rohstoffe über den nahe gelegenen Fluss Isar nach München transportiert. Auch viele "Landreisende" kamen durch den Ort, da damals die Postroute München - Innsbruck - Italien am Ort entlangführte. Später wurde daraus die Reichsstraße, anschließend die Bundesstraße B11. Von 1937 bis 1945 haben sich diverse Rüstungsbetriebe in Geretsried niedergelassen. Ab 1946 war der Ort ein Flüchtlingslager, 1950 wurde dann die eigenständige Gemeinde Geretsried gegründet.

Heute ist Geretsried mit seinen ca. 25.000 Einwohnern die größte Stadt im Landkreis Bad Tölz / Wolfratshausen. Es gibt eine Eishalle, ein Schwimmbad und ein Heimatmuseum. Ca. 40 Sportvereine sind in der Stadt gemeldet. Auch für den unorganisierten Freizeitsport gibt es ein großes Angebot wie Bolzplätze, Skateranlagen, Tennisplätze, im Winter diverse Langlaufloipen und vieles mehr.

Auch Ihre Kinder sind versorgt, es gibt zahlreiche Kindergärten und Kindergrippen in Geretsried. Auch schulisch ist der Ort bestens ausgestattet: es gibt eine Grund-, Mittel-, Real- und Förderschule sowie ein Gymnasium. Für die Nachmittagsbetreuung stehen diverse Horte zur Verfügung.

Weitere Services

Lust auf eine Besichtigung?
Eine Frage zur Immobilie?
Nachricht hinzufügen
Mit der Nutzung der oben angegebenen Telefonnummer oder durch Klicken auf „Kontaktieren“ akzeptierst Du die Allgemeinen Nutzungsbedingungen, denen Du jederzeit widersprechen kannst. Weitere Informationen zum Datenschutz

Über den Anbieter

Liebhardt Gebäudemanagement GmbH
Im Thal 2, 82377 Penzberg
partner badge
6 Jahre Partnerschaft
Online-ID: 2nx3b5k
Referenznummer: V 1449
Liebhardt Gebäudemanagement GmbH
Liebhardt Gebäudemanagement GmbH
Bewertung: 4,5 von 5 Sternen
Nachricht hinzufügen
Mit der Nutzung der oben angegebenen Telefonnummer oder durch Klicken auf „Kontaktieren“ akzeptierst Du die Allgemeinen Nutzungsbedingungen, denen Du jederzeit widersprechen kannst. Weitere Informationen zum Datenschutz
Wie zufrieden bist du mit dieser Seite (nicht mit der Immobilie selbst)?