
IMMO.PARTNER Lichtenberg & Steinbrenner GmbH
004 ···
Nr. anzeigenPreise & Kosten
Provision für Käufer
provisionsfrei
Lage
Der Ortsteil Erichshagen / Wölpe besticht durch seine naturnahe und familienfreundliche Atmosphäre im Norden von Nienburg. Hier erwartet Sie eine harmonische Kombination aus grünen, gepflegten Wohngebieten und großzügigen Grünflächen - ideal für Familien, Naturfreunde und alle, die eine ruhige, lebenswerte Umgebung schätzen...
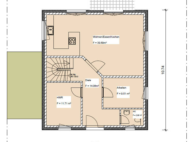
Das Haus
Kategorie
Einfamilienhaus
Energie & Heizung
Warum sehe ich diese Anzeige? – Du siehst diese Anzeige basierend auf Ihrer Navigation auf unserer Website und den Suchkriterien, die du verwendet hast.
Weitere Energiedaten
Heizungsart
Luft-/Wasser-Wärmepumpe
Details
Objektbeschreibung
Willkommen in Ihrem neuen Zuhause!
Dieses anspruchsvolle Einfamilienhaus im architektonischen Landhausstil vereint zeitlose Eleganz mit modernster Bauqualität.
Das geplante Neubauprojekt "Wohnen an den Schipsewiesen" besteht insgesamt aus zwei freistehenden Einfamilienhäusern sowie zwei...
Weitere Informationen
Sonstiges
Der Kaufpreis basiert auf der Bau- und Leistungsbeschreibung, individuelle Wünsche können berücksichtigt werden.
Fordern Sie gern unser Exposé mit weiteren Informationen an.
Der Kauf ist für den Käufer provisionsfrei, die Provision übernimmt der Verkäufer.
HINWEIS ZUM ENERGIEAUSWEIS:
Es...
Anbieter der Immobilie
Online-ID: 2k3uc59
Referenznummer: IP5044
Finde Angebote wie dieses
Hier geht es zu unserem Impressum, den Allgemeinen Geschäftsbedingungen, den Hinweisen zum Datenschutz und nutzungsbasierter Online-Werbung.