Version: 8.24.0Navigation überspringen
Tomas Krämer Handelsvertretung der Bien-Zenker GmbH
449.566 €
4 Zimmer  •  88 m²  •  650 m² Grundstück

Bungalow zum Kauf
449566 €
5.109 €/m²
4 Zimmer  •  88 m²  •  650 m² Grundstück

Bien-Zenker AMBIENCE 88 - Ihr individuelles Zuhause auf einer Ebene

Das AMBIENCE 88 von Bien-Zenker demonstriert eindrucksvoll, dass auch ein Bungalow genügend Platz für eine kleine Familie bieten kann. Mit einer durchdachten Wohnfläche von etwa 88 m² ist dieses Fertighaus perfekt auf die Bedürfnisse seiner Bewohner abgestimmt. Der offene Wohnbereich, der sich nach Süden öffnet, ist der ideale Ort für gesellige Stunden und lässt viel Licht herein, während die privaten Räumlichkeiten im Norden eine ruhige Atmosphäre schaffen. Ob mit Sattel-, Walm- oder Flachdach - jede Variante des AMBIENCE 88 überzeugt durch ihre stilvolle Architektur und den durchdachten Komfort, der auf einer einzigen Ebene realisiert ist. Hier genießen Sie ein harmonisches Wohngefühl, das sowohl Ästhetik als auch Funktionalität vereint.

Die Ausbaustufe ZAF ist besonders geeignet für kreative Bauherren, die gerne selbst Hand anlegen möchten. Bien-Zenker übernimmt den Rohbau sowie den technischen Innenausbau, während Sie die Möglichkeit haben, Böden zu verlegen, Malerarbeiten durchzuführen und Sanitärinstallationen vorzunehmen. Dies ermöglicht Ihnen nicht nur, Ihre eigene Note in Ihr Zuhause einzubringen und Geld zu sparen, sondern auch Ihre handwerklichen Fähigkeiten optimal einzusetzen und sich somit noch mehr mit Ihrem neuen Heim zu identifizieren.

Mit Bien-Zenker entscheiden Sie sich nicht nur für ein Haus, sondern für ein echtes Zuhause, das Sie nach Ihren Vorstellungen gestalten können. Bei der Planung und Ausführung steht Ihnen das erfahrene Team von Bien-Zenker zur Seite, um sicherzustellen, dass Ihr individuelles Traumhaus Wirklichkeit wird.

Grundrisse und Abbildungen können Extras zeigen. Flächenangaben nach DIN 277.

Merkmale

  • 650 m² Grundstück
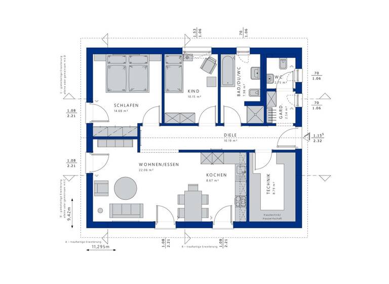
Der Grundriss des AMBIENCE 88 ist clever durchdacht und bietet Ihnen alles, was Sie sich für Ihr zukünftiges Zuhause wünschen. Mit einer Wohnfläche von 88 m² haben Sie genügend Raum für bis zu drei Personen, wobei die Aufteilung der Zimmer ideal auf die Bedürfnisse von Familien abgestimmt ist. Der offene Wohn- und Essbereich fördert die Kommunikation und schafft ein einladendes Ambiente, während die privaten Rückzugsorte als Ruhepole fungieren. Dies ermöglicht Ihnen, sowohl gemeinsame Zeit zu verbringen als auch die nötige Privatsphäre zu genießen.

Zusätzlich bietet das AMBIENCE 88 praktische Komfortdetails, die Ihren Alltag bereichern. Ob lichtdurchflutete Räume, die durch große Fensterflächen einen herrlichen Ausblick in die Umgebung bieten, oder eine gut geplante Raumaufteilung, die Ihnen ein Höchstmaß an Funktionalität ermöglicht - alles ist darauf ausgelegt, Ihr Wohnerlebnis zu verbessern. Auch die Möglichkeit, einen Balkon oder eine Terrasse zu gestalten, sorgt für zusätzliche Aufenthaltsqualität und lädt dazu ein, die warmen Monate im Freien zu genießen.

Die Ausbaustufe ZAF ermöglicht es Ihnen, aktiv an der Gestaltung Ihres Hauses mitzuwirken. Sie erhalten den Rohbau sowie den technischen Innenausbau von Bien-Zenker und können danach selbst die Böden verlegen, Wände streichen und Sanitärinstallationen durchführen. Diese Herangehensweise gibt Ihnen nicht nur die Freiheit, kreative Ideen zu verwirklichen, sondern auch die Möglichkeit, Kosten zu sparen. So wird der Bauablauf für Sie komfortabel und flexibel gestaltet, während Sie gleichzeitig Ihre persönlichen Wünsche einfließen lassen können.

Grundrisse

Grundrisse
1 / 1

Realisiere Dein Projekt

Bausubstanz und Energie

Der Anbieter hat keine Informationen zu Energieverbrauch oder Zustand der Immobilie bereit gestellt.
MediumRectangleTop

Preisdetails

Kaufpreis
449566 €
5.108,70 €/m²
Provision für Käufer
Bei Abschluss eines Kaufvertrages wird eine Vermittlungs-/ Nachweisprovision in Höhe von 5,8 % inklusive 19 % Mehrwertsteuer auf den Kaufpreis vom Käufer fällig.
Geschätzte Gesamtkosten
501.581 €1
Kaufpreis
449.566 €
Notarkosten (1,5%)
6.743 €
Grunderwerbsteuer (6%)
26.974 €
Provision für Käufer (3,57%)
16.050 €
Grundbucheintrag (0,5%)
2.248 €
1Der angezeigte Wert ist eine automatisch berechnete Schätzung von immowelt.
2Bei den Angaben handelt es sich um ortsübliche Werte. Individuelle Kosten können abweichen.

Lage

address-icon
GünterfürstErbach (64711)
Der Anbieter hat die genaue Adresse nicht freigegeben
Die Lage in Erbach bietet Ihnen eine hervorragende Lebensqualität mit zahlreichen Möglichkeiten für Bildung, Gesundheit, Einkauf und Freizeit. In unmittelbarer Nähe finden Sie verschiedene Schulen und Kindergärten, die eine gute Ausbildung für Ihre Kinder garantieren. Gesundheitsdienstleister und Apotheken sind ebenfalls gut erreichbar, sodass Sie im Bedarfsfall schnell versorgt sind. Die Einkaufsmöglichkeiten sind vielfältig und bieten alles, was das Herz begehrt, von großen Supermärkten bis hin zu kleinen, charmanten Geschäften in der Umgebung.

Für die Freizeitgestaltung stehen in Erbach zahlreiche Angebote zur Verfügung. Ob Sportvereine, Parks oder kulturelle Einrichtungen - hier ist für jeden etwas dabei. Zudem sind die Anbindungen an den öffentlichen Nahverkehr ideal, sodass Sie schnell und bequem in die umliegenden Städte gelangen. Die Autobahn ist ebenfalls in kurzer Zeit erreichbar, was Ihnen die Möglichkeit gibt, auch weiter entfernte Ziele mühelos zu erreichen. Diese Kombination aus einer ruhigen Wohnlage und einer hervorragenden Infrastruktur macht Erbach zu einem attraktiven Standort für Ihr neues Zuhause.

Weitere Services

Lust auf eine Besichtigung?
Eine Frage zur Immobilie?
Nachricht hinzufügen
Mit der Nutzung der oben angegebenen Telefonnummer oder durch Klicken auf „Kontaktieren“ akzeptierst Du die Allgemeinen Nutzungsbedingungen, denen Du jederzeit widersprechen kannst. Weitere Informationen zum Datenschutz

Über den Anbieter

Hulster Straße 9, 64720 Michelstadt
partner badge
Partnerschaft
Herr Tomas KrämerDein Kontakt
Online-ID: 2lh245e
Referenznummer: 11340-64711- Ambi 88 ZAF KW 37
Tomas Krämer Handelsvertretung der Bien-Zenker GmbH
Tomas Krämer Handelsvertretung der Bien-Zenker GmbH
Nachricht hinzufügen
Mit der Nutzung der oben angegebenen Telefonnummer oder durch Klicken auf „Kontaktieren“ akzeptierst Du die Allgemeinen Nutzungsbedingungen, denen Du jederzeit widersprechen kannst. Weitere Informationen zum Datenschutz
MediumRectangleTop
MediumRectangleTop
Wie zufrieden bist du mit dieser Seite (nicht mit der Immobilie selbst)?