Gepflegtes Apartmenthaus mit vielseitigem Nutzungspotenzial, 17 Zimmern auf ca. 614m² Wohn- und Nutzfläche
In attraktiver Lage von Hamburg-Rahlstedt präsentiert sich dieses hochwertige Apartmenthaus als seltene Gelegenheit für Investoren oder Gewerbetreibende mit Anspruch.
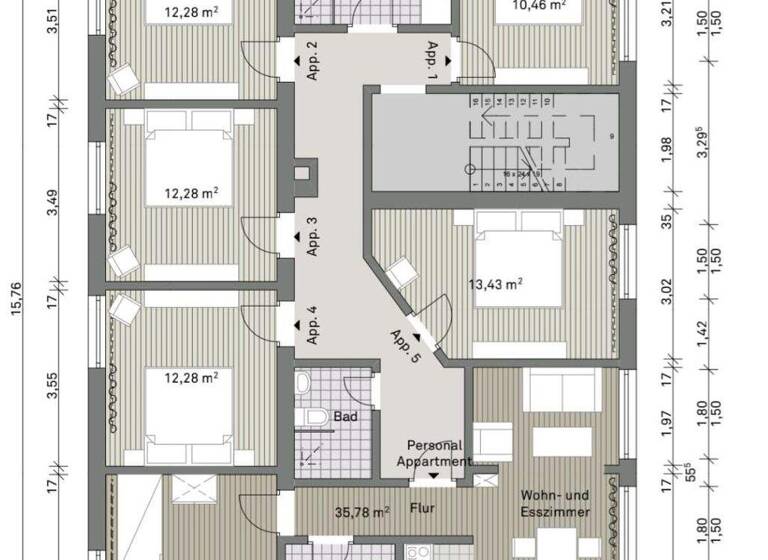
Das auf einem ca. 668 m² großen Grundstück errichtete Objekt verfügt über eine Wohn- und Nutzfläche von ca. 614 m² und erstreckt sich über drei Etagen. Insgesamt stehen 17 Zimmer zur Verfügung, die eine flexible Nutzung ermöglichen, ideal für ein Apartmentkonzept, Wohnen und Arbeiten oder eine gemischte Nutzung.
Das Gebäude überzeugt durch seine solide Bauweise, eine repräsentative Erscheinung sowie eine durchdachte Raumaufteilung. Die Immobilie ist voll unterkellert und bietet somit zusätzliche Nutz- und Abstellflächen, die den Komfort und die Funktionalität des Hauses erheblich erweitern.
Insgesamt stehen 6 Badezimmer sowie 4 separate WCs zur Verfügung, was insbesondere bei Mehrparteien- oder Apartmentnutzung einen hohen praktischen Mehrwert darstellt. Die Ausstattung ist als hochwertig zu bezeichnen und unterstreicht den gehobenen Charakter des Objekts.
Abgerundet wird das Angebot durch ca. fünf Stellplätze auf dem Grundstück, ein nicht zu unterschätzender Vorteil in dieser gefragten Hamburger Lage.
Dank der guten Infrastruktur, der schnellen Anbindung an den öffentlichen Nahverkehr sowie der Nähe zu Einkaufsmöglichkeiten, Schulen und Grünflächen ist die Lage sowohl bei Mietern als auch Eigennutzern äußerst beliebt.
Dieses Apartmenthaus vereint Lage, Größe und Qualität und bietet ein enormes Potenzial, sei es als attraktive Kapitalanlage, Apartmenthaus oder für eine individuelle Nutzung mit Entwicklungsspielraum.
Merkmale
Bezug: sofort
668 m² Grundstück
Einbauküche
Keller
5 Stellplätze: 5 Außen-Stellplätze
Gäste-WC
Balkon
Badezimmer: Bad mit Dusche, Bad mit Fenster
Grundrisse
Grundrisse
1 / 3
Bausubstanz und Energie
Möchtest du Details zum Energieverbrauch?
Baujahr1973
Zustand der ImmobilieMassivhaus, neuwertig
Preisdetails
Kaufpreis
2200000 €2.200.000 €
4.191 €/m²
Provision für Käufer
7,14 % inkl. MwSt. 7,14 % Käuferprovision inkl. MwSt., verdient und fällig mit Beurkundung des notariellen Kaufvertrages an die Fa. RN Immobilien GmbH.
Weitere Preisinformationen
5 Stellplätze
Geschätzte Gesamtkosten
2.443.540 €1
Kaufpreis
2.200.000 €
Kaufnebenkosten
243.540 €
2
Notarkosten (1,5%)
33.000 €
Grunderwerbsteuer (5,5%)
121.000 €
Provision für Käufer (3,57%)
78.540 €
Grundbucheintrag (0,5%)
11.000 €
1Der angezeigte Wert ist eine automatisch berechnete Schätzung von immowelt.
2Bei den Angaben handelt es sich um ortsübliche Werte. Individuelle Kosten können abweichen.
Lage
Rahlstedt, Hamburg (22149)
Der Anbieter hat die genaue Adresse nicht freigegeben
Die Immobilie befindet sich in attraktiver Lage von Hamburg-Rahlstedt und überzeugt durch eine sehr gute Anbindung an den öffentlichen Nahverkehr. Busverbindungen sowie der Bahnhof Hamburg-Rahlstedt sind schnell erreichbar und ermöglichen eine komfortable Verbindung in die Hamburger Innenstadt und das Umland.
Zahlreiche Supermärkte, Bäckereien und weitere Einkaufsmöglichkeiten für den täglichen Bedarf befinden sich in unmittelbarer Nähe und sind fußläufig oder in wenigen Minuten erreichbar. Ergänzt wird das Angebot durch das nahegelegene Rahlstedt-Center mit einer Vielzahl an Geschäften und Dienstleistungen.
Die Kombination aus hervorragender Infrastruktur, guter Erreichbarkeit und hoher Nachfrage macht diese Lage besonders attraktiv für Bewohner und Mieter.
Weitere Informationen
Stichworte
Stellplatz vorhanden, Nutzfläche: 130,00 m², Anzahl der Schlafzimmer: 17, Anzahl der Badezimmer: 6, Anzahl der separaten WCs: 4, Anzahl Balkone: 1, Kellerfläche: 89,87 m², 3 Etagen, Lage im Ort, modernisiert: 2024