Version: 8.26.0Navigation überspringen
McMakler GmbH
Preis auf Anfrage
683,8 m² Gastrofläche

Gastronomie/Hotel zum Kauf
683,8 m² Gastrofläche

Traditioneller Landgasthof sucht Nachfolger

Objektnr: 1068684

Ein etablierter und alteingesessener Landgasthof mit langjähriger Erfolgsgeschichte sucht einen Nachfolger - ideal für Gastronomen oder Investoren - Familienunternehmen oder junges Fachehepaar, die einen bestens eingeführten Betrieb übernehmen möchten.

Die Immobilie überzeugt durch eine solide wirtschaftliche Basis, eine treue Stammkundschaft sowie einen ausgezeichneten Ruf in der Region. Hier treffen Tradition, gewachsene Strukturen und nachhaltiger Erfolg auf attraktive Entwicklungsmöglichkeiten.

Gastronomie & Hotelbetrieb im Überblick:

Nutzfläche: ca. 490 m²
Grundstücksfläche: ca. 1.644 m²
Ursprungsbaujahr: 1887

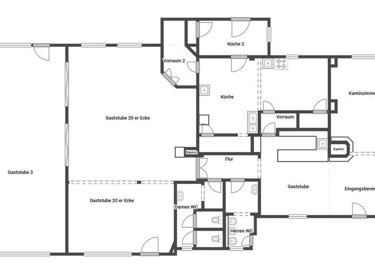
Im Erdgeschoss befindet sich der etablierte Gastronomiebereich mit ca. 80 Sitzplätzen im Innenraum sowie weiteren 80 Sitzplätzen im großzügigen Biergarten. Ein Veranstaltungsraum und eine separate Terrasse bieten zusätzliche Möglichkeiten für Feiern, Events und saisonale Angebote.

Die Gastronomie ist funktional und professionell ausgestattet. Der moderne Küchenblock (Einbau ca. 2013) mit Gasherd und hochwertiger Küchentechnik ermöglicht einen reibungslosen Betriebsablauf. Die Gäste-WCs wurden 2020 umfassend modernisiert.

Ein besonderes Highlight ist die im Keller integrierte Kegelbahn, die insbesondere bei Stammgästen und Vereinen sehr geschätzt wird. Eine funktionierende Drainageanlage (1980er Jahre) sorgt für ein trockenes Untergeschoss.

Im Obergeschoss befindet sich der Hotelbetrieb mit 9 Gästezimmern, jeweils ausgestattet mit modernen Duschbädern. Diese wurden 2020 saniert und präsentieren sich in zeitgemäßem Design. Laufende Instandhaltungsmaßnahmen sichern den gepflegten Zustand der gesamten Liegenschaft.

Das Gebäude wurde in den 1950er Jahren neu aufgebaut und in den 1970er Jahren erweitert. Die Heizungsanlage stammt aus ca. 2010, teilweise wurden bereits Fenster erneuert (ca. 2013). Ein großzügiger Carport bzw. Unterstand (Baujahr 2022) ergänzt das Angebot.

Hier bietet sich eine ideale Gelegenheit, eine erfolgreiche Gastronomie mit Hotelbetrieb aus bewährten Händen zu übernehmen und weiterzuführen.



Der Energieausweis ist beantragt und liegt spätestens zur Besichtigung vor.

Merkmale

  • Bezug: nach Absprache
  • 1 Geschoss
  • Keller
  • 20 Stellplätze
  • 100 Sitzplätze
+ Sowohl als Kapitalanlage als auch zur Selbstnutzung für eigenen Betrieb geeignet - in vorteilhafter Lage von Lütjensee
+ Hohes Rendite- und Vermietungspotenzial
+ Gaststube mit Kamin, ca. 30 Sitzplätze, Räumlichkeiten für Feierlichkeiten bis zu 100 Personen, 9 Gästezimmer inkl. Bäder, Biergarten, Kegelbahn
+ Insgesamt ca. 20 Stellplätze

Grundrisse

Grundrisse
1 / 8

Bausubstanz und Energie

Möchtest du Details zum Energieverbrauch?info_energy_calculation-icon
  • Baujahr1887
MediumRectangleTop

Preisdetails

Provision für Käufer
Die Provision i.H.v. 7,14 % inkl. MwSt. ist mit Kaufvertragsbeurkundung fällig, sofern der Verkaufspreis über 83.000,00 € liegt.

Liegt der Verkaufspreis dagegen bei/unter 83. Weitere Informationen siehe Provisionshinweis.

Lage

address-icon
Lütjensee (22952)
Der Anbieter hat die genaue Adresse nicht freigegeben
Lage: Attraktive Lage in Lütjensee mit guten Bedingungen für Gewerbetreibende
Nahversorgung: Tägl. Bedarf durch Supermarkt, Apotheke, Postfiliale und Bankfiliale in max. 6 km gedeckt
Bildung und Betreuung: Bildungs- und Betreuungsangebot umfasst einen Kindergarten (max. 6 km)
Anbindung: Bahnhof und Autobahn gut erreichbar

Weitere Informationen

Provisionshinweis Die Provision i.H.v. 7,14 % inkl. MwSt. ist mit Kaufvertragsbeurkundung fällig, sofern der Verkaufspreis über 83.000,00 € liegt.

Liegt der Verkaufspreis dagegen bei/unter 83.000,00 €, ist die fest vereinbarte Mindestprovision i.H.v. mind. 5.950,00 € inkl. MwSt. mit Kaufvertragsbeurkundung fällig. Die Mindestprovision fällt insg. nur einmal an, wodurch Verkäufer und Käufer die Mindestprovision dann jeweils mit 2.975,00 € inkl. MwSt. tragen. Sonstiges Vereinbaren Sie noch heute einen Besichtigungstermin!
_____________________________________________________

Alle Angaben sind ohne Gewähr und basieren ausschließlich auf Informationen, die uns von unserem Auftraggeber zur Verfügung gestellt wurden. Wir übernehmen keine Gewähr für die Vollständigkeit, Richtigkeit und Aktualität der Angaben. Stichworte Gesamtfläche: 683,80 m², Sonstige Fläche: 194,00 m², 1 Etagen

Weitere Services

Lust auf eine Besichtigung?
Eine Frage zur Immobilie?
Nachricht hinzufügen
Mit der Nutzung der oben angegebenen Telefonnummer oder durch Klicken auf „Kontaktieren“ akzeptierst Du die Allgemeinen Nutzungsbedingungen, denen Du jederzeit widersprechen kannst. Weitere Informationen zum Datenschutz

Über den Anbieter

Am Postbahnhof 17, 10243 Berlin
Ihr McMakler TeamDein Kontakt
Online-ID: 25824QV6N17D
Referenznummer: 6b87e621d8
MediumRectangleTop
Wie zufrieden bist du mit dieser Seite (nicht mit der Immobilie selbst)?