3 Zimmer Eigener Außenzugang via Treppe Dusche/WC Kleine Teeküche Helle Räume
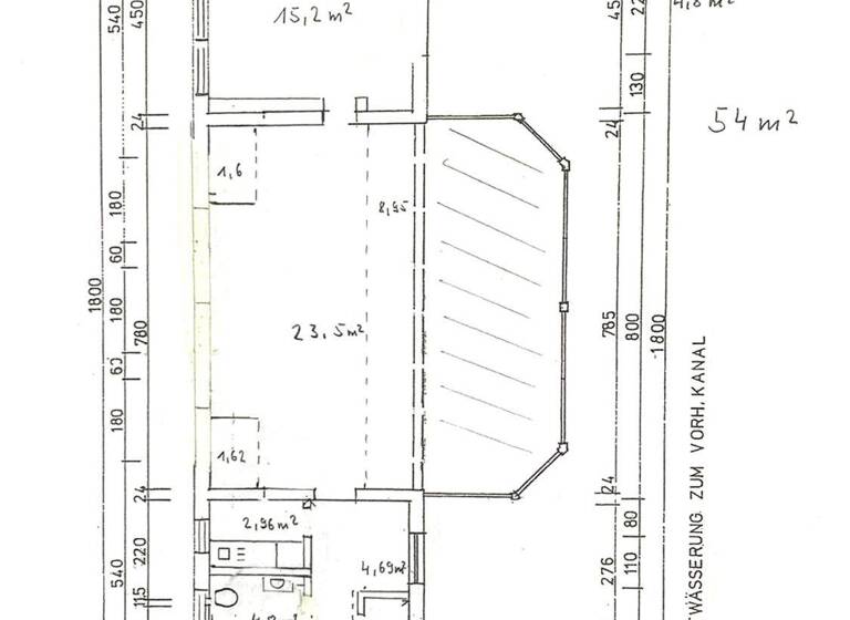
Grundrisse
Grundrisse
1 / 1
Realisiere Dein Projekt
Bausubstanz und Energie
Der Anbieter hat keine Informationen zu Energieverbrauch oder Zustand der Immobilie bereit gestellt.
Mietkosten
Monatliche Miete
8 €/m²
Provision für Mieter
3 Bruttogesamtmonatsmieten zzgl. MwSt.
Kaution
keine Angabe
Lage
Lechhausen, Augsburg (86165)
Der Anbieter hat die genaue Adresse nicht freigegeben
Gewerbe - Zentrum Augsburg - Ost (Lechhausen) Je ca. 2 Fahrminuten zur kleinen Ostumgehung (Meraner Str.) und zur großen Ostumgehung (AIC 25) Augsburgs Ca. 5 Fahrminuten zur BAB A8 (München - Stuttgart), Anschlussstelle Friedberg Zahlreiche Gewerbebetriebe in der Umgebung Bushaltestelle ca. 2 Gehminuten entfernt Sämtliche Geschäfte des täglichen Bedarfs sowie diverse Gastronomie in ca. 2 Fahrminuten erreichbar
Weitere Informationen
Sonstiges
Momentan liegt uns für dieses Objekt kein Energieausweis vor, dessen Kennwerte nach § 16a der Energieeinsparverordnung ab dem 01.05.2014 in der Anzeige anzugeben wären. Hiervon unberührt bleibt die Verpflichtung des Eigentümers der Immobilie, einen gültigen Energieausweis erstellen zu lassen und nach Maßgabe des § 16 Abs. 2 EnEV 2014 vorzulegen. Der Eigentümer wurde durch uns darauf hingewiesen.
Stichworte
Gesamtfläche: 54,00 m²