Ehemaliges Gasthaus mit Entwicklungspotenzial in Lübbenau/Spreewald
Dieses ehemalige Gasthaus mit großzügigen Räumlichkeiten bietet Ihnen vielfältige Möglichkeiten, es ganz nach Ihren eigenen Vorstellungen und Bedürfnissen zu gestalten - sei es für private oder gewerbliche Nutzung. Das Gebäude erfordert eine vollständige Kernsanierung, bietet jedoch zahlreiche Potenziale für unterschiedliche Nutzungskonzepte, sowohl im Bereich Gastgewerbe als auch für die Eigennutzung. Der Keller ist vollständig ausgebaut und bietet zusätzlichen Stauraum oder weiteres Entwicklungspotential.
Ob als Apartmenthaus, Gästehaus oder für andere Projekte - die Räumlichkeiten lassen sich flexibel umgestalten. Eine detaillierte Planung für die Umnutzung des Gebäudes in ein Apartmenthaus mit neun Wohneinheiten liegt bereits vor. Zudem steht das Gebäude nicht unter Denkmalschutz, was die geplante Sanierung und Umgestaltung vereinfacht.
Für eine mögliche Erweiterung oder zusätzliche Nutzungsmöglichkeiten kann ein angrenzendes Grundstück zu einem Aufpreis erworben werden. Nutzen Sie diese Gelegenheit, das Gebäude in eine vielseitige Immobilie nach Ihren Wünschen zu verwandeln und profitieren Sie von der zentralen Lage im malerischen Spreewald.
Merkmale
Bezug: sofort
600 m² Grundstück
Keller
Garten
- Gesamtfläche umfasst 600 qm auf vier Geschossen - das Grundstück umfasst ca. 600qm - voll unterkellertes Massivhaus - aktuell Gas-Heizung/ Ofenheizung - fußläufige Entfernung zum Bahnhof Lübbenau - Ortsteil Krimnitz liegt im Landkreis Dahme-Spree - Lübbenau liegt im UNESCO Biosphärenreservat Spreewald - viele Einkaufsmöglichkeiten in unmittelbarer Umgebung
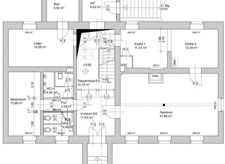
Grundrisse
Grundrisse
1 / 4
Realisiere Dein Projekt
Bausubstanz und Energie
Energieausweis
Ein Energieausweis ist für diesen Gebäudetyp nicht notwendig.
Baujahr1912
Zustand der Immobilierenovierungsbedürftig / sanierungsbedürftig
EnergieträgerGas
Preisdetails
Kaufpreis
190000 €190.000 €
422,22 €/m²
Provision für Käufer
Maklercourtage: 3,00 % zzgl. MwSt. vom beurkundeten Kaufpreis
Geschätzte Gesamtkosten
211.850 €1
Kaufpreis
190.000 €
Kaufnebenkosten
21.850 €
2
Notarkosten (1,5%)
2.850 €
Grunderwerbsteuer (6,5%)
12.350 €
Provision für Käufer (3%)
5.700 €
Grundbucheintrag (0,5%)
950 €
1Der angezeigte Wert ist eine automatisch berechnete Schätzung von immowelt.
2Bei den Angaben handelt es sich um ortsübliche Werte. Individuelle Kosten können abweichen.
Lage
Krimnitz, Lübbenau / Spreewald (03222)
Der Anbieter hat die genaue Adresse nicht freigegeben
Dieses beeindruckende Wohn- und Geschäftshaus befindet sich im charmanten Krimnitz, einer Ortschaft, die sowohl für ihr ruhiges Ambiente als auch für ihre optimalen Anbindungen geschätzt wird. Die Lage bietet eine hervorragende Balance zwischen urbaner Erreichbarkeit und ländlicher Gelassenheit. Mit der Autobahn in nur knapp 1,84 Kilometern Entfernung ist eine schnelle Verbindung zu umliegenden Städten garantiert, was ideal für Berufspendler oder Geschäftsreisende ist.
Familienfreundlichkeit wird in Krimnitz großgeschrieben, da ein Kindergarten lediglich 1,31 Kilometer entfernt zu finden ist. Die nahegelegene Grundschule in 1,51 Kilometern Entfernung und das Gymnasium, das sich nur 2,59 Kilometer vom Objekt entfernt befindet, unterstreichen die hervorragende Bildungsinfrastruktur der Umgebung.
Die Lage des Hauses vereint praktischen Komfort mit einer einladenden, wohnlichen Umgebung und ist daher der ideale Standort für all jene, die Wert auf eine ausgezeichnete Anbindung und eine hohe Lebensqualität legen.
Weitere Informationen
Stichworte
Nutzfläche: 75,00 m², Anzahl der Badezimmer: 4, 3 Etagen, Distanz zum Kindergarten: 1.31, Distanz zur Grundschule: 1.51, Distanz zur nächsten Einkaufsmöglichkeit: 1.32, Distanz zum Gymnasium: 2.59, Distanz zum Hauptbahnhof: 2.96, Distanz zur Autobahn: 1.84, Distanz zum Bus: 0.02, Distanz zur nächsten Gaststätte: 1.43