Version: 8.24.0Navigation ĂĽberspringen
520 €
55,8 m² Bürofläche
Immowelt logo

Büro zur Miete • provisionsfrei
520 €
55,8 m² Bürofläche

Bürofläche Am Flughafen zu vermieten

Der Büroraum befindet sich in einer einzigartigen und attraktiven Lage direkt am Flugplatz Freiburg. Die zentrale Lage bietet eine interessante Umgebung und eine gute Verkehrsanbindung. Perfekt, um Ihre Geschäftstätigkeit an einem besonderen Standort zu entfalten.

Merkmale

  • AuĂźen-Stellplatz
  • Bodenbelag: Fliesen, Teppich
  • Fenster: Holz

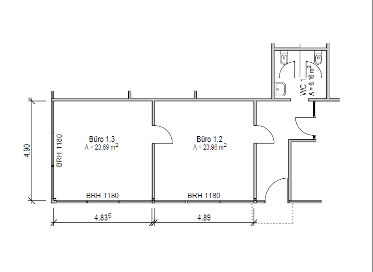
Grundrisse

Grundrisse
1 / 1

Realisiere Dein Projekt

Bausubstanz und Energie

Energieausweis

Endenergieverbrauch (Wärme)

Endenergieverbrauch (Strom)

  • Baujahr1980
  • HeizungsartZentralheizung
  • EnergieträgerĂ–l
Immowelt logo

Mietkosten

Warmmiete
670 €
Nettomiete
520 €
Nebenkosten
150 €
Provision fĂĽr Mieter
provisionsfrei
Kaution
3 Monatkaltmieten

Lage

address-icon
Brühl, Freiburg im Breisgau (79110)
Der Anbieter hat die genaue Adresse nicht freigegeben
Dieser kompakte Büroraum bietet ein repräsentatives Ambiente in einer außergewöhnlichen Lage. Dank der Nähe zum Flugplatz und den vorhandenen Einrichtungen eignet sich die Fläche besonders für Unternehmen, die Wert auf eine zentrale und inspirierende Arbeitsumgebung legen.

Weitere Informationen

KRITERIEN zur Anmietung Kriterien zur Anmietung
Diese Mietfläche ist besonders geeignet für Gewerbe mit eindeutigem Bezug zur Luftfahrt, wie z.B. Flugschulen, Fluglehrer, Luftfahrt-Gutachter oder ähnliche Tätigkeiten. Unsere Kriterien erfordern, dass die Nutzung der Fläche direkt im Zusammenhang mit der Umgebung des Flugplatzes steht.
Nutzen Sie diese einzigartige Standortmöglichkeit, die Ihre Nähe zur Luftfahrt optimal unterstützt.
Besichtigungstermine Interessiert? Kontaktieren Sie uns gerne fĂĽr weitere Details oder zur Vereinbarung eines Besichtigungstermins.
Hinterlassen Sie Ihre Anschrift sowie Telefonnummer und wir werden uns umgehend mit Ihnen in Verbindung setzen.

Nach Absprache senden Sie uns die ausgefĂĽllte und unterschriebene Mieter-Selbstauskunft per E-Mail zu.

Hinweise zum Datenschutz unter https://www.ifgruppe.com/impressum-datenschutz.
Mit Ihrer Kontaktanfrage bestätigen Sie uns, dass Sie die Datenschutzhinweise zustimmend zur Kenntnis genommen haben. Stichworte Sonstiges: frei werdend

Weitere Services

Lust auf eine Besichtigung?
Eine Frage zur Immobilie?
Nachricht hinzufĂĽgen
Mit der Nutzung der oben angegebenen Telefonnummer oder durch Klicken auf „Kontaktieren“ akzeptierst Du die Allgemeinen Nutzungsbedingungen, denen Du jederzeit widersprechen kannst. Weitere Informationen zum Datenschutz

Ăśber den Anbieter

IF Group AG
IF Group AGMaklerbĂĽro
Oberes Muldental 2, 09599 Freiberg
Team Vermietung
Team VermietungDein Kontakt
Online-ID: 2kvvs5u
IF Group AG
title
IF Group AG
Nachricht hinzufĂĽgen
Mit der Nutzung der oben angegebenen Telefonnummer oder durch Klicken auf „Kontaktieren“ akzeptierst Du die Allgemeinen Nutzungsbedingungen, denen Du jederzeit widersprechen kannst. Weitere Informationen zum Datenschutz
Wie zufrieden bist du mit dieser Seite (nicht mit der Immobilie selbst)?