

Bürofläche zur Miete9,50 €/m²9.586 m² Bürofläche • teilbar ab 209 m²
9,50 €
/m²
9.586 m² Bürofläche • teilbar ab 209 m²
Büroflächen im Businesspark - verschiedene Teilbarkeiten möglich
Merkmale
- Bezug: Sofort
- 10 Stellplätze: 10 Außen-Stellplätze
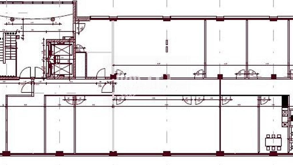
Grundrisse
Verschaffe dir einen genauen Überblick über die Raumaufteilung.

Realisiere Dein Projekt
Bausubstanz und Energie
Möchtest du Details zum Energieverbrauch?

Mietkosten
Monatliche Miete
9,50 €/m²
Zusätzliche Kosten
Miete pro Stellplatz
35 €
Provision für Mieter
provisionspflichtig für den Mieter/Käufer
Kaution
keine Angabe
Weitere Preisinformationen
10 Stellplätze, Miete je: 35,00 EUR
Lage

Gebersdorf, Nürnberg (90449)
Der Anbieter hat die genaue Adresse nicht freigegeben
Weitere Informationen
Weitere Services
Lust auf eine Besichtigung?
Eine Frage zur Immobilie?
Über den Anbieter
Sophie-Germain-Straße 12, 90443 Nürnberg
Partnerschaft

Frau Julia SchreiterDein Kontakt
Online-ID: 23ETRHZ82VNN
Referenznummer: 4@of58265@14@0


Jones Lang LaSalle SE - Office Leasing Nürnberg
Wie zufrieden bist du mit dieser Seite (nicht mit der Immobilie selbst)?

