Auf diesem Grundstück in Erlangen errichten wir für Sie dieses Einfamilienhaus.
Der Kaufpreis beinhaltet das Grundstücks und das schlüsselfertige Haus mit Garage.
Zum Angebot steht diese Stadtvilla, ein modernes Einfamilienhaus mit klassischer Stadtvilla-Architektur, zwei Vollgeschossen und klarer, repräsentativer Linienführung, geplant auf einem großen Grundstück.
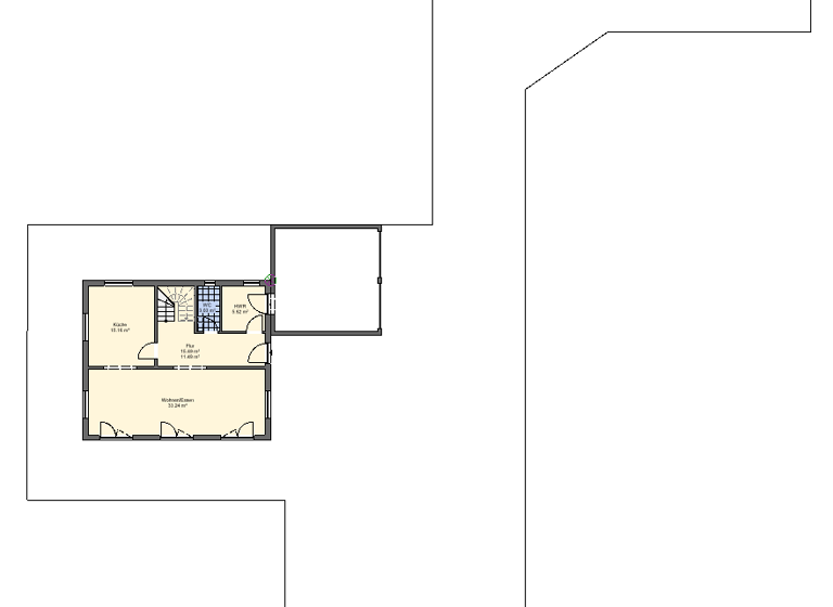
Die Wohnfläche beträgt ca. 137m² und verteilt sich auf Erd- und Obergeschoss. Das Erdgeschoss überzeugt mit einem großzügigen Wohn-/Essbereich, offener Küche, Gäste-WC sowie dem Hausanschlussraum. Im Obergeschoss befinden sich das Schlafzimmer, zwei weitere flexibel nutzbare Zimmer (Kind/Gast/Arbeiten), ein modernes Badezimmer sowie ein Abstellraum.
Die Stadtvilla wird in massiver Bauweise errichtet und erfüllt die aktuellen Anforderungen des Gebäudeenergiegesetzes (GEG). Die Beheizung erfolgt über eine Luft-Wasser-Wärmepumpe mit Fußbodenheizung, was eine energieeffiziente, zukunftssichere Nutzung gewährleistet.
Der großzügige Garten lädt zum verweilen sowie zu Grillfesten mit Freunden und Verwandten ein.
-------------PROJEKTIERT-------------- Ihr neues Zuhause ist aktuell projektiert, Sie können somit alles noch an Ihre Wünsche anpassen und abändern. Das heißt auch, dass Sie es noch nicht gebaut besichtigen können. Wir beraten Sie in unserem Musterhaus gerne zu Ihrem passenden Grundriss. Mit uns können Sie all Ihre Ideen in und an Ihrem Haus umsetzen, um Ihr zukünftiges Eigenheim an Ihre Familienbedürfnisse anzupassen.
Selbstverständlich bieten wir Ihnen alle Häuser auch mit Unterkellerung an. Gerne informieren wir Sie hierzu unverbindlich!
Merkmale
2 Geschosse
615 m² Grundstück
offene Küche
Badezimmer: Badewanne, Bad mit Dusche, Bad mit Fenster
Gäste-WC
Bodenbelag: Fliesen
kontrollierte Be- und Entlüftungsanlage
Fenster: Kunststoff
Grundrisse
Grundrisse
1 / 3
Bausubstanz und Energie
Möchtest du Details zum Energieverbrauch?
BaujahrNeubau
Zustand der ImmobilieNeubau, Massivhaus, Projektiert
HaustypKfW 55
HeizungsartFußbodenheizung
EnergieträgerElektro, Luft-/Wasser-Wärmepumpe
Preisdetails
Kaufpreis
929500 €929.500 €
6.784,67 €/m²
Provision für Käufer
provisionsfrei
Geschätzte Gesamtkosten
980.624 €1
Kaufpreis
929.500 €
Kaufnebenkosten
51.124 €
2
Notarkosten (1,5%)
13.943 €
Grunderwerbsteuer (3,5%)
32.533 €
Grundbucheintrag (0,5%)
4.648 €
1Der angezeigte Wert ist eine automatisch berechnete Schätzung von immowelt.
2Bei den Angaben handelt es sich um ortsübliche Werte. Individuelle Kosten können abweichen.
Lage
Eltersdorf, Erlangen (91058)
Der Anbieter hat die genaue Adresse nicht freigegeben
Hier wohnen Sie ruhig und dennoch wunderbar angebunden. Der Bus ist in wenigen Minuten zu Fuß erreichbar, genauso wie der Bahnhof, ideal für den Weg zur Arbeit oder einen Ausflug in die Stadt. Die Autobahn ist nur wenige Fahrminuten entfernt und bringt Sie schnell nach Nürnberg oder Bamberg. Einkaufsmöglichkeiten, Bäcker und Apotheken liegen gleich um die Ecke, perfekt für den Alltag. Ihre Kinder sind in wenigen Gehminuten in Kindergarten oder Schule, und auch Ärzte sind bequem erreichbar. Eine Lage, die alles verbindet: Ruhe, Anbindung und echtes Familiengefühl.
Weitere Informationen
Kontakt
Haben wir Ihr Interesse geweckt? Rufen Sie uns unter 09101 - 99 65 0 an oder füllen Sie das Kontaktformular aus. Wir freuen uns auf Sie!
Kommen Sie gerne vorbei!
Im Gewerbepark 20 - 91093 Heßdorf
Mo - Do 8:00 - 17:00 Fr 9:00 - 13:00 Sa - So 11:00 - 17:00
Sonstiges
Alle Angaben erfolgen nach bestem Wissen, Irrtümer vorbehalten. Eine Haftung für die Richtigkeit oder Vollständigkeit der Angaben übernehmen wir daher nicht.
Alle Abbildungen und Grundrisse sind aus der Sicht des Illustrators und daher nicht verbindlich. Änderungen vorbehalten.
Stichworte
Sonstiges/Wohnen: Dachboden