




1 / 17



1 / 17

Einfamilienhaus zum Kauf - Erstbezug • provisionsfrei514900 €514.900 €2.378 €/m²5 Zimmer • 216,5 m² • 1 m² Grundstück
514900 €514.900 €
2.378 €/m²
5 Zimmer • 216,5 m² • 1 m² Grundstück
EXCLUSIV ARCHITEKTENHAUS- KLARHEIT MIT GEFÜHL Architektur, die Sie ausdrückt!
POINT 217 S EIN ARCHITEKTONISCHES STATEMENT
Wie ein Bühnenbild empfängt Sie dieses Haus mit erhöhter Eingangspartie und einer Tür, die Raum für Erwartungen schafft. Die Giebelfenster - ein Blickfang, ein Versprechen.
Fenster, die den Boden berühren, lassen Licht fließen und Räume atmen. Die Küche - offen, einladend - verschmilzt mit dem Wohnbereich, während Schiebetüren den Weg zur Terrasse öffnen.
Ein Studio im Erdgeschoss - Rückzugsort, Atelier, Gästezimmer. Räume, die den Alltag erleichtern, ohne ihn zu dominieren.
Und oben? Ein Schlafzimmer wie ein Refugium. Mit begehbarer Ankleide, exklusivem Bad, Doppelwaschbecken - und der Option auf eine freistehende Badewanne. Ein Ort, der inspiriert.
Wie ein Bühnenbild empfängt Sie dieses Haus mit erhöhter Eingangspartie und einer Tür, die Raum für Erwartungen schafft. Die Giebelfenster - ein Blickfang, ein Versprechen.
Fenster, die den Boden berühren, lassen Licht fließen und Räume atmen. Die Küche - offen, einladend - verschmilzt mit dem Wohnbereich, während Schiebetüren den Weg zur Terrasse öffnen.
Ein Studio im Erdgeschoss - Rückzugsort, Atelier, Gästezimmer. Räume, die den Alltag erleichtern, ohne ihn zu dominieren.
Und oben? Ein Schlafzimmer wie ein Refugium. Mit begehbarer Ankleide, exklusivem Bad, Doppelwaschbecken - und der Option auf eine freistehende Badewanne. Ein Ort, der inspiriert.
Merkmale
- Bezug: nach Absprache
- 1 m² Grundstück
- Bodenbelag: Fliesen, Parkett, Laminat, Kunststoff
Gäste-WC, Parkett, Laminat, Fliesen, Sonstiges (s. Text)
Bemerkungen:
?Technik
Technik, die das Wohnen leichter macht Das Technikpaket Today 3BL kombiniert moderne Wärmepumpentechnik mit einem großzügigen Warmwasserspeicher und einer intelligenten Lüftungsanlage. Das Ergebnis: ein Zuhause, das sich automatisch um ein angenehmes Raumklima kümmert - warm im Winter, frisch im Sommer, effizient das ganze Jahr. Die Fußbodenheizung sorgt für behagliche Wärme in jedem Raum, während die zentrale Lüftung mit Wärmerückgewinnung Energie spart und gleichzeitig für konstant frische Luft sorgt. Ein Technikpaket, das Komfort, Effizienz und Zukunftssicherheit perfekt verbindet.
Elektrische Rollläden:
Die Rollläden von DANWOOD sind die perfekte Ergänzung zur energieeffizienten DANWOOD Bauweise. Sie schützen im Sommer vor Hitze, halten im Winter die Wärme im Haus und sorgen jederzeit für Privatsphäre und Sicherheit. Mit elektrischer Bedienung oder smarter Steuerung lassen sie sich bequem und intuitiv nutzen - ein Komfortgewinn, den man jeden Tag spürt. Kurz gesagt Bei DANWOOD sind Rollläden optional, aber technisch perfekt integrierbar - elektrisch, langlebig und ideal für moderne Architektur.
Sanitärausstattung:
Dusche - sicher, bequem und ideal für Kinder wie Erwachsene . Wandhängendes WC - leicht zu reinigen, hygienisch, familienfreundlich . Waschtisch . Hochwertige Armaturen - langlebig, leicht zu bedienen, temperaturstabil . Optional je nach Modell: . Badewanne - perfekt für Kinder, Entspannung oder gemeinsame Abendrituale . Doppelwaschtisch - kein Gedränge am Morgen . Unterputz Armaturen - sicher, elegant, leicht zu reinigen Alles ist darauf ausgelegt, den Alltag zu erleichtern und gleichzeitig lange schön zu bleiben.
Malerarbeiten:
Wände & Decken - fertig für den Einzug. Alle Innenwände und Decken werden im Standard schlüsselfertig ausgeführt. Das bedeutet: . Glatte, gespachtelte und geschliffene Oberflächen . Weiße Endbeschichtung in hochwertiger Dispersionsfarbe . Saubere, gleichmäßige Optik in allen Wohnräumen. DANWOOD liefert bereits die fertige Oberfläche . Keine sichtbaren Fugen oder Übergänge dank industrieller Präzision Damit ist das Haus sofort bewohnbar, ohne dass zusätzliche Malerarbeiten notwendig sind.
Vinyl/Laminat/Fliesen:
Wohn und Schlafräume - warm, robust, einladend!
Alle Wohn und Schlafräume werden mit hochwertigen, pflegeleichten Bodenbelägen ausgestattet, die Wärme, Komfort und Alltagstauglichkeit verbinden. Standardausführung (modellabhängig): . Hochwertiger Design Vinylboden in Holzoptik . Strapazierfähig, leise, fußwarm . Ideal für Familien, Haustiere und tägliche Nutzung . Harmonische Farbwelten (Eiche hell, Eiche natur, Eiche grau - je nach Auswahl im Design Center Pinkafeld
Optional:
. Laminat in Premium-Qualität
. Echtholzparkett (Aufpreis)
. Alternative Designlinien (Betonoptik, dunkle Holzoptik, warme Naturtöne)
Bemerkungen:
?Technik
Technik, die das Wohnen leichter macht Das Technikpaket Today 3BL kombiniert moderne Wärmepumpentechnik mit einem großzügigen Warmwasserspeicher und einer intelligenten Lüftungsanlage. Das Ergebnis: ein Zuhause, das sich automatisch um ein angenehmes Raumklima kümmert - warm im Winter, frisch im Sommer, effizient das ganze Jahr. Die Fußbodenheizung sorgt für behagliche Wärme in jedem Raum, während die zentrale Lüftung mit Wärmerückgewinnung Energie spart und gleichzeitig für konstant frische Luft sorgt. Ein Technikpaket, das Komfort, Effizienz und Zukunftssicherheit perfekt verbindet.
Elektrische Rollläden:
Die Rollläden von DANWOOD sind die perfekte Ergänzung zur energieeffizienten DANWOOD Bauweise. Sie schützen im Sommer vor Hitze, halten im Winter die Wärme im Haus und sorgen jederzeit für Privatsphäre und Sicherheit. Mit elektrischer Bedienung oder smarter Steuerung lassen sie sich bequem und intuitiv nutzen - ein Komfortgewinn, den man jeden Tag spürt. Kurz gesagt Bei DANWOOD sind Rollläden optional, aber technisch perfekt integrierbar - elektrisch, langlebig und ideal für moderne Architektur.
Sanitärausstattung:
Dusche - sicher, bequem und ideal für Kinder wie Erwachsene . Wandhängendes WC - leicht zu reinigen, hygienisch, familienfreundlich . Waschtisch . Hochwertige Armaturen - langlebig, leicht zu bedienen, temperaturstabil . Optional je nach Modell: . Badewanne - perfekt für Kinder, Entspannung oder gemeinsame Abendrituale . Doppelwaschtisch - kein Gedränge am Morgen . Unterputz Armaturen - sicher, elegant, leicht zu reinigen Alles ist darauf ausgelegt, den Alltag zu erleichtern und gleichzeitig lange schön zu bleiben.
Malerarbeiten:
Wände & Decken - fertig für den Einzug. Alle Innenwände und Decken werden im Standard schlüsselfertig ausgeführt. Das bedeutet: . Glatte, gespachtelte und geschliffene Oberflächen . Weiße Endbeschichtung in hochwertiger Dispersionsfarbe . Saubere, gleichmäßige Optik in allen Wohnräumen. DANWOOD liefert bereits die fertige Oberfläche . Keine sichtbaren Fugen oder Übergänge dank industrieller Präzision Damit ist das Haus sofort bewohnbar, ohne dass zusätzliche Malerarbeiten notwendig sind.
Vinyl/Laminat/Fliesen:
Wohn und Schlafräume - warm, robust, einladend!
Alle Wohn und Schlafräume werden mit hochwertigen, pflegeleichten Bodenbelägen ausgestattet, die Wärme, Komfort und Alltagstauglichkeit verbinden. Standardausführung (modellabhängig): . Hochwertiger Design Vinylboden in Holzoptik . Strapazierfähig, leise, fußwarm . Ideal für Familien, Haustiere und tägliche Nutzung . Harmonische Farbwelten (Eiche hell, Eiche natur, Eiche grau - je nach Auswahl im Design Center Pinkafeld
Optional:
. Laminat in Premium-Qualität
. Echtholzparkett (Aufpreis)
. Alternative Designlinien (Betonoptik, dunkle Holzoptik, warme Naturtöne)
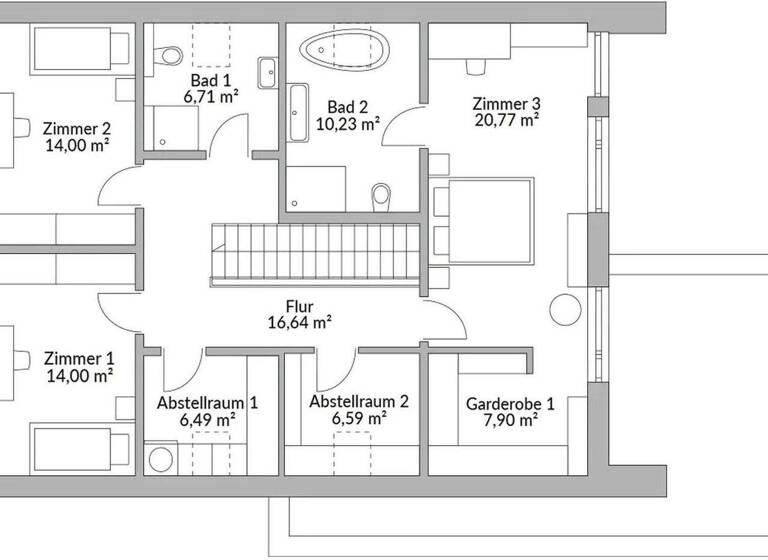
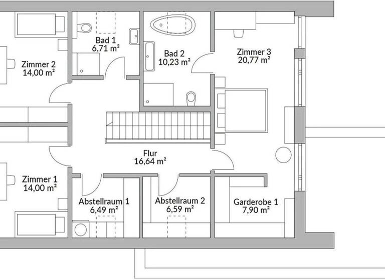
Grundrisse
Grundrisse
1 / 2
Realisiere Dein Projekt
Bausubstanz und Energie
Möchtest du Details zum Energieverbrauch?

- Baujahr2026
- Zustand der ImmobilieErstbezug
- HeizungsartFußbodenheizung
- EnergieträgerLuft-/Wasser-Wärmepumpe
Preisdetails
Kaufpreis
514900 €514.900 €
2.377,96 €/m²
Provision für Käufer
provisionsfrei; keine Provision, courtagefrei
Lage

GRUNDSTÜCK 800M GRAZ EXKLUSIV NUR FÜR DANWOOD-HAUS, Hart bei Graz (8075)
Auf Ihrem Grundstück oder in...
Güssing: Ca. 2.600m² Lage vollkommen eben, . Grundstücksgrößen und Grundstückslagen frei wählbar. Größen von 500m² - 1500m²
Hier sind die Baugründe der Extraklasse! In bester Lage und mit einem atemberaubenden Blick auf die wunderschöne Burg Güssing!
Güssing bietet ein zukunftssicheres, leistbares und energieunabhängiges Leben im Grünen, was die Investition in eine Immobilie dort zu einer strategischen Wertanlage macht.
Warum Güssing
Energie-Pionier und Nachhaltigkeit:
Die Stadt ist energieautark und international anerkannt.
Hohe Abdeckung (über 85%) mit regionaler Biomasse-Fernwärme führt zu stabilen, günstigen Heizkosten.
Leistbare Immobilienpreise:
Die Preise sind noch deutlich günstiger als im österreichischen Durchschnitt, was den Traum vom Eigenheim mit großzügigen Grundstücken ermöglicht.
Starke Infrastruktur und Lebensqualität:
Als Bezirksvorort garantiert Güssing kurze Wege und beste Versorgung.
Geplante Großinvestitionen:
Neuer Bildungscampus und modernes Ärztezentrum (ab 2026).
Kulturelles Zentrum (Burg Güssing) und Nähe zu Thermen.
Die vollständige Eröffnung der S7 bringt erhebliche Vorteile für Güssing und seine Bewohner:
Schnellere Anbindung an Ballungszentren: Die Schnellstraße verkürzt die Fahrzeit zur A2 Süd Autobahn massiv, wodurch die Reisezeiten nach Graz und Wien deutlich reduziert werden.
Entlastung der Region: Sie leitet den Durchzugsverkehr, der zuvor stark belastete Ortschaften wie Fürstenfeld und Rudersdorf passierte, auf die neue Trasse um.
Wirtschaftliche Impulse: Die neue Anbindung, unter anderem über die Anschlussstelle bei Rudersdorf/Dobersdorf und die Nähe zur Anbindung Königsdorf, stärkt Güssing als Bezirksvorort und Wirtschaftsstandort durch verbesserte Erreichbarkeit und die Förderung neuer Gewerbeparks.
Wertstabilität und Entwicklungspotenzial:
Gezielte kommunale Investitionen in Infrastruktur, Stadtkernbelebung und das Technologiezentrum sichern die langfristige Wertstabilität der Immobilien.
Die kommunale Strategie zielt darauf ab, demografische Herausforderungen zu meistern und Güssing als attraktiven Wohn- und Wirtschaftsstandort zu etablieren.
Zielgruppe
Familien, die Zukunft, Sicherheit und Natur suchen, sowie alle, die Wert auf niedrige Energiekosten und ökologische Verantwortung legen.
Weitere Grundstücke in:
Grundstück, 8323 Kohldorf: Baugrundstück mit viel Sonne im oststeirischen Hügelland 15 km von Graz!
Größe 758 m² Kaufpreis € 66.000, --
Grundstück, 8323 Kohldorf: Sonniges Baugrundstück in Kohldorf 15 km östlich von Graz!
Größe 787 m² Kaufpreis € 69.000, --
Grundstück, 8311 Markt Hartmannsdorf: Voll aufgeschlossenes, sonniges Baugrundstück in Markt Hartmannsdorf
Größe 920 m² Kaufpreis € 53.000, --
Grundstück, 9335 Lölling Graben: Baugrundstück mit traumhaftem Fernblick in der malerischen Kärntner Bergwelt
Größe 1001 m² Kaufpreis € 50.000, --
Grundstück, 8075 Hart bei Graz: Sonniges Grundstück vor den Toren von Graz
Größe 1980 m² Kaufpreis € 475.000, --
Grundstück in Stainz zu kaufen Sonniges Grundstück am Ortsrand von Stainz
Größe 825 m² Kaufpreis € 149.000,
Es besteht keine wirtschaftliche Verbindung zwischen dem Eigentümer des Grundstücks und dem Errichter des Hauses.
Güssing: Ca. 2.600m² Lage vollkommen eben, . Grundstücksgrößen und Grundstückslagen frei wählbar. Größen von 500m² - 1500m²
Hier sind die Baugründe der Extraklasse! In bester Lage und mit einem atemberaubenden Blick auf die wunderschöne Burg Güssing!
Güssing bietet ein zukunftssicheres, leistbares und energieunabhängiges Leben im Grünen, was die Investition in eine Immobilie dort zu einer strategischen Wertanlage macht.
Warum Güssing
Energie-Pionier und Nachhaltigkeit:
Die Stadt ist energieautark und international anerkannt.
Hohe Abdeckung (über 85%) mit regionaler Biomasse-Fernwärme führt zu stabilen, günstigen Heizkosten.
Leistbare Immobilienpreise:
Die Preise sind noch deutlich günstiger als im österreichischen Durchschnitt, was den Traum vom Eigenheim mit großzügigen Grundstücken ermöglicht.
Starke Infrastruktur und Lebensqualität:
Als Bezirksvorort garantiert Güssing kurze Wege und beste Versorgung.
Geplante Großinvestitionen:
Neuer Bildungscampus und modernes Ärztezentrum (ab 2026).
Kulturelles Zentrum (Burg Güssing) und Nähe zu Thermen.
Die vollständige Eröffnung der S7 bringt erhebliche Vorteile für Güssing und seine Bewohner:
Schnellere Anbindung an Ballungszentren: Die Schnellstraße verkürzt die Fahrzeit zur A2 Süd Autobahn massiv, wodurch die Reisezeiten nach Graz und Wien deutlich reduziert werden.
Entlastung der Region: Sie leitet den Durchzugsverkehr, der zuvor stark belastete Ortschaften wie Fürstenfeld und Rudersdorf passierte, auf die neue Trasse um.
Wirtschaftliche Impulse: Die neue Anbindung, unter anderem über die Anschlussstelle bei Rudersdorf/Dobersdorf und die Nähe zur Anbindung Königsdorf, stärkt Güssing als Bezirksvorort und Wirtschaftsstandort durch verbesserte Erreichbarkeit und die Förderung neuer Gewerbeparks.
Wertstabilität und Entwicklungspotenzial:
Gezielte kommunale Investitionen in Infrastruktur, Stadtkernbelebung und das Technologiezentrum sichern die langfristige Wertstabilität der Immobilien.
Die kommunale Strategie zielt darauf ab, demografische Herausforderungen zu meistern und Güssing als attraktiven Wohn- und Wirtschaftsstandort zu etablieren.
Zielgruppe
Familien, die Zukunft, Sicherheit und Natur suchen, sowie alle, die Wert auf niedrige Energiekosten und ökologische Verantwortung legen.
Weitere Grundstücke in:
Grundstück, 8323 Kohldorf: Baugrundstück mit viel Sonne im oststeirischen Hügelland 15 km von Graz!
Größe 758 m² Kaufpreis € 66.000, --
Grundstück, 8323 Kohldorf: Sonniges Baugrundstück in Kohldorf 15 km östlich von Graz!
Größe 787 m² Kaufpreis € 69.000, --
Grundstück, 8311 Markt Hartmannsdorf: Voll aufgeschlossenes, sonniges Baugrundstück in Markt Hartmannsdorf
Größe 920 m² Kaufpreis € 53.000, --
Grundstück, 9335 Lölling Graben: Baugrundstück mit traumhaftem Fernblick in der malerischen Kärntner Bergwelt
Größe 1001 m² Kaufpreis € 50.000, --
Grundstück, 8075 Hart bei Graz: Sonniges Grundstück vor den Toren von Graz
Größe 1980 m² Kaufpreis € 475.000, --
Grundstück in Stainz zu kaufen Sonniges Grundstück am Ortsrand von Stainz
Größe 825 m² Kaufpreis € 149.000,
Es besteht keine wirtschaftliche Verbindung zwischen dem Eigentümer des Grundstücks und dem Errichter des Hauses.
Weitere Informationen
Sonstiges
Heizungsart: Fußbodenheizung
Energieträger: Luft-/Wasserwärme
Energieausweis nicht vorhanden
Hinweis: Alle Hauspreise gelten ab Oberkante Bodenplatte. Abbildungen können optionale Sonderausstattungen zeigen.
Makleranfragen nicht erwünscht.
ohne-makler (OM) ist weder Anbieter noch Vermittler der Immobilie. OM betreibt eine Plattform für Immobilieneigentümer, die unter anderem die gleichzeitige Veröffentlichung einzelner Inserate auf mehreren Immobilienportalen ermöglicht. Die Inhalte dieser Inserate werden ausschließlich von Dritten verantwortet. Für die Richtigkeit, Vollständigkeit oder Rechtmäßigkeit der Angaben übernimmt OM keine Haftung. Hinweise auf mögliche Rechtsverstöße können jederzeit gemeldet werden und werden nach Prüfung umgehend bearbeitet. Stichworte Anzahl der Schlafzimmer: 4, Anzahl der Badezimmer: 2, Anzahl der separaten WCs: 1, Bundesland: Steiermark
Energieträger: Luft-/Wasserwärme
Energieausweis nicht vorhanden
Hinweis: Alle Hauspreise gelten ab Oberkante Bodenplatte. Abbildungen können optionale Sonderausstattungen zeigen.
Makleranfragen nicht erwünscht.
ohne-makler (OM) ist weder Anbieter noch Vermittler der Immobilie. OM betreibt eine Plattform für Immobilieneigentümer, die unter anderem die gleichzeitige Veröffentlichung einzelner Inserate auf mehreren Immobilienportalen ermöglicht. Die Inhalte dieser Inserate werden ausschließlich von Dritten verantwortet. Für die Richtigkeit, Vollständigkeit oder Rechtmäßigkeit der Angaben übernimmt OM keine Haftung. Hinweise auf mögliche Rechtsverstöße können jederzeit gemeldet werden und werden nach Prüfung umgehend bearbeitet. Stichworte Anzahl der Schlafzimmer: 4, Anzahl der Badezimmer: 2, Anzahl der separaten WCs: 1, Bundesland: Steiermark
Weitere Services
Lust auf eine Besichtigung?
Eine Frage zur Immobilie?
Über den Anbieter
Humboldtstr. 25 A, 21509 Glinde
Partnerschaft
Angebot von DAN-WOOD Fertighaus Tatjana WyssDein Kontakt
Weitere Unterlagen
Online-ID: 256KQZLJGRYB
Referenznummer: 376065
Wie zufrieden bist du mit dieser Seite (nicht mit der Immobilie selbst)?


