Haus 160m2 zum Kauf - Crikvenica, Dramalj, Klanfari
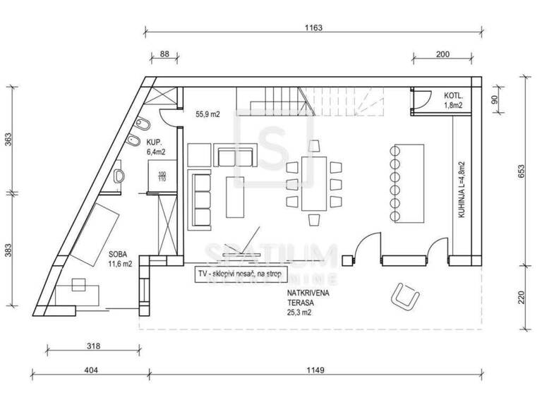
In Dramalj bieten wir ein antikes Anwesen mit einem Projekt für den kompletten Umbau zu einem modernen Luxushaus mit Swimmingpool an. Alle Unterlagen sind eingereicht, die Gebühren bezahlt und die Baugenehmigung ist beantragt.
Das Projekt ist als Luxushaus mit Fokus auf Privatsphäre und komfortablem Wohnen konzipiert. Ein einzigartiges Anwesen mit großem Potenzial in sehr guter Lage und ruhiger Umgebung, unterhalb der Adria-Autobahn und nur ca. 500 Meter Luftlinie vom Meer entfernt. Eine Gelegenheit für Investoren und private Käufer.
Sonne, frische Luft und der Duft des Meeres sowie grüne Parks und Promenaden sind unwiderstehliche Gründe, die Riviera von Crikvenica zu besuchen. Crikvenica ist ein erfahrener und weiser Geschichtenerzähler, dessen reiche Geschichte die Fantasie beflügelt, Plätze und Straßen sich in Freilichtbühnen verwandeln, die Gastronomie die Verschmelzung von Tradition und Moderne zeugt, eine Kombination aus unwiderstehlichen Aromen des Mittelmeers und den unverzichtbaren Tropfen Wein aus dem Hinterland von Vinodol. Charmante kleine Touristenorte wie Jadranovo, Dramalj und Selce heißen Sie herzlich willkommen! Die Riviera von Crikvenica bietet zahlreiche Herausforderungen für Sportbegeisterte, Erholungssuchende und Anhänger eines gesunden Lebensstils. Wenn Sie von den Aktivitäten erschöpft sind, finden Sie Entspannung am Meer.
Für weitere Informationen kontaktieren Sie uns bitte vertrauensvoll.