Version: 8.25.1Navigation überspringen
16,39 €
Immowelt logo

Büro zur Miete
16,39 €
/m²

Erstbezug nach Sanierung: Großes, helles Ecklokal im 6.Bezirk

Highlights 

* Sehr gute Sichtbarkeit
* Effiziente Aufteilung
* Bodentiefe Fenster
* Ausgezeichnete Lage

Das Objekt

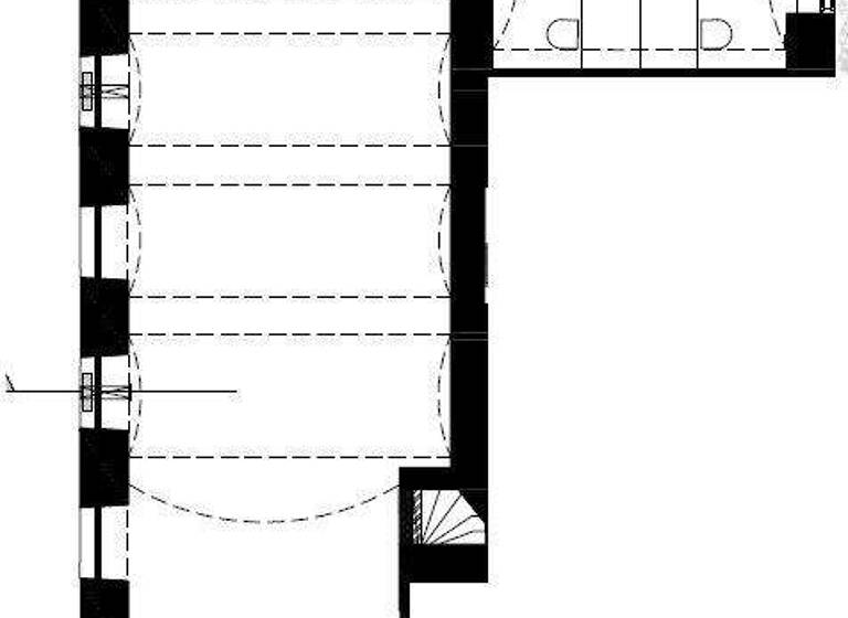
In der Königsegggasse im 6. Wiener Gemeindebezirk gelangt dieses schöne, frisch sanierte Ecklokal ab sofort zur Vermietung. Die ca. 134 m² große Fläche befindet sich im Erdgeschoss und ist barrierefrei zugänglich. Das Objekt verfügt über einen großen Verkaufsraum, einen Aufenthalts-/Lagerraum inkl. Anschlüsse für eine Teeküche, sowie ein Badezimmer, das mit einer Dusche, einem Waschbecken und einem WC ausgestattet ist. 

Die großen, bodentiefen Schaufenster sorgen für Helligkeit und gleichzeitig gute Sichtbarkeit. Das Objekt ist straßenseitig begehbar. Die hochwertige Ausstattung garantiert einen repräsentativen Unternehmensauftritt. Das Haus ist in einem makellosen Zustand. 

Verkehrsanbindung & Infrastruktur

Die Mariahilfer Straße befindet sich in unmittelbarer Umgebung, wodurch das Geschäftslokal über eine hervorragende Infrastruktur verfügt. Supermärkte, zahlreiche gute Restaurants und Cafés können bequem zu Fuß erreicht werden. In wenigen Gehminuten erreicht man die U-Bahn-Stationen Zieglergasse (U3) oder Pilgramgasse (U4). In unmittelbarer Nähe der Geschäftsfläche fahren die Buslinien 13A, 14A und 57A. Auch die Wiener Innenstadt ist schnell erreichbar.

Ausstattung

* Linoleumboden
* Dusche
* Anschlüsse für Teeküche
* Bodentiefe Fenster

Verkehrsanbindung

* U-Bahn: U3, U4
* Bus: 13A, 14A, 57A

* Alle Preise verstehen sich zuzüglich der gesetzlichen Umsatzsteuer.

 

Der Vermittler ist als Doppelmakler tätig.

Infrastruktur / Entfernungen

Gesundheit
Arzt <500m
Apotheke <500m
Klinik <500m
Krankenhaus <500m

Kinder & Schulen
Schule <500m
Kindergarten <500m
Universität <1.000m
Höhere Schule <1.000m

Nahversorgung
Supermarkt <500m
Bäckerei <500m
Einkaufszentrum <500m

Sonstige
Geldautomat <500m
Bank <500m
Post <500m
Polizei <500m

Verkehr
Bus <500m
U-Bahn <500m
Straßenbahn <1.000m
Bahnhof <500m
Autobahnanschluss <4.500m

Angaben Entfernung Luftlinie / Quelle: OpenStreetMap

Merkmale

  • Bezug: ab sofort
  • Erdgeschoss
  • Bad mit Dusche

Grundrisse

Grundrisse
1 / 1

Realisiere Dein Projekt

Bausubstanz und Energie

Heizwärmebedarf (HWB)

F

Gesamtenergieeffizienz (fGEE)

E
  • HeizungsartEtagenheizung
  • EnergieträgerGas
Immowelt logo

Mietkosten

Nettokaltmiete
16,39 €/m²
2.194,13 €
Betriebskosten
409,64 €
Provision für Mieter
3 Bruttomonatsmieten zzgl. 20% USt.
Kaution
3-6 Bruttomonatsmieten
Weitere Preisinformationen
Nettokaltmiete: 2.194,13 EUR

Lage

address-icon
Wien (1060)
Otto-Bauer-Gasse, Mariahilfer Straße

Weitere Informationen

Stichworte Nutzfläche: 133,87 m², Anzahl der separaten WCs: 1, Bundesland: Wien

Weitere Services

Lust auf eine Besichtigung?
Eine Frage zur Immobilie?
Mit einer persönlichen Nachricht hast du bessere Chancen auf eine Antwort.
Mit der Nutzung der oben angegebenen Telefonnummer oder durch Klicken auf „Kontaktieren“ akzeptierst Du die Allgemeinen Nutzungsbedingungen, denen Du jederzeit widersprechen kannst. Weitere Informationen zum Datenschutz

Über den Anbieter

Marc-Aurel-Straße 6/6, 1010 WIEN
partner badge
Partnerschaft
Frau Cornelia PflugDein Kontakt
Online-ID: 26JQD5977JRT
Referenznummer: OBGC20260227154502324e64ca93079
EDEX Immobilien GmbH
EDEX Immobilien GmbH
Bewertung: 5 von 5 Sternen
Mit einer persönlichen Nachricht hast du bessere Chancen auf eine Antwort.
Mit der Nutzung der oben angegebenen Telefonnummer oder durch Klicken auf „Kontaktieren“ akzeptierst Du die Allgemeinen Nutzungsbedingungen, denen Du jederzeit widersprechen kannst. Weitere Informationen zum Datenschutz
Wie zufrieden bist du mit dieser Seite (nicht mit der Immobilie selbst)?