Version: 8.26.0Navigation überspringen
VON POLL REAL ESTATE Mallorca - Santa Maria
4.100.000 €
6 Zimmer  •  296 m²  •  21.802 m² Grundstück

Landhaus zum Kauf - Erstbezug
4100000 €
13.851 €/m²
6 Zimmer  •  296 m²  •  21.802 m² Grundstück

Exklusive Finca mit genehmigtem Bauprojekt, Pool und Sauna - idyllisch gelegen zwischen Weinreben und mit Panoramablick auf die Serra de Tramuntana be

Dieses großzügige Anwesen entsteht auf einem ca. 21.802 m² großen Grundstück in unmittelbarer Nähe zur Inselhauptstadt Palma, in der Region von Santa Maria. Die Immobilie wird mit einer bestehenden Baugenehmigung angeboten und nach den genehmigten Plänen fertiggestellt - im Kaufpreis bereits enthalten.

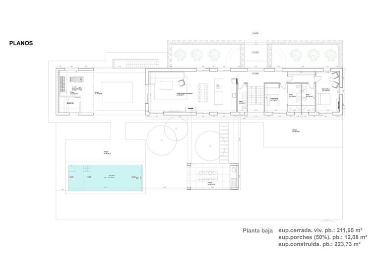
Das genehmigte Projekt sieht eine bebaute Fläche von ca. 600 m² vor, mit einer Wohnfläche von ca. 296 m², die sich auf insgesamt sechs Räume verteilt, darunter vier Schlafzimmer und vier Badezimmer. Alle Räume sind hochwertig ausgestattet und bieten höchsten Wohnkomfort nach modernen Standards.

Der Außenbereich umfasst einen Swimmingpool und eine Sauna, die zu jeder Jahreszeit Entspannung bieten. Der Garten ist sorgfältig angelegt und wird von Weinreben umgeben, was eine idyllische und exklusive Atmosphäre schafft. Zudem verfügt das Anwesen über einen vollständig unterkellerten Bereich sowie eine Garage für zwei Fahrzeuge.

Fußbodenheizung und Klimaanlage sorgen für ein angenehmes Raumklima das ganze Jahr über. Die Finca bietet einen atemberaubenden Panoramablick auf die majestätische Serra de Tramuntana - ein echtes Highlight für Naturfreunde und Ruhesuchende.

Dank der strategisch günstigen Lage bietet die Immobilie sowohl Nähe zu Palma als auch eine hervorragende Anbindung an viele reizvolle Orte der Umgebung. Sie eignet sich ideal als Hauptwohnsitz oder Feriendomizil - mit der Möglichkeit, die Ausstattung individuell zu gestalten.

Lassen Sie sich von dieser einzigartigen Finca mit genehmigtem Bauprojekt und Top-Ausstattung begeistern. Vereinbaren Sie noch heute einen Besichtigungstermin und entdecken Sie Ihr zukünftiges Zuhause auf Mallorca.

Merkmale

  • 21.802 m² Grundstück
  • Einbauküche, offene Küche
  • Keller
  • 2 Stellplätze: 2 Tiefgaragenstellplätze
  • Terrasse
  • voll klimatisiert
  • Bodenbelag: Parkett

Grundrisse

Grundrisse
1 / 6

Virtueller Rundgang

Video

Bausubstanz und Energie

Möchtest du Details zum Energieverbrauch?info_energy_calculation-icon
  • Zustand der ImmobilieMassivhaus, Erstbezug
  • HeizungsartFußbodenheizung
  • EnergieträgerLuft-/Wasser-Wärmepumpe
MediumRectangleTop

Preisdetails

Kaufpreis
4100000 €
13.851,35 €/m²
Provision für Käufer
Bitte beachte, das Angebot kann bei Vertragsabschluss die Zahlung einer Provision beinhalten. Weitere Informationen erhältst Du vom Anbieter.
Weitere Preisinformationen
2 Tiefgaragenstellplätze

Lage

address-icon
Santa Maria del Cami (07320)
Der Anbieter hat die genaue Adresse nicht freigegeben
Santa María del Camí, ein malerisches Dorf im Herzen Mallorcas, hat fast 7.000 Einwohner und hat sich zu einem sehr begehrten Ort entwickelt und vereint traditionellen Charme mit modernem Komfort. Die imposante Pfarrkirche, mit ihrem markanten Glockenturm, ist ein architektonisches Juwel, das die Geschichte des Dorfes widerspiegelt. Eine weitere Attraktion ist der Wein, der in Santa María angebaut wird und viele Besucher anzieht. Sonntags findet der Wochenmarkt statt, der eine Fülle an frischen Produkten, handgefertigten Waren und lokalen Spezialitäten anbietet. Die malerische Landschaft, geprägt von sanften Hügeln und Weinbergen, lädt zu entspannten Spaziergängen und Fahrradtouren ein und die nahegelegenen Tramuntana-Berge können erkundet werden. Die zentrale Lage von Santa Maria del Camí, nur ca. 20 km von Palma entfernt, macht es zu einem attraktiven Wohnort für diejenigen, die die Ruhe des Dorflebens schätzen und dennoch die Annehmlichkeiten der Stadt in Reichweite haben möchten. Auch der Flughafen und die Strände sind in ähnlicher Reichweite. Inzwischen gibt es hier eine Vielzahl an hochwertigen Restaurants und Einkaufsmöglichkeiten. Neben der renommierten internationalen Schule "The Montessori School" gibt es auch eine öffentliche Schule. Das Freizeitcenter "Mallorca Fashion Outlet", das nur wenige Autominuten entfernt ist, bietet zahlreiche Modegeschäfte, Bars, Restaurants, Aktivitäten für die ganze Familie und ein großes Kino.

Weitere Informationen

Sonstiges Grundsätzlich empfehlen wir, die baurechtliche Situation durch einen Fachanwalt prüfen zu lassen. Alle Angaben basieren ausschließlich auf den Informationen des Eigentümers bzw. Auftraggeber. Wir übernehmen keine Gewähr für die Vollständigkeit, Richtigkeit und Aktualität der Angaben. Die Courtage geht zu Lasten des Verkäufers. Die beim Kauf anfallenden Steuern, die Notar- und die Grundbuchkosten sind vom Käufer zu tragen. Stichworte Anzahl der Schlafzimmer: 4, Anzahl der Badezimmer: 4, Anzahl der separaten WCs: 1, Anzahl Terrassen: 1, Bundesland: Balearische_Inseln, 2 Etagen

Weitere Services

Lust auf eine Besichtigung?
Eine Frage zur Immobilie?
Nachricht hinzufügen
Mit der Nutzung der oben angegebenen Telefonnummer oder durch Klicken auf „Kontaktieren“ akzeptierst Du die Allgemeinen Nutzungsbedingungen, denen Du jederzeit widersprechen kannst. Weitere Informationen zum Datenschutz

Über den Anbieter

Placa Hostals 11, 07320 SANTA MARÍA DEL CAMI
partner badge
Partnerschaft
VON POLL REAL ESTATE Shop Mallorca - Santa MariaDein Kontakt
Online-ID: 24ZJGZZ1K6NT
Referenznummer: ES 24 374 4787
MediumRectangleTop
Wie zufrieden bist du mit dieser Seite (nicht mit der Immobilie selbst)?