

Einfamilienhaus zum Kauf245000 €1.667 €/m²5 Zimmer • 147 m² • 669 m² Grundstück • frei ab sofort
245000 €
1.667 €/m²
5 Zimmer • 147 m² • 669 m² Grundstück • frei ab sofort
Einfamilienhaus mit großer Garage Nähe Nürburgring
Merkmale
- frei ab sofort
- 669 m² Grundstück
- Einbauküche
- Keller
- Garage
- Garten
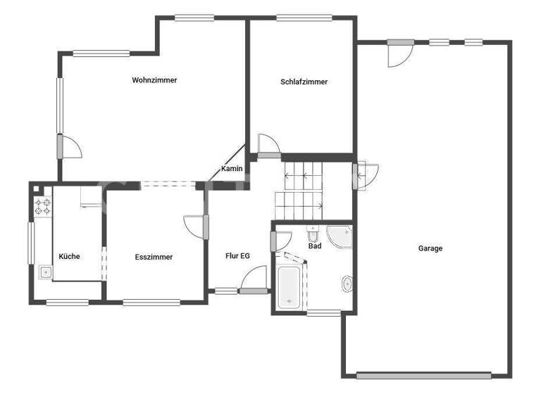
Grundrisse
Grundrisse
1 / 5
Realisiere Dein Projekt
Bausubstanz und Energie
Der Anbieter hat keine Informationen zum Energieverbrauch bereit gestellt.
- Baujahr1977
- Zustand der ImmobilieGepflegt
- HeizungsartZentralheizung
- EnergieträgerÖl
Preisdetails
Kaufpreis
245000 €
1.666,67 €/m²
Provision für Käufer
3.57% inkl. MwSt.
Die Käuferprovision beträgt 3,57 % des Kaufpreises inkl. 19% MwSt.
Die Käuferprovision beträgt 3,57 % des Kaufpreises inkl. 19% MwSt.
Weitere Preisinformationen
1 Garagenstellplatz
Geschätzte Gesamtkosten
270.896 €1
Kaufpreis
245.000 €
Kaufnebenkosten
25.896 €
2Notarkosten (1,5%)
3.675 €
Grunderwerbsteuer (5%)
12.250 €
Provision für Käufer (3,57%)
8.746 €
Grundbucheintrag (0,5%)
1.225 €
1Der angezeigte Wert ist eine automatisch berechnete Schätzung von immowelt.
2Bei den Angaben handelt es sich um ortsübliche Werte. Individuelle Kosten können abweichen.
Lage

Wimbach (53518)
Der Anbieter hat die genaue Adresse nicht freigegeben
Weitere Informationen
Weitere Services
Lust auf eine Besichtigung?
Eine Frage zur Immobilie?
Über den Anbieter
CENTURY 21 Ahrtal ImmobilienMaklerbüro
Hauptstraße 102, 53518 Adenau
Partnerschaft

Herr Jürgen NehringDein Kontakt
Online-ID: 2nswl5j
Referenznummer: C21_JUNE_47278


CENTURY 21 Ahrtal Immobilien
Bewertung: 4,1 von 5 Sternen
Wie zufrieden bist du mit dieser Seite (nicht mit der Immobilie selbst)?

