

Haus zum Kauf • provisionsfrei662700 €3.921 €/m²5 Zimmer • 169 m² • 1.120 m² Grundstück
662700 €
3.921 €/m²
5 Zimmer • 169 m² • 1.120 m² Grundstück
Einfamilienhaus
Merkmale
- Bezug: 2026
- 1.120 m² Grundstück
- Kein Keller
- Bad/WC getrennt, Gäste-WC
- Badezimmer: Badewanne, Bad mit Dusche, Bad mit Fenster
- Fenster: Kunststoff
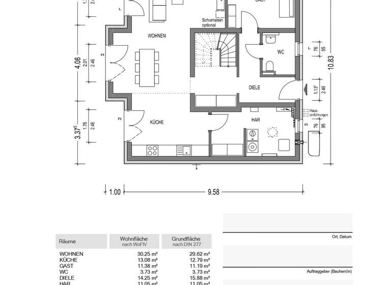
Grundrisse
Grundrisse
1 / 3
Realisiere Dein Projekt
Bausubstanz und Energie
Energieausweis
A+
- Baujahr2026
- Zustand der ImmobilieMassivhaus, Projektiert
- HeizungsartFuĂźbodenheizung
Preisdetails
Kaufpreis
662700 €
3.921,30 €/m²
Provision für Käufer
provisionsfrei
Geschätzte Gesamtkosten
709.090 €1
Kaufpreis
662.700 €
Kaufnebenkosten
46.390 €
2Notarkosten (1,5%)
9.941 €
Grunderwerbsteuer (5%)
33.135 €
Grundbucheintrag (0,5%)
3.314 €
1Der angezeigte Wert ist eine automatisch berechnete Schätzung von immowelt.
2Bei den Angaben handelt es sich um ortsübliche Werte. Individuelle Kosten können abweichen.
Lage

Hauptstraße, Wittorf (21357)
Weitere Informationen
Weitere Services
Lust auf eine Besichtigung?
Eine Frage zur Immobilie?
Ăśber den Anbieter
StellmacherstraĂźe 68, 21335 LĂĽneburg
10 Jahre Partnerschaft + Diamond Partner
Herr Michael WolterDein Kontakt
Online-ID: 2k4zy5z
MW Hausvertrieb - Kooperationspartner von Heinz von Heiden GmbH Massivhäuser
Bewertung: 4 von 5 Sternen
Wie zufrieden bist du mit dieser Seite (nicht mit der Immobilie selbst)?