Version: 8.25.1Navigation überspringen
KENSINGTON Finest Properties International - Esslingen - Dennis Blauss
650 €
1,5 Zimmer  •  40 m²  •  2. Geschoss

Wohnung zur Miete
650 €
1,5 Zimmer  •  40 m²  •  2. Geschoss

Renovierte Dachgeschosswohnung in Echterdingen

Wer in zentraler und dennoch ruhiger Wohnlage in Echterdingen wohnen möchte, wird diese Wohnung lieben. Das zur Miete angebotene 1-Zimmer-Apartment befindet sich im Dachgeschoss einer im Jahr 1992 erbauten Liegenschaft mit zehn Wohneinheiten.

Die Wohnfläche von ca. 40 m² verteilt sich auf einen hellen Wohn-, Ess- und Schlafbereich, eine offene Küche, ein innenliegendes Badezimmer sowie eine Diele. Der an den Wohnbereich angrenzende Balkon punktet mit idealer Südausrichtung und einem schönen Weitblick.

In der Küche ist bereits eine Einbauküche vorhanden, welche kürzlich modernisiert wurde. Ausgestattet mit einer Spüle, einem Ceran-Kochfeld sowie einem kleinen Einbaukühlschrank, bietet sie alles, was man in einer Küche benötigt.

Das innenliegende Badezimmer mit Dusche, WC und Waschbecken wurde ebenfalls kürzlich modernisiert und trifft mit Sicherheit auch Ihren Geschmack.

Das Mehrparteienhaus wird zuverlässig von einer Hausverwaltung betreut. Ein Hausmeisterservice übernimmt die Kehrwoche sowie den Winterdienst. Zur Wohnung gehört ein Kellerraum im Untergeschoss. Der Hausgemeinschaft steht außerdem ein gemeinschaftlich nutzbarer Wasch- und Trockenraum zur Verfügung. Abgerundet wird dieses attraktive Angebot durch einen Tiefgaragenstellplatz.

Die Wohnung eignet sich ideal für Pendler, Singles oder auch junge Paare. Bis zur kurzfristig möglichen Übergabe werden derzeit noch vereinzelt kleinere Renovierungsarbeiten durchgeführt. Überzeugen Sie sich selbst bei einem Besichtigungstermin und lassen Sie sich begeistern!

Résumé: Helles 1-Zimmer-Dachgeschoss-Apartment mit Balkon in zentraler Lage von Echterdingen!

Merkmale

  • Bezug: sofort
  • Dachgeschoss, 2. Geschoss
  • Einbauküche
  • Keller
  • Tiefgarage
  • Balkon
  • Bad mit Dusche
  • Bodenbelag: Fliesen

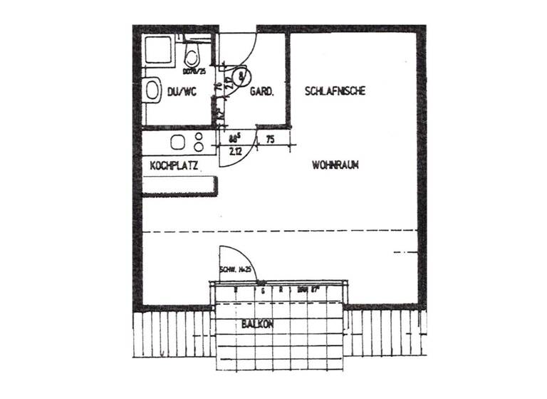
Grundrisse

Grundrisse
1 / 1

Realisiere Dein Projekt

Bausubstanz und Energie

Energieausweis

D
  • Baujahr1992
  • Zustand der Immobilierenoviert / saniert
  • HeizungsartZentralheizung
  • EnergieträgerGas

Mietkosten

Warmmiete
840 €
Kaltmiete
16,25 €/m²
650 €
Nebenkosten
120 €
Heizkosten
in Warmmiete enthalten
Zusätzliche Kosten
Miete pro Stellplatz
70 €
Kaution
1440 €
Weitere Preisinformationen
1 Tiefgaragenstellplatz, Miete: 70,00 EUR

Lage

address-icon
Kleine Obergasse 16/2EchterdingenLeinfelden-Echterdingen (70771)
Wohnen in Leinfelden-Echterdingen ist in erster Linie Wohnen zwischen Natur und lebendigem Stadtleben - einleuchtend, dass sich Leinfelden-Echterdingen als grüne Alternative zur Großstadt präsentiert. Umgeben von Feldern und Streuobstwiesen, verbunden mit einer außerordentlich guten Infrastruktur und vielfältigen Angeboten für Arbeit, Freizeit und Erholung, bietet Leinfelden-Echterdingen herausragende Standortqualitäten.

Der Standort punktet nicht nur durch seine Nähe zu zahlreichen Naherholungsgebieten, sondern auch durch die Nähe zur Landeshauptstadt Stuttgart, dem Flughafen und der Messe, die Sie in ca. 5 Minuten bequem erreichen. Aufgrund des Anschlusses an die Autobahn A8 (Karlsruhe-Stuttgart-Ulm-München) und an die Bundesstraße 27 (Stuttgart-Tübingen) sowie des S-Bahn Anschlusses sind Sie optimal in die Infrastruktur eingegliedert.

Ein breites Spektrum wird geboten: Von der Kleinkindbetreuung, über ein vielfältiges Schul- und Bildungsangebot, einer reichen Auswahl an Sport- und Freizeitmöglichkeiten, bis hin zu Ausbildungs- und Arbeitsplätzen in einem wirtschaftlich starken Umfeld. Mehrere Kindergärten, und Schulen befinden sich direkt im Ortsteil Echterdingen. Dinge des täglichen Bedarfs sowie Ärzte sind hier problemlos zu erreichen.

Leinfelden-Echterdingen vereint alle seine städtischen Vorteile mit dörflichen Traditionen und einem regen Vereins- und Kulturleben. Theater, Musik und soziales Miteinander prägen den Jahreslauf - Märkte, Bürger- und Vereinsfeste bringen die Menschen zusammen. Und wer die Ruhe sucht, findet in den ausgedehnten Wäldern und auf weitläufigen Feldwegen rund um Leinfelden-Echterdingen eine reiche Auswahl. Das bekannte Natur- und Landschaftsschutzgebiet "Siebenmühlental" besticht zudem mit seinen beliebten Wander- und Radfahrmöglichkeiten und der Einkehr in die romantischen Mühlen.

Weitere Informationen

Sonstiges Alle Angaben sind ohne Gewähr und basieren ausschließlich auf Informationen, die von unserem Auftraggeber übermittelt wurden. Wir übernehmen ausdrücklich keine Gewähr für die Vollständigkeit, Richtigkeit und Aktualität dieser Angaben.

Eine direkte Kontaktaufnahme mit dem Vertragspartner darf nur mit unserer Zustimmung erfolgen. Von direkten Verhandlungen und deren Inhalt sind wir unaufgefordert zu unterrichten.

KENSINGTON Esslingen ist Ihr Partner für den professionellen Verkauf und die Vermietung von Immobilien in der Region. Wir suchen ständig Häuser und Wohnungen für qualifizierte Bestandskunden.

Sie denken ebenfalls über einen Verkauf oder eine Vermietung Ihrer Immobilie nach?

Gerne bewerten wir auch Ihre Immobilie unverbindlich und kostenfrei vorab. Wir von KENSINGTON Esslingen werden einen Preis für Ihre Immobilie ermitteln, der sich am Markt behaupten wird.

Bei Interesse kontaktieren Sie uns bitte telefonisch oder unter esslingen@kensington-international.com. Stichworte Tiefgarage vorhanden, Anzahl der Badezimmer: 1, Anzahl Balkone: 1, Balkon-Terrassen-Fläche: 4,00 m², Bundesland: Baden-Württemberg, modernisiert: 2026, Distanz zum Flughafen: 3.32, Distanz zum Hauptbahnhof: 0.51, Distanz zur Autobahn: 2.0, Distanz zum Bus: 0.31

Weitere Services

Lust auf eine Besichtigung?
Eine Frage zur Immobilie?
Mit einer persönlichen Nachricht hast du bessere Chancen auf eine Antwort.
Mit der Nutzung der oben angegebenen Telefonnummer oder durch Klicken auf „Kontaktieren“ akzeptierst Du die Allgemeinen Nutzungsbedingungen, denen Du jederzeit widersprechen kannst. Weitere Informationen zum Datenschutz

Über den Anbieter

Uhlbergstraße 112, 70794 Filderstadt
partner badge
Partnerschaft
Herr Dennis BlaussDein Kontakt
Online-ID: 26IK6NY5ZBSF
Referenznummer: Kensington_KST_645
KENSINGTON Finest Properties International - Esslingen - Dennis Blauss
KENSINGTON Finest Properties International - Esslingen - Dennis Blauss
Mit einer persönlichen Nachricht hast du bessere Chancen auf eine Antwort.
Mit der Nutzung der oben angegebenen Telefonnummer oder durch Klicken auf „Kontaktieren“ akzeptierst Du die Allgemeinen Nutzungsbedingungen, denen Du jederzeit widersprechen kannst. Weitere Informationen zum Datenschutz
MediumRectangleTop
MediumRectangleTop
Wie zufrieden bist du mit dieser Seite (nicht mit der Immobilie selbst)?