Weitere Informationen
Sonstiges
Der Text wurde ins Deutsche mithilfe einer automatischen Software übersetzt und es ist möglich, dass er einige Ungenauigkeiten enthält. Für eine korrekte Beschreibung und aktuelle Informationen zur Immobilie wenden Sie sich bitte an unseren Makler!
Wir präsentieren Ihnen eine Wohnung im fünften Stock eines Neubaus mit Act 16, die eine hervorragende Kombination aus Funktionalität und Raum bietet.
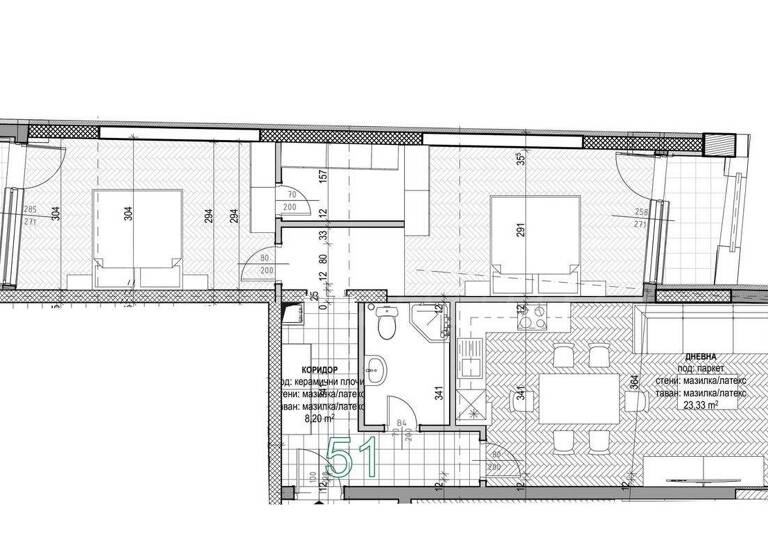
Die Wohnung hat eine Nettofläche von 132 m² und umfasst:
-Eingangshalle;
-großzügiges Wohnzimmer mit Küche;
-zwei separate Schlafzimmer, jedes mit eigenem Bad und WC;
-zusätzliches Badezimmer im Wohnbereich;
- zwei Loggienbalkone.
Die Raumaufteilung eignet sich sowohl für den Eigenbedarf von Familien als auch als Kapitalanlage zur Vermietung.
Die Wohnung verfügt über eine doppelte Ausrichtung, die den ganzen Tag über für Licht sorgt und einen Panoramablick auf Vitosha und das Balkangebirge bietet.
Das Gebäude ist mit modernen Materialien ausgestattet - Wienerberger Ziegel, Fünf-Kammer-Fenster mit Ganzjahresverglasung und 10 cm Wärmedämmung, was die Energieeffizienzklasse "A" garantiert. Die Gemeinschaftsbereiche sind mit Granit ausgelegt, und für den Komfort der Bewohner stehen zwei ORONA-Aufzüge zur Verfügung.
Das Gebäude bietet Sicherheit und Ruhe dank 24-Stunden-Sicherheitsdienst und Zugangskontrolle. Es verfügt über zwei Tiefgaragenebenen mit komfortablen, auch für SUVs geeigneten Parkplätzen. Ein überdachter Stellplatz kann für 25.000 Euro erworben werden.
Zustand:
Die Wohnung wird im Rohbauzustand (Gips und Estrich) mit vorinstallierter Klimaanlage in jedem Zimmer angeboten. Auf Wunsch kann sie nach individuellen Vorgaben ausgebaut werden.
Standort:
In unmittelbarer Nähe zum Flughafen Sofia gelegen, mit schneller Anbindung an die Innenstadt, Geschäftsviertel und Hauptverkehrsadern. Bushaltestellen der Buslinien 10, 8 und 4 befinden sich in der Umgebung.
Vorteile der Immobilie:
? funktionale Raumaufteilung mit zwei Schlafzimmern mit jeweils eigenem Badezimmer;
? doppelseitige Belichtung mit Panoramablick;
? Neubau mit hochwertigen Materialien und Act 16;
? Sicherheit - 24-Stunden-Sicherheitsdienst und Zugangskontrolle;
? Möglichkeit eines überdachten Parkplatzes (25.000 Euro);
? hervorragende Lage mit guter Verkehrsanbindung (Busse Nr. 10, Nr. 8 und Nr. 4).
Wir freuen uns auf Ihre Anfrage.
Wenn Sie eine Immobilie besichtigen möchten, die Sie interessiert, oder eines unserer Büros besuchen möchten, kontaktieren Sie uns bitte. Um einen Termin für eine Besichtigung oder ein Treffen zu vereinbaren, rufen Sie uns bitte unter der in der Anzeige angegebenen Telefonnummer an oder senden Sie uns eine Anfrage per E-Mail. Unser Berater unterstützt Sie gerne mit allen notwendigen Informationen und findet einen passenden Termin für Sie.
Sind Sie auf der Suche nach der passenden Immobilie für Sie?
Zögern Sie nicht, uns zu kontaktieren und uns Ihre Wünsche und Vorlieben mitzuteilen. Unser Team führt eine gründliche Marktanalyse durch, um Ihnen Immobilien anzubieten, die genau Ihren Kriterien entsprechen. Wir verfügen über ein außergewöhnliches Portfolio an hochwertigen und exklusiven Häusern, die nur unseren Kunden zur Verfügung stehen. Um als Erster Informationen darüber zu erhalten, kontaktieren Sie uns.
Zusätzliche Dienstleistungen
Als geschätzter Kunde unseres Unternehmens genießen Sie den Vorteil, die Dienste unseres erfahrenen Rechtsteams kostenfrei in Anspruch zu nehmen. Darüber hinaus bieten wir Ihnen umfassende Lösungen, darunter Gebäudeversicherungen, kostenlose Finanzberatung sowie attraktive Finanzierungskonditionen. Unser Leistungsspektrum umfasst auch die Bereiche Wiederverkauf, Vermietung und Immobilienverwaltung. Hochwertige Renovierungen und Einrichtungsarbeiten vermitteln wir Ihnen über spezialisierte Unternehmen unserer Unternehmensgruppe, mit denen wir seit Langem zusammenarbeiten.
Besichtigungen
Wir können eine Besichtigung der Immobilie zu einer für Sie passenden Zeit vereinbaren. Bitte kontaktieren Sie den für dieses Angebot zuständigen Makler und teilen Sie ihm die von Ihnen gewünschte Uhrzeit mit.
Reservierung der Immobilie
Gegen eine nicht erstattete Anzahlung in Höhe von 2.000 Euro wird die Immobilie reserviert. Weitere Besichtigungen mit anderen Käufern finden nicht statt und Makler beginnt mit der Vorbereitung der Dokumente für den Abschluss des endgültigen Vertrags für Eigentumsübertragung. Bitte kontaktieren Sie den zuständigen Makler für mehr Information über den Kauf einer Immobilie und Zahlungsarten.
Zusatzleistungen und Kundendienst
Wir sind ein seriöses Unternehmen und werden nicht nur während des Kaufs, sondern auch danach bei Ihnen sein und Ihnen auf Ihren Wunsch zusätzliche Dienstleistungen anbieten, um die neu gekaufte Immobilie vollständig und nahtlos zu nutzen. Die Dienstleistungen, die wir anbieten können, umfassen die Erlangung einer Hypothekengenehmigung, eine Versicherung für bewegliche und unbewegliche Sachen, eine Lebensversicherung, eine Kranken- und Autoversicherung, Bau- und Reparaturaktivitäten, Möbel, Rechts- und Buchhaltungsdienstleistungen usw.
Bei uns können Sie nicht nur eine Immobilie mieten, sondern auch eine Reihe von Zusatzleistungen in Anspruch nehmen. Wir können Versicherungen für bewegliches und unbewegliches Vermögen, Lebensversicherungen, Kranken- und Kfz-Versicherungen, Bau- und Reparaturarbeiten, Möbel, Rechts- und Buchhaltungsdienstleistungen usw. anbieten.
Stichworte
Lage im Bau: rechts vorne