Version: 8.25.1Navigation überspringen
985 €
1 m² Bürofläche
Immowelt logo

Bürofläche zur Miete
985 €
1 m² Bürofläche

Büro-/Gewerberäume mit zentraler Anbindung in Saterland OT Sedelsberg

Antritt kurzfristig möglich!
Energieausweis in Arbeit!

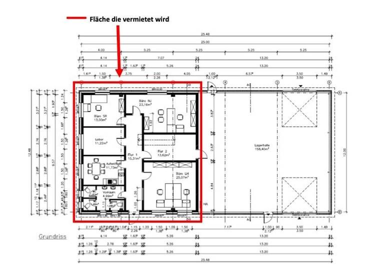
Vielseitig verwendbare Büro-/Gewerberäume mit zentraler Anbindung zur B72 und B401 in Saterland OT Sedelsberg zu vermieten. Das Angebot erstreckt sich über eine Fläche von ca. 120qm und teilt sich wie folgt auf: Flur, 3x
Büroräume, Aufenthaltsraum, Labor, WCs. Die beiden Küchen sowie Möbel (siehe Bilder) verbleiben in dem Gebäude und werden mit vermietet.

Grundmiete: 985,00€
Nebenkosten: 150,00€
Kaution: 2.000,00€

Fläche: ca. 120qm

ENEV 2013
In Arbeit!

Wir haben das Angebot nach bestem Wissen zusammengestellt. Es fundiert auf den Angaben des Eigentümers, welche vor Vertragsabschluss ggf. vom Mieter neu zu prüfen
sind.

Grundrisse

Grundrisse
1 / 2

Realisiere Dein Projekt

Bausubstanz und Energie

Möchtest du Details zum Energieverbrauch?info_energy_calculation-icon
  • Baujahr2011
Immowelt logo

Mietkosten

Nettomiete
985 €
Nebenkosten
150 €
Provision für Mieter
Bitte beachte, das Angebot kann bei Vertragsabschluss die Zahlung einer Provision beinhalten. Weitere Informationen erhältst Du vom Anbieter.
Kaution
2000 €

Lage

address-icon
SedelsbergSaterland / Sedelsberg (26683)
Der Anbieter hat die genaue Adresse nicht freigegeben
26683 Saterland Sedelsberg (direkte Anbindung zur B401 & B70)

Weitere Informationen

Sonstiges Objekt:
Büro-/Gewerberäume mit zentraler Anbindung in Saterland OT Sedelsberg

Baujahr:
2011

Gebäude:
Flur, 3x Büroräume, Aufenthaltsraum, Labor, WCs

Fläche: ca. 120qm Stichworte Gesamtfläche: 120,00 m², vermietbare Fläche: 120,00 m²

Weitere Services

Lust auf eine Besichtigung?
Eine Frage zur Immobilie?
Mit einer persönlichen Nachricht hast du bessere Chancen auf eine Antwort.
Mit der Nutzung der oben angegebenen Telefonnummer oder durch Klicken auf „Kontaktieren“ akzeptierst Du die Allgemeinen Nutzungsbedingungen, denen Du jederzeit widersprechen kannst. Weitere Informationen zum Datenschutz

Über den Anbieter

Deverweg 47, 26871 Papenburg
Herr Frerich BüürmaDein Kontakt
Online-ID: 25QAHLHKZNGR
Referenznummer: P1480
BS-Immobilienkontor GmbH
BS-Immobilienkontor GmbH
Mit einer persönlichen Nachricht hast du bessere Chancen auf eine Antwort.
Mit der Nutzung der oben angegebenen Telefonnummer oder durch Klicken auf „Kontaktieren“ akzeptierst Du die Allgemeinen Nutzungsbedingungen, denen Du jederzeit widersprechen kannst. Weitere Informationen zum Datenschutz
Wie zufrieden bist du mit dieser Seite (nicht mit der Immobilie selbst)?