

Wohnung zum Kauf178000 €2.697 €/m²2,5 Zimmer • 66 m² • 5. Geschoss
178000 €
2.697 €/m²
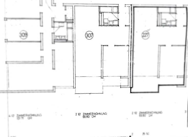
2,5 Zimmer • 66 m² • 5. Geschoss
Wohnung in Rottweil
Merkmale
- Bezug: nach Vereinbarung
- 5. Geschoss
- Personenaufzug
- Kelleranteil
- Außen-Stellplatz
- Balkon
Grundrisse
Grundrisse
1 / 2
Realisiere Dein Projekt
Bausubstanz und Energie
Der Anbieter hat keine Informationen zum Energieverbrauch bereit gestellt.
- Baujahr1971
- Zustand der ImmobilieGepflegt
- EnergieträgerÖl
Preisdetails
Kaufpreis
178000 €
2.696,97 €/m²
Preis pro Stellplatz
7000 €
Hausgeld
130 €
Provision für Käufer
3,57 % inkl. MwSt.
Weitere Preisinformationen
1 Stellplatz, Kaufpreis: 7.000,00 EUR
Geschätzte Gesamtkosten
196.815 €1
Kaufpreis
178.000 €
Kaufnebenkosten
18.815 €
2Notarkosten (1,5%)
2.670 €
Grunderwerbsteuer (5%)
8.900 €
Provision für Käufer (3,57%)
6.355 €
Grundbucheintrag (0,5%)
890 €
1Der angezeigte Wert ist eine automatisch berechnete Schätzung von immowelt.
2Bei den Angaben handelt es sich um ortsübliche Werte. Individuelle Kosten können abweichen.
Lage

Rottweil (78628)
Der Anbieter hat die genaue Adresse nicht freigegeben
Weitere Informationen
Weitere Services
Lust auf eine Besichtigung?
Eine Frage zur Immobilie?
Über den Anbieter
Immobilien WachterMaklerbüro
Am Jordanbach 25, 88605 Meßkirch
10 Jahre Partnerschaft

Herr Klaus-Dieter WachterDein Kontakt
Online-ID: 2mxcp5t
Referenznummer: 442


Immobilien Wachter
Wie zufrieden bist du mit dieser Seite (nicht mit der Immobilie selbst)?

