Version: 8.25.1Navigation überspringen
239.000 €
Immowelt logo

Land-/Forstwirtschaft zum Kauf
239000 €

Baugrundstück 511m2 zum Kauf - Medulin, Stari Medulin

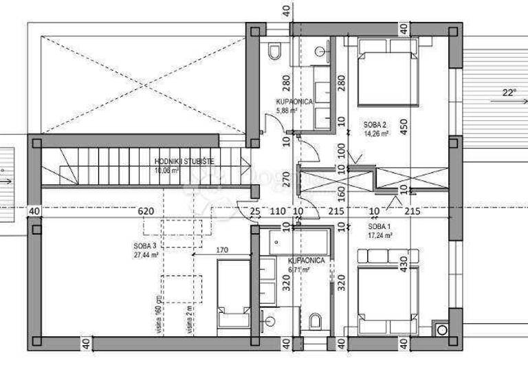
Baugrundstück mit Projekt und Baugenehmigung in Medulin Ideal für den Bau Ihrer Traumvilla! Dieses außergewöhnliche Baugrundstück von 511 m liegt in der ruhigen und grünen Umgebung des prestigeträchtigen Dorfes Smrikve, nur 1,5 km vom Meer und allen wichtigen Annehmlichkeiten der Stadt entfernt. Die ideale Lage ermöglicht es Ihnen, die Natur zu genießen, aber auch in der Nähe aller notwendigen Einrichtungen zu sein, da es sich in unmittelbarer Nähe von Pula befindet und nur 15 Autominuten vom Flughafen Pula und der Mautstelle Pula entfernt ist. Das Grundstück ist vollständig für den Bau vorbereitet, da es über ein bereits vorbereitetes Projekt für ein Luxusapartmentgebäude verfügt, das alle erforderlichen Baugenehmigungen sowie den bereits gezahlten Gemeinschaftsbeitrag umfasst. Auf dem Grundstück wird eine moderne Villa mit Swimmingpool und einer Bruttofläche von 200 m gebaut, die maximalen Komfort und Luxus bietet. Das Projekt umfasst: Drei geräumige Schlafzimmer, die jeweils den perfekten Raum zum Entspannen bieten. Zwei moderne Badezimmer mit hochwertigen Materialien und elegantem Design. Zusätzliches WC für maximalen Komfort und Privatsphäre. Geräumiges Wohnzimmer mit Esszimmer und Küche, offen gestaltet, ein idealer Raum für Familientreffen und gesellschaftliche Aktivitäten. Stauraum für alle notwendigen Dinge. Eine Terrasse mit herrlichem Blick auf die Umgebung, ideal, um sonnige Tage zu genießen. Sonnendeck am Pool, wo Sie am luxuriösen Pool entspannen können. Außendusche zum Genießen der frischen Luft nach dem Sonnenbad. Außenküche zum Genießen von Abendessen im Freien mit Familie und Freunden. Das Grundstück befindet sich in der Umgebung neuer Luxusferienvillen, was einen hohen Standard und eine hohe Lebensqualität sowie eine potenziell gute Investition garantiert. Der Grüngürtel rund um das Grundstück sorgt für absolute Privatsphäre und Ruhe und macht diesen Standort zur perfekten Wahl für den Bau Ihres idealen Eigenheims oder Ihrer Luxusferienvilla. Diese einzigartige Gelegenheit ermöglicht es Ihnen, Eigentümer eines Grundstücks mit einem Projekt und allen erforderlichen Genehmigungen an einem der begehrtesten Standorte Istriens zu werden. Verpassen Sie nicht die Gelegenheit, in Medulin eine Luxusimmobilie zu bauen, die Ihnen alles bietet, was Sie für ein komfortables und ruhiges Leben in Istrien benötigen. Für weitere Informationen oder die Vereinbarung einer Tour können Sie uns gerne kontaktieren! STEFANO PERUSKO MEDIATIONSASSISTENT Mobiltelefon 099/721-0395 stefano.perusko@dogma-nekretnine.com

ID CODE: IS1514575

Stefano Perusko
Agent s licencom
Mob: 099/721-0395
Tel: 052 770 811
E-mail: stefano.perusko@dogma-nekretnine.com
www.dogma-istra.com

Grundrisse

Grundrisse
1 / 2

Realisiere Dein Projekt

Bausubstanz und Energie

Möchtest du Details zum Energieverbrauch?info_energy_calculation-icon
Immowelt logo

Preisdetails

Kaufpreis
239000 €
Provision für Käufer
Bitte beachte, das Angebot kann bei Vertragsabschluss die Zahlung einer Provision beinhalten. Weitere Informationen erhältst Du vom Anbieter.

Lage

address-icon
Stari Medulin
Der Anbieter hat die genaue Adresse nicht freigegeben

Weitere Informationen

Stichworte Wohnfläche: 511,00 m², 1 Etagen

Weitere Services

Lust auf eine Besichtigung?
Eine Frage zur Immobilie?
Nachricht hinzufügen
Mit der Nutzung der oben angegebenen Telefonnummer oder durch Klicken auf „Kontaktieren“ akzeptierst Du die Allgemeinen Nutzungsbedingungen, denen Du jederzeit widersprechen kannst. Weitere Informationen zum Datenschutz

Über den Anbieter

Nova cesta 60, 10000 ZAGREB
Dogma nekretnineDein Kontakt
Online-ID: 23PZY8F2MP6B
Referenznummer: 18666532_1
Crozilla.com
Crozilla.com
Nachricht hinzufügen
Mit der Nutzung der oben angegebenen Telefonnummer oder durch Klicken auf „Kontaktieren“ akzeptierst Du die Allgemeinen Nutzungsbedingungen, denen Du jederzeit widersprechen kannst. Weitere Informationen zum Datenschutz
Wie zufrieden bist du mit dieser Seite (nicht mit der Immobilie selbst)?