Version: 8.25.1Navigation überspringen
169.000 €
1 Zimmer  •  40 m²  •  EG
Immowelt logo

Studio zum Kauf
169000 €
4.225 €/m²
1 Zimmer  •  40 m²  •  EG

Investitionswohnungen im Strandkonzept in Al Jaddaf Dubai

Kurzbeschreibung Investitionswohnungen im Strandkonzept in Al Jaddaf, Dubai, bieten Annehmlichkeiten im Lagunenstil, eine hervorragende Anbindung, starke Mietnachfrage und ein vom Resort inspiriertes Wohngefühl an. Objekt Von Lagunen inspirierte Wohnungen in Al Jaddaf, Dubai
Das Projekt befindet sich in Al Jaddaf, Dubai, einem schnell wachsenden Stadtteil am Wasser entlang des Dubai Creek, zwischen historischen Vierteln und den modernen Geschäftszentren der Stadt. Al Jaddaf ist bekannt für seine hervorragende Verkehrsanbindung und bietet gleichzeitig eine ruhigere, wohnlichere Atmosphäre als die belebteren zentralen Stadtteile. Seine strategische Lage macht es sowohl für Endnutzer als auch für Mieter, die eine gute Erreichbarkeit in Kombination mit einer ruhigen Lage am Wasser suchen, sehr attraktiv.
Von den Wohnungen zum Verkauf in Al Jaddaf, Dubai, profitieren die Bewohner von einer guten Anbindung an die wichtigsten Sehenswürdigkeiten Dubais. Der internationale Flughafen Dubai (DXB) ist etwa 10 bis 20 Minuten entfernt, während die Innenstadt von Dubai und der Burj Khalifa je nach Verkehrslage in etwa 15 bis 20 Minuten erreichbar sind. Business Bay ist in ähnlicher Entfernung zu erreichen, und beliebte Lifestyle-Ziele wie Palm Jumeirah, Dubai Marina und Mall of the Emirates sind in der Regel innerhalb von 25 bis 35 Minuten erreichbar. Diese gute Anbindung verbessert sowohl das tägliche Leben als auch die Attraktivität für Mieter.
Die Anlage ist als strandinspirierte Wohnanlage im Resort-Stil konzipiert, deren Mittelpunkt ein kristallklares Lagunenkonzept bildet. Sie bietet eine Vielzahl von sozialen und Lifestyle-Einrichtungen, darunter eine zentrale Strandlagune, voll ausgestattete Fitnessstudios, ein privates Kino, Landschaftsgärten, Joggingstrecken, Kinderspielplätze, Grillplätze und Einzelhandelsgeschäfte innerhalb oder in der Nähe der Anlage. Überdachte Parkplätze und ein 24/7-Sicherheitsdienst sorgen für Komfort und Sicherheit. Die Wahl einer Wohnung in Al Jaddaf bietet den Vorteil eines Lebens am Wasser in der Nähe des Stadtzentrums, wettbewerbsfähige Preise im Vergleich zu den besten Stadtteilen und eine starke Mietnachfrage aufgrund der zentralen und dennoch ruhigen Lage.
Aus Investitions- und Lebensstilperspektive bietet der Kauf einer Wohnung in Dubai Zugang zu einem weltweit anerkannten Immobilienmarkt, der durch Eigentumsrechte in bestimmten Gebieten und regulierte Treuhandsysteme für Off-Plan-Projekte unterstützt wird an. Die Stadt vereint moderne Infrastruktur, Sicherheit, steuerlich effiziente Strukturen und einen luxusorientierten Lebensstil. Eine Residenz im Resort-Stil in einem gut angebundenen Stadtteil am Wasser bietet daher sowohl ein komfortables Wohnerlebnis als auch langfristiges Investitionspotenzial in einem der dynamischsten Immobilienmärkte der Welt.
DXB-00415

Merkmale

  • Bezug: TEKCE Real Estate
  • Erdgeschoss
  • Rollstuhlgerecht
  • Personenaufzug
  • voll klimatisiert
  • Waschraum
  • Sauna
  • Swimmingpool

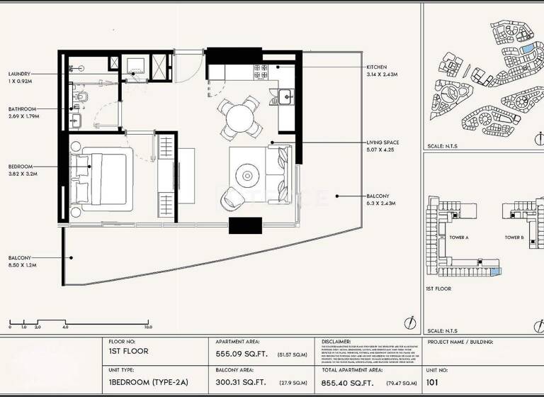
Grundrisse

Grundrisse
1 / 3

Realisiere Dein Projekt

Bausubstanz und Energie

Möchtest du Details zum Energieverbrauch?info_energy_calculation-icon
  • Baujahr2028
Immowelt logo

Preisdetails

Kaufpreis
169000 €
4.225 €/m²
Provision für Käufer
Bitte beachte, das Angebot kann bei Vertragsabschluss die Zahlung einer Provision beinhalten. Weitere Informationen erhältst Du vom Anbieter.

Lage

address-icon
Dubai
Fallback location image
Die Karte ist nicht verfügbar.

Weitere Informationen

Stichworte Stellplatz vorhanden, Nutzfläche: 40,00 m², Grundstücksfläche: 5.000,00 m², Ladenfläche: 40,00 m², Anzahl der Badezimmer: 1, Anzahl der Wohn-Schlafzimmer: 1, Bundesland: Al Jaddaf, 1 Etagen

Weitere Services

Lust auf eine Besichtigung?
Eine Frage zur Immobilie?
Nachricht hinzufügen
Mit der Nutzung der oben angegebenen Telefonnummer oder durch Klicken auf „Kontaktieren“ akzeptierst Du die Allgemeinen Nutzungsbedingungen, denen Du jederzeit widersprechen kannst. Weitere Informationen zum Datenschutz

Über den Anbieter

C/El Montículo 8, Benalmádena, 29631 MÁLAGA
partner badge
Partnerschaft
Herr Özkan Tekçe
Herr Özkan TekçeDein Kontakt
Online-ID: 268VCNG4F3BG
Referenznummer: DXB-00415-0-MiddleFloor
TEKCE Real Estate
title
TEKCE Real Estate
Nachricht hinzufügen
Mit der Nutzung der oben angegebenen Telefonnummer oder durch Klicken auf „Kontaktieren“ akzeptierst Du die Allgemeinen Nutzungsbedingungen, denen Du jederzeit widersprechen kannst. Weitere Informationen zum Datenschutz
Wie zufrieden bist du mit dieser Seite (nicht mit der Immobilie selbst)?