Version: 8.25.1Navigation überspringen
Neutor Real GmbH
6 €
1.699,4 m² Lagerfläche

Lagerhalle zur Miete
6 €
/m²
1.699,4 m² Lagerfläche

2 MONATE MIETFREI - TEMPERIERTE LAGERFLÄCHE - CA. 1.699,38 m² - LADERAMPE - STELLPLÄTZE - IM HERZEN DES 12. GEMEINDEBEZIRKS

"Zur Vermietung steht eine temperierte Lagerfläche mit einer Größe von ca. 1.699,38 m², die sich über zwei Stockwerke erstreckt und auch als Bürofläche genutzt werden kann. Die Fläche erfüllt sämtliche Anforderungen für die Lagerung von Waren und eignet sich ideal für Bürobetriebe.

 

Eckdaten:

Gesamtfläche: ca. 1.699,38 m² 
Stellplätze: 2 
Mietdauer: 5 Jahre
Bad: ja, inkl. Dusche und WC
Garderobe: ja
Aufenthaltsraum: ja, inkl. Teeküche
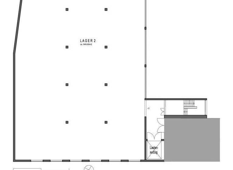
Lastenaufzug: ja - führt zu beiden Etagen

Verfügbar ab sofort

Beschreibung:

Im 12. Wiener Gemeindebezirk gelangt eine vielseitig nutzbare, temperierte Fläche mit einer Gesamtgröße von ca. 1.699,38 m² zur Vermietung. Die Immobilie eignet sich hervorragend sowohl als Lagerfläche als auch als Bürofläche und bietet damit eine optimale Lösung für Unternehmen, die eine Kombination aus beidem benötigen. Die durchdachte Raumaufteilung sowie die funktionale Ausstattung schaffen ideale Voraussetzungen für verschiedenste betriebliche Nutzungen Besonders hervorzuheben ist die vorhandene Laderampe, die eine komfortable und effiziente Be- und Entladung ermöglicht. Ergänzend dazu steht ein Lastenaufzug zur Verfügung, der beide Etagen verbindet und den Transport von schweren oder sperrigen Gütern innerhalb des Gebäudes erheblich erleichtert. Ein separater Lagerraum bietet zusätzliche Kapazitäten und schafft Übersicht und Ordnung in der Nutzung. Für das Personal oder Besucher steht zur Allgemeinnutzung ein eigener Aufenthaltsbereich mit Garderobe, Teeküche und einem voll ausgestatteten Badezimmer mit WC und Dusche zur Verfügung - ein klarer Pluspunkt in puncto Komfort und Alltagstauglichkeit. Abgerundet wird das Angebot durch die Möglichkeit, ein bis zwei Stellplätze direkt vor Ort separat anzumieten, was eine bequeme Anreise mit dem PKW ermöglicht. Diese Immobilie überzeugt durch ihre flexible Nutzbarkeit, moderne Ausstattung und die verkehrsgünstige Lage im 12. Bezirk. Sie ist somit die ideale Lösung für Unternehmen mit Lager- oder Bürobedarf, die auf eine funktionale und zugleich komfortable Arbeitsumgebung Wert legen.

Für weitere Informationen, individuelle Mietkonditionen oder einen Besichtigungstermin stehen wir Ihnen gerne jederzeit zur Verfügung. Nutzen Sie diese Gelegenheit, um Ihren Betrieb mit einer optimal ausgestatteten und zertifizierten Lagerfläche auszustatten.

Da sich die Lagerhallen derzeit in der Sanierung befinden, handelt es sich bei den Bildern um Referenzaufnahmen.

 

Die ersten zwei Monate sind mietfrei für Sie, in dieser Zeit bezahlen Sie lediglich die Betriebskosten.

Kosten:

HMZ: € 10.196,28 zzgl. gesetzlicher USt
Betriebskosten: ca. € 1,20/m²  als Lagerfläche / € 2,00.-/m²  als Bürofläche
Provision: 3 BMM zzgl. USt.  
Kaution: 3 BMM
Vergebührung: ca. € 6.117,77

 

Lage + Infrastruktur:

Dank der günstigen Lage nahe der Südosttangente (A23) sowie dem Autobahnknoten Inzersdorf verfügt die Liegenschaft über eine ausgezeichnete verkehrstechnische Anbindung. Über die Altmannsdorfer Straße (B224) besteht zudem eine direkte Verbindung zur Westautobahn (A1) sowie zur Südautobahn (A2) - ein klarer Standortvorteil für Unternehmen mit regionalem oder überregionalem Warenverkehr. Auch der Matzleinsdorfer Platz sowie der Bahnhof Wien Meidling sind in wenigen Fahrminuten erreichbar und bieten Anschluss an das nationale und internationale Bahnnetz - insbesondere für Betriebe mit logistischen Anforderungen ein echter Mehrwert. Die öffentliche Verkehrsanbindung ist durch mehrere Bus- und Straßenbahnlinien sowie die U-Bahnlinie U6 (Stationen Tscherttegasse oder Bahnhof Meidling) gewährleistet. Dadurch ist der Standort sowohl für Lieferanten als auch für Mitarbeiter und Kunden rasch und unkompliziert erreichbar. Die unmittelbare Umgebung bietet darüber hinaus eine hervorragende Nahversorgung mit Supermärkten, Tankstellen, Gastronomiebetrieben und diversen Dienstleistern - ein weiterer Pluspunkt für den täglichen Betriebsablauf und die Attraktivität des Standortes.

Hinweis gemäß Energieausweisvorlagegesetz: Ein Energieausweis wurde vom Eigentümer bzw. Verkäufer, nach unserer Aufklärung über die generell geltende Vorlagepflicht, sowie Aufforderung zu seiner Erstellung noch nicht vorgelegt. Daher gilt zumindest eine dem Alter und der Art des Gebäudes entsprechende Gesamtenergieeffizienz als vereinbart. Wir übernehmen keinerlei Gewähr oder Haftung für die tatsächliche Energieeffizienz der angebotenen Immobilie.

Wir weisen darauf hin, dass zwischen dem Vermittler und dem zu vermittelnden Dritten ein familiäres oder wirtschaftliches Naheverhältnis besteht.

Infrastruktur / Entfernungen

Gesundheit
Arzt <750m
Apotheke <500m
Klinik <1.250m
Krankenhaus <1.250m

Kinder & Schulen
Schule <500m
Kindergarten <250m
Universität <2.750m
Höhere Schule <2.250m

Nahversorgung
Supermarkt <250m
Bäckerei <250m
Einkaufszentrum <1.250m

Sonstige
Geldautomat <750m
Bank <750m
Post <750m
Polizei <1.000m

Verkehr
Bus <250m
U-Bahn <750m
Straßenbahn <500m
Bahnhof <500m
Autobahnanschluss <750m

Angaben Entfernung Luftlinie / Quelle: OpenStreetMap

Merkmale

  • Bezug: nach Mv
  • 1 Geschoss
  • Teeküche
  • Lastenaufzug
  • 2 Stellplätze: 2 Außen-Stellplätze
  • Laderampe
  • LKW-Zufahrt
  • Bad mit Dusche

Grundrisse

Grundrisse
1 / 2

Realisiere Dein Projekt

Bausubstanz und Energie

Möchtest du Details zum Energieverbrauch?info_energy_calculation-icon
  • Zustand der ImmobilieGepflegt
MediumRectangleTop

Mietkosten

Nettokaltmiete zzgl. Betriebskosten
6 €/m²
10.196,28 €
Provision für Mieter
3 Bruttomonatsmieten zzgl. 20% USt.
Kaution
3 Bruttomonatsmieten
Weitere Preisinformationen
2 Stellplätze
Nettokaltmiete: 10.196,28 EUR

Lage

address-icon
SagedergasseWien (1120)
Südosttangente (A23), Westautobahn (A1), Südautobahn (A2), Autobahnknoten Inzersdorf, Altmannsdorfer Straße (B224), Matzleinsdorfer Platz, Bahnhof Wien Meidling,  U-Bahnlinie U6 (Stationen Tscherttegasse oder Bahnhof Meidling)

Weitere Informationen

Stichworte Stellplatz vorhanden, Lagerfläche: 1.699,38 m², Nutzfläche: 1.699,38 m², Anzahl der Badezimmer: 1, Anzahl der separaten WCs: 1, Bundesland: Wien

Weitere Services

Lust auf eine Besichtigung?
Eine Frage zur Immobilie?
Nachricht hinzufügen
Mit der Nutzung der oben angegebenen Telefonnummer oder durch Klicken auf „Kontaktieren“ akzeptierst Du die Allgemeinen Nutzungsbedingungen, denen Du jederzeit widersprechen kannst. Weitere Informationen zum Datenschutz

Über den Anbieter

Neutor Real GmbH
Neutor Real GmbHMaklerbüro
Neutorgasse 13, 1010 WIEN
partner badge
Partnerschaft
Herr Thomas SchuchDein Kontakt
Online-ID: 25RFI7X8S7FR
Referenznummer: OBGC202511251423125988583d79369
Neutor Real GmbH
Neutor Real GmbH
Bewertung: 5 von 5 Sternen
Nachricht hinzufügen
Mit der Nutzung der oben angegebenen Telefonnummer oder durch Klicken auf „Kontaktieren“ akzeptierst Du die Allgemeinen Nutzungsbedingungen, denen Du jederzeit widersprechen kannst. Weitere Informationen zum Datenschutz
MediumRectangleTop
MediumRectangleBottom
MediumRectangleTop
Wie zufrieden bist du mit dieser Seite (nicht mit der Immobilie selbst)?