


1 / 11



1 / 11
Maisonette zum Kauf699000 €699.000 €6.721 €/m²4 Zimmer • 104 m² • 5. Geschoss
699000 €699.000 €
6.721 €/m²
4 Zimmer • 104 m² • 5. Geschoss
Tokiostraße: 4 Zimmer-Maisonetten-Wohnung mit einer Loggia und Terrasse + optionaler Garagenstellplatz!
Zum Verkauf gelangt hier eine 4 - Zimmer - Maisonetten - Wohnung mit viel Freifläche und optionalem Garagenstellplatz!
Die Wohnung ist sehr gut gelegen und sehr gut aufgeteilt.
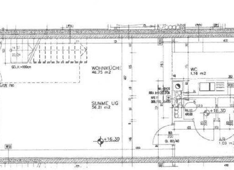
Im unteren Bereich befindet sich die großzügige Wohnküche, zwei Abstellräume, eine separate Toilette (WC), der Zugang zur unteren Terrasse und der Vorraum mit Sicherheitstür, Garderobenschränken und noch viel mehr Stauraum.
Im oberen Bereich befinden sich ein Badezimmer mit einem zweiten WC, die drei Schlafzimmer und eine weitere hofseitige Loggia (östlich orientiert) mit Zugang von beiden Schlafzimmern aus.
Die Freifläche lädt zum Entspannen und Verweilen ein. Auf den Gängen und im Eingangsbereich der Zimmer sind Wandverbauschränke montiert, die sehr viel Platz anbieten für Ihre Garderobe und Sachen.
Die Küche ist vollwertig und wurde verschönert und neue Geräte adaptiert. Hier gibt es ein Fenster zum Hof zum lüften und auch zum Querlüften ideal. Natürlich gibt es auch einen Dunstabzug und Ventilator in der Küche, Bad und WC.
Ein Kellerabteil wird mitveräußert als Zubehör.
Ein Garagenstellplatz kann bei Bedarf extra hinzu gekauft werden.
Hinweis:
Die Bilder wurden teilweise mit KI verbessert und optimiert.
Ausstattung:
Komplett ausgestattete Küche mit neuen Geräten, drei separat begehbare Schlafzimmer, Badezimmer mit Wanne und Waschmaschinenanschluss, sowie eine Toilette im oberen Bereich. In den Wohnräumen wurde Parkettboden verlegt, die Nassräume wurden verfliest. Eine Waschmaschine befindet sich in der Küche..
Hausanlage:
Ein Lift, Keller, Fahrrad- und Kinderwagenraum, sowie ein riesengroßer Hobbyraum / Kinderspielraum und eine Dachterrasse sind im Haus vorhanden und können mitbenützt werden. Zur allgemeinen Benützung steht sowohl ein Indoor-, als auch ein Outdoor-Sportplatz zur Verfügung, eine Waschküche, Fahrrad- und Kinderwagenraum, Dachterrasse, Garten mit Kinderspielplatz und Indoor-Spielplatz.
Energiekennzahlen:
Der Heizwärmebedarf beträgt: 48 kWhm²/a (B).
Lage:
Die gute Lage dieses Objekts gewährleistete eine gute Infrastruktur und Verkehrsanbindung. Geschäfte des täglichen Bedarfs finden Sie in unmittelbarer Umgebung. Die nahe gelegene Alte Donau bietet Erholung und Freizeitmöglichkeiten. Viele Einkaufsmöglichkeiten im nahegelegenen Donauzentrum mit hunderten von Geschäften und Gastrobetrieben. Zum Kirchblütenpark, Erste Bank Arena, Attemsgasse, Donaufelderstraße, Vienna International School, Japanische Schule, Donauzentrum, Donauplex, Segelschule, Sportcenter, Donaucity, Gänsehäufel, Strandbad, Alte Donau etc. sind es nur wenige Gehminuten und es befindet sich alles in der Nähe. Sehr gute Einkaufsmöglichkeiten und gastronomische Versorgung in direkter Wohnumgebung. Die VETMED (Veterinärmedizinische Universität Wien) ist auch zu Fuß sehr schnell zu erreichen.
Öffentliche Verkehrsanbindung:
U-Bahnlinie U1 "Kagran" (wenige Gehminuten) / Straßenbahnlinien 25, 26 / Buslinien 27A
Anreise mit den öffentlichen Verkehrsmitteln:
ab Westbahnhof: U6 in Richtung Floridsdorf bis Floridsdorf, weiter mit der Straßenbahnlinie 26 in Richtung Kagran bis Josef-Baumann-Gasse/Veterinärmedizinische Universität oder weiter mit der Straßenbahnlinie 25 in Richtung Aspern, Oberdorfstraße bis Tokiostraße.
ab Wien Hauptbahnhof: U1 in Richtung Leopoldau bis Kagraner Platz,weiter mit der Straßenbahnlinie 26 in Richtung Strebersdorf bis Veterinärmedizinische Universität / Tokiostraße, oder U1 in Richtung Leopoldau bis Kagran, weiter mit der Buslinie 27A in Richtung Hermann-Gebauer-Straße bis Veterinärmedizinische Universität oder weiter mit der Straßenbahnlinie 25 in Richtung Floridsdorf bis Tokiostraße.
mit Schnellbahnen: S1 (Richtung Gänserndorf), S2 (Richtung Mistelbach), S3 (Richtung Hollabrunn), S15 (Richtung Floridsdorf) bis Floridsdorf, weiter mit der Straßenbahnlinie 26 in Richtung Kagran bis Josef-Baumann-Gasse/Veterinärmedizinische Universität oder weiter mit der Straßenbahnlinie 25 in Richtung Aspern, Oberdorfstraße bis Tokiostraße.
Anreise vom Flughafen Schwechat: ein Bus (Vienna Airport Lines, Postbus) fährt vom Flughafen Wien Schwechat direkt nach Wien Donauzentrum (über Vienna International Center VIC)/U1-Station Kagran (Fahrzeit ca. 40 Minuten). Dann weiter mit der Buslinie 27A in Richtung Hermann-Gebauer-Straße bis Veterinärmedizinische Universität / Tokiostraße.
Konditionen:
Kaufpreis: € 698.000,--
Grunderwerbssteuer: 3,5 % vom KP (Kaufpreis);
Grundbucheintragung: 1,1% vom KP (Möglichkeit auf Befreiung wenn Erstimmobilie und zum dringenden Wohnbedürfnis gekauft wird);
Kaufvertragserrichtungskosten + Notar: Treuhandschaft und Beglaubigungen: i.d.R.: ? % vom KP + 20% MwSt.;
Maklerhonorar: 3 % vom KP + 20 % MwSt.
ev. Pfandrechtseintragungskosten: 1,2% vom KP (Möglichkeit auf Befreiung wenn Erstimmobilie und zum dringenden Wohnbedürfnis gekauft wird);
Laut Auskunft der Hausverwaltung:
Es sind zur Zeit keine größeren Instandhaltungsarbeiten geplant.
Sollten jedoch Fenster nicht reparabel sein, werden diese ausgetauscht.
Für diese Arbeiten werden wir einen Betrag von € 80.000,- in der Vorausschau anführen.
Ein genereller Tausch der Fenster ist nicht vorgesehen.
Die Instandhaltungsrücklage beträgt mit Stichtag (07.10.2025): € 179.700,--.
Dienstleistung für Anleger*innen:
Sie möchten nach Erwerb der Immobilie mit der Vermietung und eventuellen Fragen während des Mietverhältnisses nicht beschäftigt sein?
Wir stehen Ihnen mit einem Dienstleistungskonzept für Anleger*innen zur Verfügung. Gerne übermitteln wir Ihnen bei Bedarf die Unterlagen hierfür.
Finanzierung:
Sie suchen nach einer passenden Finanzierung für dieses Objekt?
Um Ihnen Ihre wertvolle Zeit und Ihr Geld zu sparen, stehen wir Ihnen auch hier tatkräftig zur Seite!
Gerne stehen wir Ihnen für ein unverbindliches und kostenloses Erstberatungsgespräch zur Verfügung.
Wir beraten Sie verlässlich und professionell!
Sparen Sie Ihre kostbare Zeit mit unzähligen Bankterminen.
Kontakt:
Bitte beachten Sie, dass wir aufgrund der Nachweispflicht gegenüber dem Eigentümer nur Anfragen mit vollständiger Angabe der Anschrift bearbeiten können.
Wir senden Ihnen gerne weitere und detaillierte Beschreibungen sowie Besichtigungstermine zu, sobald wir Ihre Anfrage erhalten haben.
Wir bitten Sie daher um eine E-Mail-Anfrage an: office@pr-immobilien.at
Noch nichts gefunden? Wir informieren Sie über geeignete Immobilienangebote noch vor allen anderen.
Legen Sie jetzt Ihren individuellen Suchagenten unter folgendem Link an. Wir schicken Ihnen passende Immobilien exklusiv vorab zu.
Suchagent anlegen [https://pr-immobilien-real-estate.service.immo/registrieren/de] - https://pr-immobilien-real-estate.service.immo/registrieren/de
Der Vermittler ist als Doppelmakler tätig.
Infrastruktur / Entfernungen
Gesundheit
Arzt <500m
Apotheke <500m
Klinik <2.750m
Krankenhaus <2.750m
Kinder & Schulen
Schule <500m
Kindergarten <250m
Universität <750m
Höhere Schule <1.000m
Nahversorgung
Supermarkt <500m
Bäckerei <750m
Einkaufszentrum <750m
Sonstige
Geldautomat <750m
Bank <750m
Post <1.000m
Polizei <750m
Verkehr
Bus <250m
U-Bahn <750m
Straßenbahn <250m
Bahnhof <750m
Autobahnanschluss <2.250m
Angaben Entfernung Luftlinie / Quelle: OpenStreetMap
Die Wohnung ist sehr gut gelegen und sehr gut aufgeteilt.
Im unteren Bereich befindet sich die großzügige Wohnküche, zwei Abstellräume, eine separate Toilette (WC), der Zugang zur unteren Terrasse und der Vorraum mit Sicherheitstür, Garderobenschränken und noch viel mehr Stauraum.
Im oberen Bereich befinden sich ein Badezimmer mit einem zweiten WC, die drei Schlafzimmer und eine weitere hofseitige Loggia (östlich orientiert) mit Zugang von beiden Schlafzimmern aus.
Die Freifläche lädt zum Entspannen und Verweilen ein. Auf den Gängen und im Eingangsbereich der Zimmer sind Wandverbauschränke montiert, die sehr viel Platz anbieten für Ihre Garderobe und Sachen.
Die Küche ist vollwertig und wurde verschönert und neue Geräte adaptiert. Hier gibt es ein Fenster zum Hof zum lüften und auch zum Querlüften ideal. Natürlich gibt es auch einen Dunstabzug und Ventilator in der Küche, Bad und WC.
Ein Kellerabteil wird mitveräußert als Zubehör.
Ein Garagenstellplatz kann bei Bedarf extra hinzu gekauft werden.
Hinweis:
Die Bilder wurden teilweise mit KI verbessert und optimiert.
Ausstattung:
Komplett ausgestattete Küche mit neuen Geräten, drei separat begehbare Schlafzimmer, Badezimmer mit Wanne und Waschmaschinenanschluss, sowie eine Toilette im oberen Bereich. In den Wohnräumen wurde Parkettboden verlegt, die Nassräume wurden verfliest. Eine Waschmaschine befindet sich in der Küche..
Hausanlage:
Ein Lift, Keller, Fahrrad- und Kinderwagenraum, sowie ein riesengroßer Hobbyraum / Kinderspielraum und eine Dachterrasse sind im Haus vorhanden und können mitbenützt werden. Zur allgemeinen Benützung steht sowohl ein Indoor-, als auch ein Outdoor-Sportplatz zur Verfügung, eine Waschküche, Fahrrad- und Kinderwagenraum, Dachterrasse, Garten mit Kinderspielplatz und Indoor-Spielplatz.
Energiekennzahlen:
Der Heizwärmebedarf beträgt: 48 kWhm²/a (B).
Lage:
Die gute Lage dieses Objekts gewährleistete eine gute Infrastruktur und Verkehrsanbindung. Geschäfte des täglichen Bedarfs finden Sie in unmittelbarer Umgebung. Die nahe gelegene Alte Donau bietet Erholung und Freizeitmöglichkeiten. Viele Einkaufsmöglichkeiten im nahegelegenen Donauzentrum mit hunderten von Geschäften und Gastrobetrieben. Zum Kirchblütenpark, Erste Bank Arena, Attemsgasse, Donaufelderstraße, Vienna International School, Japanische Schule, Donauzentrum, Donauplex, Segelschule, Sportcenter, Donaucity, Gänsehäufel, Strandbad, Alte Donau etc. sind es nur wenige Gehminuten und es befindet sich alles in der Nähe. Sehr gute Einkaufsmöglichkeiten und gastronomische Versorgung in direkter Wohnumgebung. Die VETMED (Veterinärmedizinische Universität Wien) ist auch zu Fuß sehr schnell zu erreichen.
Öffentliche Verkehrsanbindung:
U-Bahnlinie U1 "Kagran" (wenige Gehminuten) / Straßenbahnlinien 25, 26 / Buslinien 27A
Anreise mit den öffentlichen Verkehrsmitteln:
ab Westbahnhof: U6 in Richtung Floridsdorf bis Floridsdorf, weiter mit der Straßenbahnlinie 26 in Richtung Kagran bis Josef-Baumann-Gasse/Veterinärmedizinische Universität oder weiter mit der Straßenbahnlinie 25 in Richtung Aspern, Oberdorfstraße bis Tokiostraße.
ab Wien Hauptbahnhof: U1 in Richtung Leopoldau bis Kagraner Platz,weiter mit der Straßenbahnlinie 26 in Richtung Strebersdorf bis Veterinärmedizinische Universität / Tokiostraße, oder U1 in Richtung Leopoldau bis Kagran, weiter mit der Buslinie 27A in Richtung Hermann-Gebauer-Straße bis Veterinärmedizinische Universität oder weiter mit der Straßenbahnlinie 25 in Richtung Floridsdorf bis Tokiostraße.
mit Schnellbahnen: S1 (Richtung Gänserndorf), S2 (Richtung Mistelbach), S3 (Richtung Hollabrunn), S15 (Richtung Floridsdorf) bis Floridsdorf, weiter mit der Straßenbahnlinie 26 in Richtung Kagran bis Josef-Baumann-Gasse/Veterinärmedizinische Universität oder weiter mit der Straßenbahnlinie 25 in Richtung Aspern, Oberdorfstraße bis Tokiostraße.
Anreise vom Flughafen Schwechat: ein Bus (Vienna Airport Lines, Postbus) fährt vom Flughafen Wien Schwechat direkt nach Wien Donauzentrum (über Vienna International Center VIC)/U1-Station Kagran (Fahrzeit ca. 40 Minuten). Dann weiter mit der Buslinie 27A in Richtung Hermann-Gebauer-Straße bis Veterinärmedizinische Universität / Tokiostraße.
Konditionen:
Kaufpreis: € 698.000,--
Grunderwerbssteuer: 3,5 % vom KP (Kaufpreis);
Grundbucheintragung: 1,1% vom KP (Möglichkeit auf Befreiung wenn Erstimmobilie und zum dringenden Wohnbedürfnis gekauft wird);
Kaufvertragserrichtungskosten + Notar: Treuhandschaft und Beglaubigungen: i.d.R.: ? % vom KP + 20% MwSt.;
Maklerhonorar: 3 % vom KP + 20 % MwSt.
ev. Pfandrechtseintragungskosten: 1,2% vom KP (Möglichkeit auf Befreiung wenn Erstimmobilie und zum dringenden Wohnbedürfnis gekauft wird);
Laut Auskunft der Hausverwaltung:
Es sind zur Zeit keine größeren Instandhaltungsarbeiten geplant.
Sollten jedoch Fenster nicht reparabel sein, werden diese ausgetauscht.
Für diese Arbeiten werden wir einen Betrag von € 80.000,- in der Vorausschau anführen.
Ein genereller Tausch der Fenster ist nicht vorgesehen.
Die Instandhaltungsrücklage beträgt mit Stichtag (07.10.2025): € 179.700,--.
Dienstleistung für Anleger*innen:
Sie möchten nach Erwerb der Immobilie mit der Vermietung und eventuellen Fragen während des Mietverhältnisses nicht beschäftigt sein?
Wir stehen Ihnen mit einem Dienstleistungskonzept für Anleger*innen zur Verfügung. Gerne übermitteln wir Ihnen bei Bedarf die Unterlagen hierfür.
Finanzierung:
Sie suchen nach einer passenden Finanzierung für dieses Objekt?
Um Ihnen Ihre wertvolle Zeit und Ihr Geld zu sparen, stehen wir Ihnen auch hier tatkräftig zur Seite!
Gerne stehen wir Ihnen für ein unverbindliches und kostenloses Erstberatungsgespräch zur Verfügung.
Wir beraten Sie verlässlich und professionell!
Sparen Sie Ihre kostbare Zeit mit unzähligen Bankterminen.
Kontakt:
Bitte beachten Sie, dass wir aufgrund der Nachweispflicht gegenüber dem Eigentümer nur Anfragen mit vollständiger Angabe der Anschrift bearbeiten können.
Wir senden Ihnen gerne weitere und detaillierte Beschreibungen sowie Besichtigungstermine zu, sobald wir Ihre Anfrage erhalten haben.
Wir bitten Sie daher um eine E-Mail-Anfrage an: office@pr-immobilien.at
Noch nichts gefunden? Wir informieren Sie über geeignete Immobilienangebote noch vor allen anderen.
Legen Sie jetzt Ihren individuellen Suchagenten unter folgendem Link an. Wir schicken Ihnen passende Immobilien exklusiv vorab zu.
Suchagent anlegen [https://pr-immobilien-real-estate.service.immo/registrieren/de] - https://pr-immobilien-real-estate.service.immo/registrieren/de
Der Vermittler ist als Doppelmakler tätig.
Infrastruktur / Entfernungen
Gesundheit
Arzt <500m
Apotheke <500m
Klinik <2.750m
Krankenhaus <2.750m
Kinder & Schulen
Schule <500m
Kindergarten <250m
Universität <750m
Höhere Schule <1.000m
Nahversorgung
Supermarkt <500m
Bäckerei <750m
Einkaufszentrum <750m
Sonstige
Geldautomat <750m
Bank <750m
Post <1.000m
Polizei <750m
Verkehr
Bus <250m
U-Bahn <750m
Straßenbahn <250m
Bahnhof <750m
Autobahnanschluss <2.250m
Angaben Entfernung Luftlinie / Quelle: OpenStreetMap
Merkmale
- 5. Geschoss
- offene Küche
- Personenaufzug, Lastenaufzug
- Gäste-WC
- Garten
- Badewanne
- WG-geeignet
- Waschraum
Grundrisse
Grundrisse
1 / 4
Realisiere Dein Projekt
Bausubstanz und Energie
Heizwärmebedarf (HWB)
C
Gesamtenergieeffizienz (fGEE)
C
- Baujahr2004
- Zustand der ImmobilieNeubau
- EnergieträgerFernwärme
Preisdetails
Kaufpreis
699000 €699.000 €
6.721,15 €/m²
Provision für Käufer
3% des Kaufpreises zzgl. 20% USt.
Lage

Tokiostraße, Wien (1220)
Vienna International School (VIS) / Donauzentrum - U1 - Kagran / Japanese School / Kirschblütenpark / ERSTE BANK EIS ARENA / ALTE DONAU
Weitere Informationen
Sonstiges
WICHTIGE HINWEISE:Die Angaben erfolgen aufgrund der Informationen und Unterlagen, die uns vom Eigentümer und/oder Dritten zur Verfügung gestellt werden und sind ohne Gewähr. Im Übrigen gelten die allgemeinen Geschäftsbedingungen sowie die Verordnung des BM für wirtschaftliche Angelegenheiten über Standes- und Ausübungsregeln für Immobilienmakler, BGBl 297/96. Insbesondere gelten die Bestimmungen § 10 und § 15 der IMV - 297/1996 + 2010/58 BGBI. als vereinbart. Wir weisen auf unsere Eigenschaft als Doppelmakler hin. Weitere Informationen und alle Objekte finden Sie unter: www.pr-immobilien.at [http://www.erkoimmobilien.at/]
Stichworte
Tiefgarage vorhanden, Ost-West-Balkon/Terrasse, UMTS Empfang, Fahrradraum, Nutzfläche: 122,32 m², Freifläche: 18,64 m², Anzahl der Badezimmer: 1, Anzahl der separaten WCs: 2, Anzahl Loggias: 2, Balkon-Terrassen-Fläche: 18,64 m², Bundesland: Wien, modernisiert: 2024, modernisiert
TV: Kabelanschluss, DVBT
Sonstiges/Wohnen: seniorengerechtes Wohnen
Sonstiges: Neubaustandard
Weitere Services
Lust auf eine Besichtigung?
Eine Frage zur Immobilie?
Über den Anbieter
PR - Immobilien - Paunovic RadisaMaklerbüro
Rudolf-Zeller-Gasse 50-52, 1230 WIEN
3 Jahre Partnerschaft
Herr Radisa PaunovicDein Kontakt
Online-ID: 2mgb259
Referenznummer: OBGC2025103110290826296ff182408

PR - Immobilien - Paunovic Radisa
5/5Bewertung: 5 von 5 Sternen
Wie zufrieden bist du mit dieser Seite (nicht mit der Immobilie selbst)?