Version: 8.25.1Navigation überspringen
549.000 €
845 m² Lagerfläche
Immowelt logo

Halle/Industriefläche zum Kauf
549000 €
845 m² Lagerfläche

Begehrte Lage mit viel Potential: Gewerbefläche in Hamm zu verkaufen.

Das Gewerbegrundstück in der Östingstraße 38 in Hamm bietet eine vielseitige Nutzungsmöglichkeit und überzeugt durch seine hervorragende Lage in einem etablierten Gewerbegebiet. Die großzügige Gewerbefläche umfasst mehrere Lager- und Verkaufshallen, Büroeinheiten sowie zwei Wohneinheiten auf dem Grundstück, wodurch eine flexible Nutzung für unterschiedliche Geschäftszwecke ermöglicht wird.

Ein besonderes Highlight ist die direkte Lage gegenüber eines großen Baumarktes, die eine hohe Sichtbarkeit und eine starke Kundenfrequenz garantiert. Dies bietet insbesondere Unternehmen im Handel, Handwerk oder der Dienstleistungsbranche ideale Voraussetzungen für eine erfolgreiche Geschäftsentwicklung. Die großflächigen Lager- und Verkaufshallen bieten ausreichend Platz für Warenlagerung, Produktion oder Verkaufsflächen, während die vorhandenen Büroeinheiten moderne Arbeitsräume für Verwaltung und Organisation bereitstellen. Die zwei Wohneinheiten auf dem Grundstück ermöglichen zudem eine Nutzung für Betriebsinhaber oder Mitarbeiter, wodurch kurze Wege und eine hohe Flexibilität gewährleistet sind.

Dank der optimalen Anbindung an das überregionale Verkehrsnetz - mit schnellen Verbindungen zur A1 und A2 sowie zur B63 - ist der Standort sowohl für den Lieferverkehr als auch für Kunden und Mitarbeiter gut erreichbar. In unmittelbarer Umgebung haben sich bereits zahlreiche Gewerbebetriebe angesiedelt, was zusätzliche Synergieeffekte und eine hohe Attraktivität für Geschäftskunden schafft.

Insgesamt bietet dieses Gewerbeobjekt eine einzigartige Kombination aus vielseitigen Nutzungsmöglichkeiten, einer hervorragenden Sichtlage und einer optimalen Infrastruktur - eine ideale Gelegenheit für Unternehmen, die auf der Suche nach einem gut angebundenen und frequenzstarken Standort sind.

Merkmale

  • vermietet
  • Kein Keller

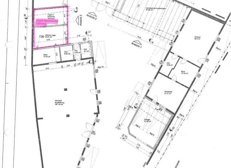
Grundrisse

Grundrisse
1 / 1

Realisiere Dein Projekt

Bausubstanz und Energie

Möchtest du Details zum Energieverbrauch?info_energy_calculation-icon
  • Baujahr2005
  • EnergieträgerGas
Immowelt logo

Preisdetails

Kaufpreis
549000 €
Provision für Käufer
3.57 inkl. MwSt.
Geschätzte Gesamtkosten
549.000 €1
Kaufpreis
549.000 €
1Der angezeigte Wert ist eine automatisch berechnete Schätzung von immowelt.

Lage

address-icon
östingstraße 38LohauserholzHamm (59063)
Das Gewerbegrundstück in der Östingstraße 38 in Hamm besticht durch seine strategisch günstige Lage in einem etablierten Gewerbegebiet mit hervorragender Infrastruktur. Es liegt direkt gegenüber eines großen Baumarktes, der täglich viele Kunden anzieht. Die zentrale Anbindung an das regionale und überregionale Verkehrsnetz macht den Standort besonders attraktiv für Unternehmen verschiedener Branchen.

Die Autobahnen A1 und A2 sind in wenigen Fahrminuten erreichbar und bieten eine optimale Verbindung in Richtung Ruhrgebiet, Münsterland sowie in den Süden und Norden Deutschlands. Zudem sorgt die nahegelegene B63 für eine schnelle Erreichbarkeit des Stadtzentrums von Hamm und der umliegenden Wirtschaftszentren. Der Hauptbahnhof Hamm als wichtiger Knotenpunkt für den Güter- und Personenverkehr liegt nur wenige Kilometer entfernt und ermöglicht eine flexible Logistik- und Pendleranbindung.

Neben der ausgezeichneten Verkehrsanbindung profitieren Unternehmen von einer gut ausgebauten Infrastruktur mit diversen Dienstleistungs- und Versorgungsmöglichkeiten in der Umgebung. Zahlreiche Gewerbe- und Industrieunternehmen haben sich bereits in der Nähe angesiedelt, was Synergieeffekte und Netzwerkmöglichkeiten schafft.

Das Grundstück selbst bietet großzügige Flächen für verschiedene Nutzungskonzepte, sei es für Produktion, Lager, Logistik oder Bürogebäude. Durch die flexible Nutzungsmöglichkeit ist die Östingstraße 38 ein idealer Standort für Unternehmen, die von einer verkehrsgünstigen und wirtschaftsstarken Lage profitieren möchten.

Weitere Informationen

Sonstiges Haben wir Ihr Interesse geweckt - Ihnen gefällt das Objekt?

Zögern Sie nicht und melden Sie sich bei uns - sehr gerne stehen wir bei Fragen und Wünschen, sowie für weitere Informationen rund um das Angebot zur Verfügung.

Sie haben Fragen oder wünschen einen Besichtigungstermin?

Ihr Ansprechpartner:

Jan Lange

Tel: 0231 / 3981970

E- Mail: j.lange@immoweb.de

Wir freuen uns über Ihren Anruf und Ihren Besuch unserer Internetseite www.immoweb.de

Die Erstellung eines Energieausweises wurde beauftragt und dieses Exposé wird umgehend nach Fertigstellung des Energieausweises überarbeitet. Der Ausweis wird Ihnen spätestens bei einer Besichtigung übergeben.

Die in diesem Exposé gemachten Angaben beruhen auf Auskünften des Eigentümers oder vorgelegten Plänen und Berechnungen. Wir übernehmen daher keine Haftung, insbesondere für Flächenangaben, Grundrisse oder Lageskizzen. Stichworte Garage vorhanden, Stellplatz vorhanden, Lagerfläche: 845,00 m², Gesamtfläche: 1.235,00 m², Lage im Gewerbegebiet

Weitere Services

Lust auf eine Besichtigung?
Eine Frage zur Immobilie?
Nachricht hinzufügen
Mit der Nutzung der oben angegebenen Telefonnummer oder durch Klicken auf „Kontaktieren“ akzeptierst Du die Allgemeinen Nutzungsbedingungen, denen Du jederzeit widersprechen kannst. Weitere Informationen zum Datenschutz

Über den Anbieter

Dortmunder Str. 5, 44536 Lünen
partner badge
6 Jahre Partnerschaft
Herr Jan LangeDein Kontakt
Online-ID: 25Q2NFC6U4PX
Referenznummer: 7754
Immoweb AG
Immoweb AG
Bewertung: 4,2 von 5 Sternen
Nachricht hinzufügen
Mit der Nutzung der oben angegebenen Telefonnummer oder durch Klicken auf „Kontaktieren“ akzeptierst Du die Allgemeinen Nutzungsbedingungen, denen Du jederzeit widersprechen kannst. Weitere Informationen zum Datenschutz
Wie zufrieden bist du mit dieser Seite (nicht mit der Immobilie selbst)?