

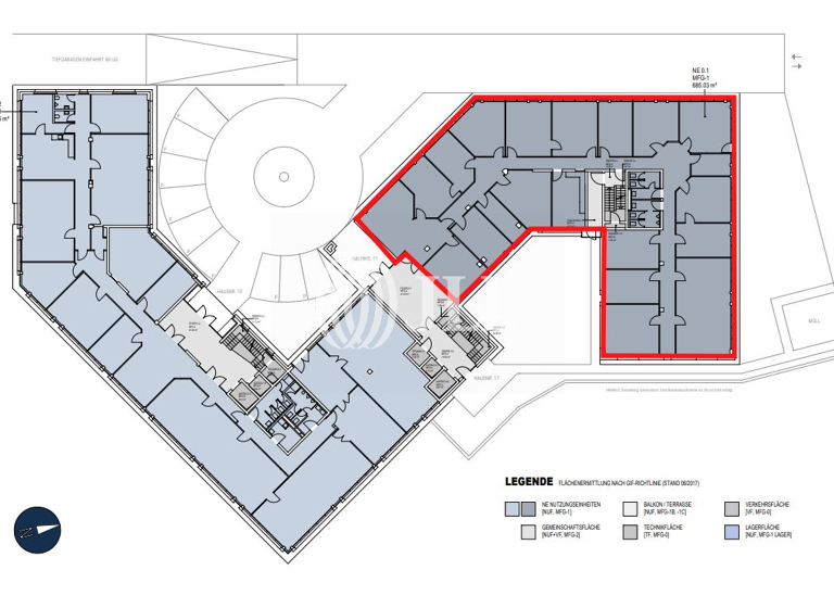
Bürofläche zur Miete • provisionsfrei11,50 €/m²709,1 m² Bürofläche • teilbar ab 709 m²
11,50 €
/m²
709,1 m² Bürofläche • teilbar ab 709 m²
Büroflächen + provisionsfrei - JLL
Merkmale
- Bezug: Sofort
- TeekĂĽche
- Personenaufzug
- 24 Stellplätze: 24 Außen-Stellplätze
- Kantine
Grundrisse
Grundrisse
1 / 1
Realisiere Dein Projekt
Bausubstanz und Energie
Energieausweis
Endenergieverbrauch (Wärme)
Endenergieverbrauch (Strom)
- Baujahr1987
- EnergieträgerGas
Mietkosten
Monatliche Miete
11,50 €/m²
Provision fĂĽr Mieter
provisionsfrei; provisionsfrei für den Mieter/Käufer
Kaution
keine Angabe
Weitere Preisinformationen
24 Stellplätze
Lage

Vaihingen, Stuttgart (70563)
Der Anbieter hat die genaue Adresse nicht freigegeben
Weitere Informationen
Weitere Services
Lust auf eine Besichtigung?
Eine Frage zur Immobilie?
Ăśber den Anbieter
Kleiner SchloĂźplatz 13, 70173 Stuttgart
Partnerschaft
Herr Peter GentDein Kontakt
Online-ID: 2n2ux57
Referenznummer: 4@of2554@14@0

Jones Lang LaSalle SE - Office Leasing Stuttgart
Wie zufrieden bist du mit dieser Seite (nicht mit der Immobilie selbst)?

