

Wohnung zur Miete920 €3 Zimmer • 72 m² • Geschoss 1/2 • frei ab sofort
920 €
3 Zimmer • 72 m² • Geschoss 1/2 • frei ab sofort
Entspanntes Erlangen West! 3-Zi. WohlfĂĽhl-Wohnung mit Balkon&EBK!
Merkmale
- frei ab sofort
- 1. Geschoss/2 Geschossen
- EinbaukĂĽche
- Keller (gesamt 5 m²)
- 1 WC
- Balkon (gesamt 8 m²)
- Fernblick
- Badezimmer: Badewanne
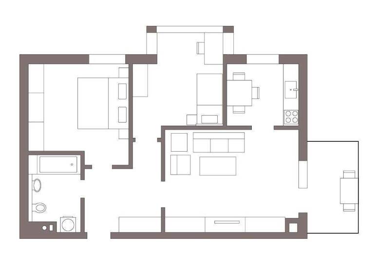
Grundrisse
Grundrisse
1 / 1
Realisiere Dein Projekt
Bausubstanz und Energie
Energieausweis
C
- Baujahr1999
- Letzte Modernisierung2026
- HeizungsartZentralheizung
- EnergieträgerGas
Mietkosten
Warmmiete
1.100 €
Kaltmiete
12,78 €/m²
920 €
Nebenkosten
100 €
Heizkosten
nicht in Nebenkosten enthalten
80 €
Zusätzliche Kosten
Miete pro Stellplatz
60 €
Kaution
2760 €
Lage

Büchenbach, Erlangen (91056)
Der Anbieter hat die genaue Adresse nicht freigegeben
Weitere Informationen
Weitere Services
Lust auf eine Besichtigung?
Eine Frage zur Immobilie?
Ăśber den Anbieter
Böller Immobilien e.K.Maklerbüro
Bindergasse 16, 90403 NĂĽrnberg
10 Jahre Partnerschaft

Böller Immobilien TeamDein Kontakt
Online-ID: 2nkkq5n
Referenznummer: 1827


Böller Immobilien e.K.
Bewertung: 4 von 5 Sternen
Wie zufrieden bist du mit dieser Seite (nicht mit der Immobilie selbst)?

