




Villa zum Kauf3400000 €9.884 €/m²8 Zimmer • 344 m² • 870 m² Grundstück
3400000 €
9.884 €/m²
8 Zimmer • 344 m² • 870 m² Grundstück
Sie werden sich verlieben - versprochen!
Merkmale
- 870 m² Grundstück
- Einbauküche, offene Küche
- Keller
- 2 Stellplätze: Garage, Außen-Stellplatz
- Gäste-WC
- Garten
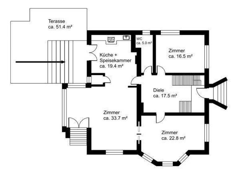
Grundrisse
Grundrisse
1 / 5
Realisiere Dein Projekt
Bausubstanz und Energie
Energieausweis
- Baujahr1913
- Zustand der ImmobilieMassivhaus
- EnergieträgerGas
Preisdetails
Kaufpreis
3400000 €
9.883,72 €/m²
Provision für Käufer
Käuferprovision beträgt 3,57 % (inkl. MwSt.) des beurkundeten Kaufpreises
Weitere Preisinformationen
1 Stellplatz
1 Garagenstellplatz
1 Garagenstellplatz
Geschätzte Gesamtkosten
3.776.380 €1
Kaufpreis
3.400.000 €
Kaufnebenkosten
376.380 €
2Notarkosten (1,5%)
51.000 €
Grunderwerbsteuer (5,5%)
187.000 €
Provision für Käufer (3,57%)
121.380 €
Grundbucheintrag (0,5%)
17.000 €
1Der angezeigte Wert ist eine automatisch berechnete Schätzung von immowelt.
2Bei den Angaben handelt es sich um ortsübliche Werte. Individuelle Kosten können abweichen.
Lage

Fuhlsbüttel, Hamburg (22335)
Der Anbieter hat die genaue Adresse nicht freigegeben
Weitere Informationen
Weitere Services
Lust auf eine Besichtigung?
Eine Frage zur Immobilie?
Über den Anbieter
Poppenbütteler Weg 191a, 22399 Hamburg
Partnerschaft
VON POLL IMMOBILIEN Shop Hamburg-AlstertalDein Kontakt
Online-ID: 254DLGFGB91Z
Referenznummer: 25 101 036

VON POLL IMMOBILIEN Hamburg-Alstertal - Sandra Husemann
Wie zufrieden bist du mit dieser Seite (nicht mit der Immobilie selbst)?

