Version: 8.26.0Navigation überspringen
Deutsche Bank Immobilien GmbH
550 €
60 m² Bürofläche

Büro zur Miete • provisionsfrei
550 €
60 m² Bürofläche

Kleine Büroeinheit mit Empfangsbereich

In gut sichtbarer Lage von Weilerswist haben wir in einer Büroetage eine sehr schöne Büroeinheit bestehend aus einem Empfangsbereich und 2 Büros zu vermieten. Der gesamte Bürotrakt hat ca. 60m² zuzüglich ca. 12m² allgemeiner Fläche. Diese Einheit ist ideal für einen Rechtsanwalt, Steuerberater oder ein kleines Unternehmen geeignet! Die Miete inkl. pauschalisierten Nebenkosten beträgt monatlich lediglich € 785,00 zuzüglich MwSt. Auf der Büroetage gibt es zudem noch ein gemeinschaftliches Damen - und ein Herren - WC, sowie ein Vorratsraum/Küche. Die Büroetage ist in einem Geschäftshaus im Gewerbegebiet nahe der BAB - Anschlußstelle. Im Erdgeschoß befinden sich Einzelhandelsflächen und im Obergeschoß mehrere Büroeinheiten. Die über 30 Kfz Stellplätze stehen den Mietern gemeinschaftlich zur Verfügung.

Merkmale

  • frei ab sofort
  • Teeküche
- 60m² Bürofläche zzgl. 12m² Gemeinschaftsfläche
- 550,00€ Kaltmiete zzgl. MwSt
- 235,00€ pauschale Nebenkosten zzgl. MwSt inkl. Strom, Wasser, Heizung, etc.
- verbrauchsbasierter Energieausweis/ Kennwert 95,7
- Baujahr ca.1992
-Gemeinschaftstoiletten für alle Büros
- Reinigung im Haus nach Absprache
- Winterdienst in den Nebenkosten incl.
- Staffelmiete
- 1. Jahr fest
- 5% Erhöhung jedes Jahr
- Kündigungsfrist 3 Monate
- 2 fach verglasteFenster
- alle Mietpreise sind Nettomieten

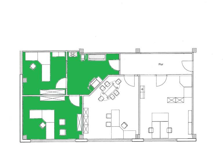
Grundrisse

Grundrisse
1 / 1

Bausubstanz und Energie

Energieausweis

Endenergieverbrauch (Wärme)

Endenergieverbrauch (Strom)

  • Baujahr1992
  • EnergieträgerGas

Mietkosten

Warmmiete
785 €
Nettomiete
550 €
Nebenkosten
235 €
Heizkosten
in Warmmiete enthalten
Provision für Mieter
provisionsfrei; prov.frei
Kaution
1100 €
Weitere Preisinformationen
Nettokaltmiete: 550,00 EUR

Lage

address-icon
Weilerswist (53919)
Der Anbieter hat die genaue Adresse nicht freigegeben
Weilerswist ist eine Gemeinde im Kreis Euskirchen in Nordrhein-Westfalen. Weilerswist liegt im nördlichen Teil des Kreises Euskirchen, grenzt im Norden an die Stadt Brühl und die Stadt Erftstadt, im Süden an die Stadt Euskirchen, im Westen an die Stadt Zülpich und im Osten an die Stadt Bornheim und die Gemeinde Swisttal.

Weitere Informationen

Sonstiges Rechtlicher Hinweis auf den Urheber des Exposés
Mirco Borchers
Selbstständiger Immobilienberater
Kölnstraße 54 53909 Zülpich
E-Mail: mirco.borchers@db.com
Telefon: 0179 2680245

Aufsichtsbehörde: Kreisverwaltung Euskirchen
Internet: https://www.kreis-euskirchen.de
Anschrift: Jülicher Ring 32, 53879 Euskirchen Stichworte Nutzfläche: 12,00 m², Gesamtfläche: 72,00 m², Bundesland: Nordrhein-Westfalen

Weitere Services

Lust auf eine Besichtigung?
Eine Frage zur Immobilie?
Mit einer persönlichen Nachricht hast du bessere Chancen auf eine Antwort.
Mit der Nutzung der oben angegebenen Telefonnummer oder durch Klicken auf „Kontaktieren“ akzeptierst Du die Allgemeinen Nutzungsbedingungen, denen Du jederzeit widersprechen kannst. Weitere Informationen zum Datenschutz

Über den Anbieter

Lubahnstraße 2, 31789 Hameln
partner badge
Partnerschaft
Herr Mirco BorchersDein Kontakt
Online-ID: 25BUPFQI6YTC
Referenznummer: 42530105-117608
Wie zufrieden bist du mit dieser Seite (nicht mit der Immobilie selbst)?