Version: 8.25.1Navigation überspringen
149.990 €
6 Zimmer  •  183 m²  •  954 m² Grundstück
Immowelt logo

Einfamilienhaus zum Kauf
149990 €
820 €/m²
6 Zimmer  •  183 m²  •  954 m² Grundstück

Idyllisch gelegenes Haus für die ganze Familie mit Garagen und KfZ-Montage-Bereich - jetzt zugreifen!

Das ursprünglich in den 1930er-Jahren errichtete Wohnhaus erstreckt sich über zwei Wohngeschosse und ist voll unterkellert (inklusive Garage).

Der Anbau des rechten Gebäudeteils erfolgte um 1976.

Die Fläche der beiden Wohnetagen bemisst sich aktuell zusammen auf über 180 m².

Zum Anwesen gehört die im benachbarten Nebengebäude zu findende große Garage mit Platz für bis zu 3 PKWs, die in der Vergangenheit als kleine KFZ-Montagehalle genutzt wurde und noch heute mit einer Installations-Grube sowie der Möglichkeit zum Wiedereinbau einer Hebebühne (ausreichende Raumhöhe) beste Voraussetzungen für die Wiederaufnahme der ehemaligen Nutzung bietet.

Merkmale

  • Bezug: sofort
  • 954 m² Grundstück
  • Keller
  • 3 Stellplätze: 3 Garagen
  • Kabelanschluss
Zustand und Ausstattung der Räumlichkeiten ist mit einem normalem Abnutzungsgrad der letzten, langjährigen Bewohnung der Alteigentümer zu bezeichnen.

Die Raumaufteilung ist teils sehr großzügig.

Sanierungen/ Modernisierungen am und im Haus wurden vorwiegend in den 1990er Jahren sowie zum Teil fortlaufend durchgeführt.

Die Käufer/ neuen Eigentümer haben das Haus nach eigenen Vorstellungen in umfassendem Rahmen zu renovieren, zum Teil auch zu modernisieren.

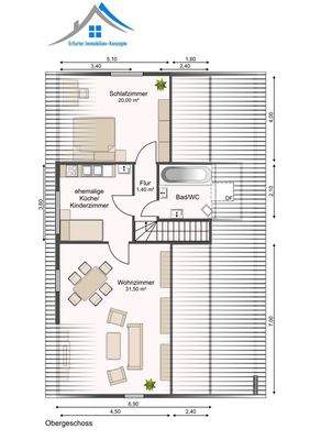
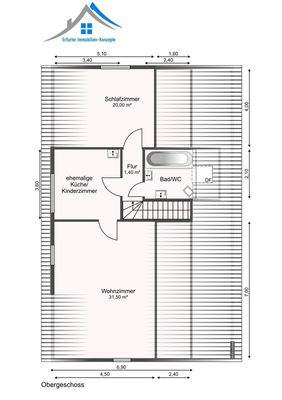
Grundrisse

Grundrisse
1 / 4

Realisiere Dein Projekt

Bausubstanz und Energie

Energieausweis

E
  • Baujahr1935
  • Zustand der Immobilierenovierungsbedürftig / sanierungsbedürftig
  • HeizungsartZentralheizung
  • EnergieträgerÖl
Immowelt logo

Preisdetails

Kaufpreis
149990 €
819,62 €/m²
Provision für Käufer
3,57 % inkl. der gesetzl. MwSt.
Weitere Preisinformationen
3 Garagenstellplätze
Geschätzte Gesamtkosten
165.845 €1
Kaufpreis
149.990 €
Notarkosten (1,5%)
2.250 €
Grunderwerbsteuer (5%)
7.500 €
Provision für Käufer (3,57%)
5.355 €
Grundbucheintrag (0,5%)
750 €
1Der angezeigte Wert ist eine automatisch berechnete Schätzung von immowelt.
2Bei den Angaben handelt es sich um ortsübliche Werte. Individuelle Kosten können abweichen.

Lage

address-icon
Wasungen/ Wahns (98634)
Der Anbieter hat die genaue Adresse nicht freigegeben
Das Anwesen befindet sich in Wahns, einem Ortsteil von Wasungen, unweit der Kreisstadt Meiningen, an der durch den Ort führenden Hauptstraße.

Das Grundstück ist hanglagig und bietet vom oberen Grundstücksteil einen herrlichen Blick über die Dächer des Ortes bis weit in die idyllische Landschaft hinein.

Weitere Informationen

Sonstiges Bitte nutzen Sie auch die Möglichkeit unseres virtuellen 360°-Rundganges durch das Gebäude, um sich einen ersten Eindruck von dem Anwesen verschaffen zu können - fordern Sie diesen einfach bei uns an!

Sie erreichen uns per Mail unter info@erfurter-immo.de oder telefonisch unter 01590 4030988.

Bei mehreren Kaufinteressenten behält sich der Verkäufer die Veräußerung der Immobilie in einem einfachen Bieterverfahren zu einem Mindestgebot von 149.990,00 € vor. Stichworte Nutzfläche: 90,00 m², Anzahl der Schlafzimmer: 2, Anzahl der Badezimmer: 2, Anzahl der separaten WCs: 1, 2 Etagen

Weitere Services

Lust auf eine Besichtigung?
Eine Frage zur Immobilie?
Nachricht hinzufügen
Mit der Nutzung der oben angegebenen Telefonnummer oder durch Klicken auf „Kontaktieren“ akzeptierst Du die Allgemeinen Nutzungsbedingungen, denen Du jederzeit widersprechen kannst. Weitere Informationen zum Datenschutz

Über den Anbieter

Im Rosenthal 6, 99090 Erfurt
Herr Ron SeidlerDein Kontakt
Online-ID: 25T3FUJJV831
Referenznummer: RS-2026-19
Erfurter Immobilien-Konzepte/Torsten Erfurth
Erfurter Immobilien-Konzepte/Torsten Erfurth
Bewertung: 4,8 von 5 Sternen
Nachricht hinzufügen
Mit der Nutzung der oben angegebenen Telefonnummer oder durch Klicken auf „Kontaktieren“ akzeptierst Du die Allgemeinen Nutzungsbedingungen, denen Du jederzeit widersprechen kannst. Weitere Informationen zum Datenschutz
Wie zufrieden bist du mit dieser Seite (nicht mit der Immobilie selbst)?