Version: 8.24.0Navigation ĂĽberspringen
599.000 €
665 m²  â€˘  1.774 m² GrundstĂĽck
Immowelt logo

Haus zum Kauf
599000 €
901 €/m²
665 m²  â€˘  1.774 m² GrundstĂĽck

Wohn- und Geschäftshaus mit Entwicklungspotenzial in Toplage auf Rügen zu verkaufen!

Zum Verkauf steht ein vielseitig nutzbares Wohn- und Geschäftshaus im Herzen der Gemeinde Samtens auf der beliebten Ferieninsel Rügen. Das ca. 1.774 m² große Grundstück beherbergt ein Vorderhaus (Bj. 1978) mit Sanierungsbedarf sowie ein Hinterhaus (Bj. 1984), das ursprünglich als Bürokomplex erbaut wurde. Im Laufe der Jahre wurde das hintere Gebäude umgebaut. Es entstanden weitere Ferienwohnungen, Gästezimmer sowie weiterer Wohnraum. Die gesamte Wohn- und Nutzfläche von ca. 665 m² eignet sich ideal für Investoren, Projektentwickler, Eigennutzer oder Unternehmer, die Wohn- und Gewerbenutzung kombinieren möchten.

• Immobilienart: Wohn- und Geschäftshaus (Mischgebiet)
• Grundstücksfläche: ca. 1.774 m²
• Wohn- und Nutzfläche gesamt: ca. 665 m²

• Bauweise:
- Vorderhaus: Baujahr 1978, sanierungsbedĂĽrftig
- Hinterhaus: Baujahr 1984, als BĂĽrokomplex errichtet, teilsaniert

• Heizung: Zentralheizung über stabilen Viessmann-Kessel

• Anschlüsse:
- Strom, Wasser, Telefon etc. im Gebäude vorhanden
- Abwasserleitung am GrundstĂĽck, aktuell ĂĽber Sammelgrube mit Bestandsschutz

• Bebauung: Vorder- und Hinterhaus, mit separaten Nutzungsmöglichkeiten

Merkmale

  • 1.774 m² GrundstĂĽck
• Vorderhaus:
- Ehemalige Wohn- und/oder Gewerberäume
- SanierungsbedĂĽrftiger Zustand, Ausbaupotenzial vorhanden

• Hinterhaus:
- Ursprünglich als Bürokomplex gebaut und umgestaltet in Gästezimmer und Ferienwohnungen.
- Teilsaniert, nutzbar als BĂĽro, Praxis, Wohneinheiten etc.
- Großzügige, helle Räume, flexible Raumgestaltung

• Allgemein:
- Grundstück bietet Parkmöglichkeiten und Platzreserven
- Heizungsanlage betriebsbereit
- Gemischte Nutzung möglich (Gewerbe + Wohnen)

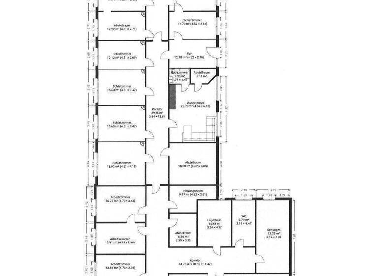
Grundrisse

Grundrisse
1 / 2

Realisiere Dein Projekt

Bausubstanz und Energie

Energieausweis

D
  • Baujahr1978/1984
  • HeizungsartZentralheizung
  • EnergieträgerGas
Immowelt logo

Preisdetails

Kaufpreis
599000 €
900,75 €/m²
Provision für Käufer
3,57 % inkl. 19 % MwSt
Geschätzte Gesamtkosten
668.304 €1
Kaufpreis
599.000 €
Notarkosten (1,5%)
8.985 €
Grunderwerbsteuer (6%)
35.940 €
Provision für Käufer (3,57%)
21.384 €
Grundbucheintrag (0,5%)
2.995 €
1Der angezeigte Wert ist eine automatisch berechnete Schätzung von immowelt.
2Bei den Angaben handelt es sich um ortsübliche Werte. Individuelle Kosten können abweichen.

Lage

address-icon
Plüggentiner Straße, Samtens (18573)
Die Immobilie befindet sich in zentraler Lage der Gemeinde Samtens, einem infrastrukturell gut erschlossenen Ort auf Rügen, der größten Insel Deutschlands.
• Zentrale Insellage – optimal erreichbar über B96 und Bahn
• Bahnhof Samtens fußläufig erreichbar
• Einkaufsmöglichkeiten, Schule, Kita, Ärzte, Sportanlagen etc. vor Ort
• Gute Sichtbarkeit für gewerbliche Nutzung – dennoch ruhige Wohnlage

Weitere Informationen

Wirtschaftlichkeit & Potenzial • Kaufpreis: 599.000,00 €

• Bemerkung:
Das Objekt bietet erhebliches Entwicklungspotenzial für Wohnen, Vermietung oder gewerbliche Nutzung. Der Kaufpreis schafft Spielraum für Investitionen und Umnutzung – sei es als Mehrfamilienhaus, gemischt genutztes Objekt oder Gewerbestandort mit Wohnanteil.

• Bei Teilvermietung oder Projektentwicklung sind lukrative Renditen realisierbar. Gern unterstützen wir bei der Konzeptfindung. Besonderheiten • Großzügiges Grundstück mit zwei Gebäudeteilen
• Mischgebiet mit vielseitiger Nutzungserlaubnis
• Teilsaniertes Hinterhaus bereits nutzbar
• Sanierungsfähiges Vorderhaus mit Ausbaupotenzial
• Öffentliche Erschließung vorhanden (außer Abwasser, derzeit über Sammelgrube mit Bestandsschutz)
• Stabile Heizungsanlage (Viessmann)
• Standortvorteil: zentral auf Rügen gelegen

Neugierig geworden? Dann schnell eine Mail an: info@idea-immobilien.de

Wir freuen uns, Ihnen dieses Objekt persönlich zeigen zu dürfen!

Alle Angaben stammen vom Eigentümer. Für deren Richtigkeit und Vollständigkeit übernehmen wir keine Gewähr. Änderungen, Irrtümer und Zwischenverkauf bleiben vorbehalten.

Weitere Services

Lust auf eine Besichtigung?
Eine Frage zur Immobilie?
Nachricht hinzufĂĽgen
Mit der Nutzung der oben angegebenen Telefonnummer oder durch Klicken auf „Kontaktieren“ akzeptierst Du die Allgemeinen Nutzungsbedingungen, denen Du jederzeit widersprechen kannst. Weitere Informationen zum Datenschutz

Ăśber den Anbieter

HeilgeiststraĂźe 51, 18439 Stralsund
partner badge
6 Jahre Partnerschaft
Herr Frank ZipperlingDein Kontakt
Online-ID: 2n5rw5h
IDEA-Immobilien & Verwaltungs GmbH
IDEA-Immobilien & Verwaltungs GmbH
Bewertung: 4,6 von 5 Sternen
Nachricht hinzufĂĽgen
Mit der Nutzung der oben angegebenen Telefonnummer oder durch Klicken auf „Kontaktieren“ akzeptierst Du die Allgemeinen Nutzungsbedingungen, denen Du jederzeit widersprechen kannst. Weitere Informationen zum Datenschutz
Wie zufrieden bist du mit dieser Seite (nicht mit der Immobilie selbst)?