Version: 8.24.0Navigation ĂĽberspringen
1.758 €
Immowelt logo

Sonstiges zur Miete
1.758 €

Gewerberaum in Preißelpöhl zu mieten verwirlkichen Sie sich selbst viel Platz !!

Merkmale

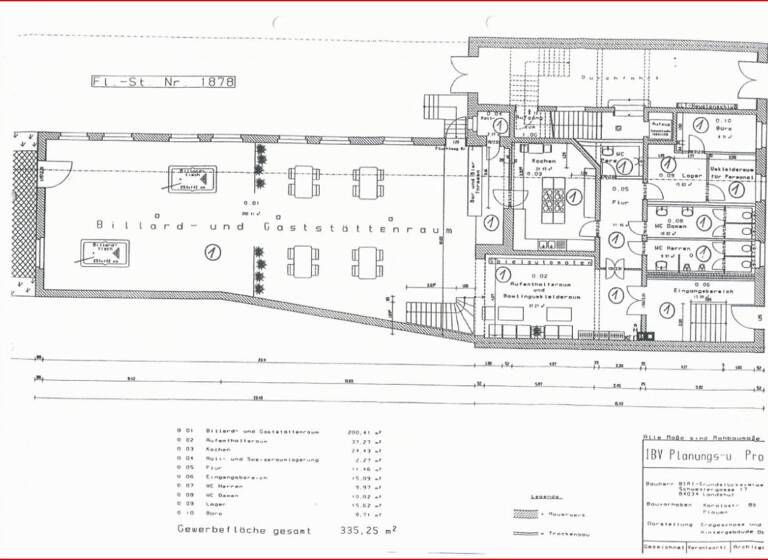
Diese großzügige Gewerbeimmobilie erstreckt sich über zwei Etagen und bietet eine Gesamtfläche von ca. 580 m² Nutzfläche. Ursprünglich als Kegelbahn genutzt, wurde das Objekt vollständig umgebaut und modernisiert, um eine flexible und vielseitige Nutzung zu ermöglichen.

Ausstattung und Merkmale
Erdgeschoss & Obergeschoss: Beide Etagen sind großflächig gestaltet, ideal für offene Konzepte. Die Räume lassen sich bei Bedarf flexibel unterteilen.

Gastro-Potenzial: Eine komplett ausgestattete Theke ist bereits vorhanden. Die Installation einer professionellen Gastroküche ist problemlos möglich, da die entsprechenden Anschlüsse vorbereitet sind.

Nebennutzung: Separate Büroräume und großzügige Lagerräume ergänzen das Raumangebot und bieten Platz für Verwaltung, Personal und Waren.

Nutzungskonzepte: Die Immobilie eignet sich nicht nur fĂĽr die Gastronomie, sondern auch hervorragend fĂĽr andere Zwecke, wie z.B. die Nutzung durch Vereine, als Veranstaltungsort oder fĂĽr Sport- und Freizeitangebote.

Zustand und Besonderheiten
Das Objekt befindet sich in einem umgebauten Zustand, was den Einzug und die Nutzung beschleunigt.

Es ist keine Kühlzelle vorhanden, was jedoch eine flexible und individuelle Anpassung an die eigenen Bedürfnisse ermöglicht.

Diese Immobilie bietet aufgrund ihrer flexiblen Raumgestaltung und der zentralen Lage viele Möglichkeiten zur Umsetzung verschiedenster Geschäftskonzepte.

Grundrisse

Grundrisse
1 / 2

Realisiere Dein Projekt

Bausubstanz und Energie

Der Anbieter hat keine Informationen zum Energieverbrauch bereit gestellt.
  • HeizungsartZentralheizung
  • EnergieträgerGas
Immowelt logo

Mietkosten

Warmmiete
2.858 €
Kaltmiete
1.758 €
Nebenkosten
1.100 €
Provision fĂĽr Mieter
Bitte beachte, das Angebot kann bei Vertragsabschluss die Zahlung einer Provision beinhalten. Weitere Informationen erhältst Du vom Anbieter.
Kaution
keine Angabe

Lage

address-icon
Karolsatraße 80, Haselbrunn, Plauen (08525)

Weitere Informationen

Stichworte Gesamtfläche: 586,00 m², Anzahl der separaten WCs: 2, 2 Etagen

Weitere Services

Lust auf eine Besichtigung?
Eine Frage zur Immobilie?
Nachricht hinzufĂĽgen
Mit der Nutzung der oben angegebenen Telefonnummer oder durch Klicken auf „Kontaktieren“ akzeptierst Du die Allgemeinen Nutzungsbedingungen, denen Du jederzeit widersprechen kannst. Weitere Informationen zum Datenschutz

Ăśber den Anbieter

Gabelsberger StraĂźe 13, 08523 Plauen
Herr Holger Richter
Herr Holger RichterDein Kontakt
Online-ID: 2kz9g5z
Referenznummer: K80GWE
Immobilien Scott GmbH
title
Immobilien Scott GmbH
Bewertung: 4,5 von 5 Sternen
Nachricht hinzufĂĽgen
Mit der Nutzung der oben angegebenen Telefonnummer oder durch Klicken auf „Kontaktieren“ akzeptierst Du die Allgemeinen Nutzungsbedingungen, denen Du jederzeit widersprechen kannst. Weitere Informationen zum Datenschutz
Wie zufrieden bist du mit dieser Seite (nicht mit der Immobilie selbst)?