Version: 8.25.1Navigation überspringen
1.800 €
5 Zimmer  •  140 m²  •  480 m² Grundstück

Einfamilienhaus zur Miete - Erstbezug
1.800 €
5 Zimmer  •  140 m²  •  480 m² Grundstück

Ohne Eigenkapital möglich. Mietkaufimmobilie abzugeben.

Mehrere Einfamilienhäuser preiswert abzugeben. Mietkauf möglich. Altschulden kein Hindernis. Kein Eigenkapital erforderlich.

Merkmale

  • 480 m² Grundstück
  • Gäste-WC
Neben kurzen Bauzeiten, innovativer Haustechnik, attraktiver Architektur und hochwertiger Manufaktur-Qualität bietet Ihnen das angebotene Schwabenhaus im All-Inclusive-Paket folgende Mehr-Werte:

- Bodenplatte inklusive Effizienzhaus 55 Perimeter-Dämmung unterhalb der Bodenplatte sowie stirnseitig
- Effizienzhaus 55 mit der Option zur Erweiterung auf Effizienzhaus 40 oder 40 Plus
- Klima-Komfort-Bauweise
- Zimmermannmäßiges Pfettendach
- Photovoltaik-Vorbereitung für die Ausführung einer Photovoltaik-Anlage
- Komplette Elektro-, Sanitär- und Heizungs-Installation inkl. Grundinstallation für das Schwabenhaus auf Schwabenhaus-Bodenplatte bzw. -Keller*
- Zukunftsweisende Elektro-Installation*
- Smart-Home-Technologie - Intelligentes Gebäude-Management für die Licht- und Rollladen-Steuerung*
- Elektrische Rollläden*¹
- Doppel-Wärmepumpe Eco+* für Heizen, Lüften, Kühlen, Luftreinigung und Warmwasser
- Hochwertige, mehrschichtige Holz-Haustür in vielfältigen Design-Lösungen, mit Sicherheitsschließzylinder, 5-fach- Sicherheits-Verriegelung und 3-Scheiben-Wärmeschutzverglasung
- Kunststoff-Fenster mit 3-Scheiben-Wärmeschutzverglasung
- Dachflächenfenster mit Kipp- und Schwingfunktion sowie elektrischen Rollläden*
- Außenfensterbänke aus Naturstein
- Innenfensterbänke aus Kunst- oder Naturstein*
- Massiv-Vollholz-Treppe
- Protect Versicherungs-Paket mit Wohngebäudeversicherung inkl. Elementarschutz, Haus- und Wohnungs-Schutzbrief, Bauleistungsversicherung und Bauherren-Haftpflichtversicherung sowie Job-Protect Versicherungs-Paket
- 10 sowie 30 Jahre Gewährleistung

*Ab Ausbaustufe "Fast-Vollendet"

Die aufgeführten Mehr-Werte und Leistungsinhalte beziehen sich ausschließlich auf das in der Schwabenhaus Bau- und Leistungsbeschreibung (BLB) beschriebene Technologie + Komfort-Paket "Blue-Edition". Die Mehr-Werte und Leistungsinhalte anderer Schwabenhaus Bau- und Leistungsbeschreibungen bzw. Technologie + Komfort-Pakete können hiervon abweichen.

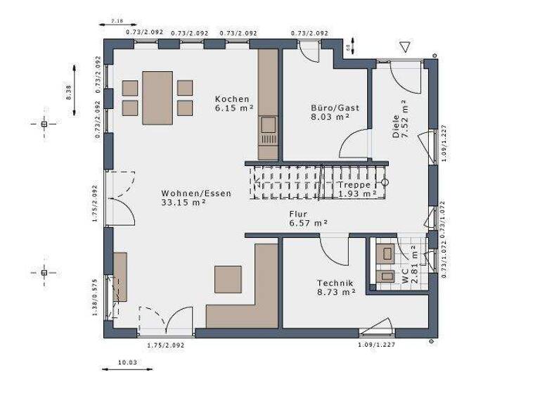
Grundrisse

Grundrisse
1 / 2

Realisiere Dein Projekt

Bausubstanz und Energie

Möchtest du Details zum Energieverbrauch?info_energy_calculation-icon
  • Zustand der ImmobilieNeubau, Erstbezug
  • HeizungsartFußbodenheizung

Mietkosten

Kaltmiete
12,86 €/m²
1.800 €
Kaution
keine Angabe
Weitere Preisinformationen
Nettokaltmiete: 1.800,00 EUR

Lage

address-icon
HülsMarl (45772)
Der Anbieter hat die genaue Adresse nicht freigegeben
Die Umgebung bietet eine gute Infrastruktur: Einkaufsmöglichkeiten, Schulen, Kindergärten sowie medizinische Versorgungseinrichtungen sind schnell erreichbar und sorgen für eine komfortable Versorgung im Alltag.

Dank der guten Verkehrsanbindung sind sowohl das Marler Stadtzentrum als auch umliegende Städte des Ruhrgebiets zügig erreichbar. Öffentliche Verkehrsmittel sowie nahegelegene Hauptverkehrswege gewährleisten eine flexible Mobilität. Erholungs- und Freizeitmöglichkeiten wie Parks, Spazierwege, Sportanlagen und kulturelle Einrichtungen befinden sich in der näheren Umgebung und schaffen ein attraktives Umfeld für verschiedene Freizeitaktivitäten. Insgesamt bietet die Lage eine angenehme Kombination aus Wohnruhe, guter Erreichbarkeit und vielfältigen Angeboten für den täglichen Bedarf.

Weitere Informationen

Sonstiges Miet-Kauf möglich. Bonität vorausgesetzt. Alle Angaben ohne Gewähr. Ohne Einsatz von Eigenkapital möglich. Altschulden, Verbindlichkeiten kein Hindernis. Abbildungen können Extras beinhalten. Ausgewiesener Preis exklusiv Erwerb und sonstigen Baunebenkosten. Bitte haben Sie Verständnis, das die Anfragen chronologisch bearbeitet werden und nur mit kompletten Kontaktdaten beantwortet werden Telefonnummer, Vor- und Zuname und E-Mail. Es handelt sich um ein reales Projekt. Termine nur nach Vereinbarung in einem unserer regionalen Info-Center.

Anbauteile, Carport, Garage und Keller können Extras sein, die als Sonderausstattung angeboten werden. Abbildungen, Grundrisse und Flächenangaben sind beispielhaft und können Extras zeigen. Flächenangaben nach DIN 277.

Profitieren Sie jetzt von der Schwabenhaus Online Beratung und verwirklichen Sie Ihr Traumhaus https://www.schwabenhaus.de/anmeldung-hausbau-beratung-online/ Stichworte Anzahl der Schlafzimmer: 3, Anzahl der Badezimmer: 1, Anzahl der separaten WCs: 1

Weitere Services

Lust auf eine Besichtigung?
Eine Frage zur Immobilie?
Mit einer persönlichen Nachricht hast du bessere Chancen auf eine Antwort.
Mit der Nutzung der oben angegebenen Telefonnummer oder durch Klicken auf „Kontaktieren“ akzeptierst Du die Allgemeinen Nutzungsbedingungen, denen Du jederzeit widersprechen kannst. Weitere Informationen zum Datenschutz

Über den Anbieter

Fertighauswelt 18, 42279 Wuppertal
partner badge
Partnerschaft
Roy SchleineckeDein Kontakt
Keine Telefonnummer hinterlegt
Keine Telefonnummer hinterlegt
Online-ID: 25L1YMYYRX5M
Referenznummer: ROY-MIE-10-366907
Schwabenhaus Wuppertal – Roy Schleinecke Handelsvertretung für die Schwabenhaus GmbH
Mit einer persönlichen Nachricht hast du bessere Chancen auf eine Antwort.
Mit der Nutzung der oben angegebenen Telefonnummer oder durch Klicken auf „Kontaktieren“ akzeptierst Du die Allgemeinen Nutzungsbedingungen, denen Du jederzeit widersprechen kannst. Weitere Informationen zum Datenschutz
Wie zufrieden bist du mit dieser Seite (nicht mit der Immobilie selbst)?