Version: 8.22.4Navigation überspringen
FH-Real Gmbh
700 €
1 Zimmer  •  55 m²

Studio zur Miete
700 €
Nettokaltmiete
1 Zimmer  •  55 m²

Charmante ruhige Garçonnière mit Balkon und Grünblick in Hietzing - Ober St. Veit !

Willkommen in Ihrem neuen Zuhause - einer charmanten Garçonnière im Herzen von Hietzing in Ober Sankt Veit. Diese gepflegte Einzimmerwohnung mit einer großzügigen Wohn-Fläche von 55m² und einem Balkon von ca. 7m² bietet alles, was Sie für ein komfortables und modernes Leben benötigen.

Für nur € 956,35 monatlich können Sie die Vorzüge dieser einzigartigen Immobilie mindestens 5 Jahre genießen. Das lichtdurchflutete Zimmer besticht durch einen durchdachten Grundriss, der Ihnen ausreichend Platz für Ihre persönliche Note bietet. Die hochwertigen Parkett- und Fliesenböden sorgen nicht nur für stilvolles Ambiente, sondern sind auch pflegeleicht und langlebig.

Ein besonderes Highlight dieser Garçonnière ist der Balkon, der Ihnen einen herrlichen Ausblick bietet - sowohl auf die pulsierende Stadt als auch auf die grüne Umgebung. Stellen Sie sich vor, wie Sie an lauen Sommerabenden auf Ihrem Balkon entspannen und den Blick in die grüne Umgebung schweifen lassen.

Die Wohnung ist mit einer modernen Einbauküche ausgestattet, die alle erforderlichen Geräte enthält, um kulinarische Köstlichkeiten zu zaubern. Die Regen-Dusche im Badezimmer sorgt für einen erfrischenden Start in den Tag. Zudem ist die Wohnung mit einer zentralen Gasheizung ausgestattet, die für eine angenehme Wärme sorgt, sowie eine Kabel TV Anschlussmöglichkeit (Magenta), sodass Sie immer bestens unterhalten sind.

Diese Garçonnière ist nicht nur ein Ort zum Wohnen, sondern ein Ort, an dem Sie sich wohlfühlen und Ihren Lebensstil entfalten können. Zögern Sie nicht und sichern Sie sich dieses attraktive Angebot in einer der begehrtesten Lagen Wiens. Ein neues Kapitel in Ihrem Leben könnte hier beginnen!

Für weitere Informationen oder Besichtigungen senden Sie uns bitte vorab Ihre Anfrage per mail unter: office@fh-real.at. Weiterführend steht Ihnen gerne Herr Erwin Sedlacek +43 664 348 3399 [tel:+436643483399] zur Verfügung.

Wir bitten Sie um Verständnis, dass wir aufgrund der Nachweispflicht gegenüber dem Eigentümer nur Anfragen mit vollständiger Anschrift, Emailadresse und Telefonnummer beantworten dürfen. Vertrauliche Informationen können nur mit ausgefüllten Daten weitergegeben werden. Alle Objektinformationen basieren auf den Angaben des Abgebers.

Wir weisen darauf hin, dass zwischen dem Vermittler und dem zu vermittelnden Dritten ein familiäres oder wirtschaftliches Naheverhältnis besteht.

Der Immobilienmakler erklärt, dass er - entgegen dem in der Immobilienwirtschaft üblichen Geschäftsgebrauch des Doppelmaklers - einseitig nur für den Vermieter tätig ist.

Infrastruktur / Entfernungen

Gesundheit
Arzt <500m
Apotheke <500m
Klinik <2.000m
Krankenhaus <1.000m

Kinder & Schulen
Schule <500m
Kindergarten <500m
Universität <1.000m
Höhere Schule <4.500m

Nahversorgung
Supermarkt <500m
Bäckerei <500m
Einkaufszentrum <4.000m

Sonstige
Geldautomat <500m
Bank <500m
Post <500m
Polizei <1.000m

Verkehr
Bus <500m
U-Bahn <500m
Straßenbahn <1.000m
Bahnhof <500m
Autobahnanschluss <4.000m

Angaben Entfernung Luftlinie / Quelle: OpenStreetMap

Merkmale

  • Bezug: sofort
  • Einbauküche
  • Balkon
  • Garten
  • Bad mit Dusche
  • Waschraum
  • Bodenbelag: Fliesen, Parkett
  • voll erschlossen

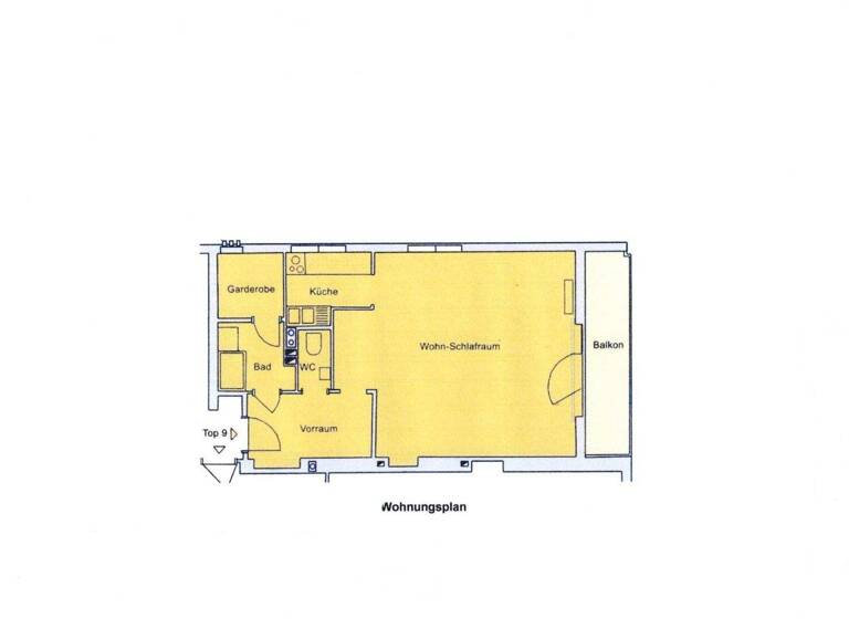
Grundrisse

Grundrisse
1 / 1

Realisiere Dein Projekt

Bausubstanz und Energie

Heizwärmebedarf (HWB)

C

Gesamtenergieeffizienz (fGEE)

C
  • Baujahr1961
  • Zustand der ImmobilieNeubau, Gepflegt
  • HeizungsartEtagenheizung
  • EnergieträgerGas
MediumRectangleTop

Mietkosten

Gesamtmiete
956,35 €
Nettokaltmiete
17,15 €/m²
700 €
Betriebskosten
100,19 €
Kaution
3000 €
Weitere Preisinformationen
Nettokaltmiete: 700,00 EUR

Lage

address-icon
Wien (1130)
Diese charmante Garçonnière im ruhigen Hietzing im Teil Ober St. Veit, besticht durch ihre ideale Lage. Nur einen Katzensprung entfernt finden Sie eine Vielzahl von Annehmlichkeiten für den täglichen Bedarf wie: Ärzte, Apotheken, Bäckerei, Optiker, Cafe`s, Restaurants und Heurige sowie die U-Bahn Station U4. Das Sankt Josef-Krankenhaus ist fußläufig erreichbar. Die Anbindung an öffentliche Verkehrsmittel wie Bus, Straßenbahn und U-Bahn ermöglicht eine schnelle Erreichbarkeit des Stadtzentrums. Ein wahres Lebensgefühl in urbaner Umgebung!

Weitere Informationen

Stichworte Nord-Ost-Balkon/Terrasse, Fahrradraum, Anzahl der Badezimmer: 1, Anzahl der separaten WCs: 1, Anzahl Balkone: 1, Balkon-Terrassen-Fläche: 7,00 m², Kellerfläche: 4,00 m², Bundesland: Wien, 2 Etagen, modernisiert: 2004

Weitere Services

Lust auf eine Besichtigung?
Eine Frage zur Immobilie?
Nachricht hinzufügen
Mit der Nutzung der oben angegebenen Telefonnummer oder durch Klicken auf „Kontaktieren“ akzeptierst Du die Allgemeinen Nutzungsbedingungen, denen Du jederzeit widersprechen kannst. Weitere Informationen zum Datenschutz

Über den Anbieter

FH-Real Gmbh
FH-Real GmbhMaklerbüro
Hauptplatz 10/3, 3002 Purkersdorf
partner badge
6 Jahre Partnerschaft
Herr Erwin SedlacekDein Kontakt
Online-ID: 2nge457
Referenznummer: OBGC2025121010171946988586e3400
FH-Real Gmbh
FH-Real Gmbh
Nachricht hinzufügen
Mit der Nutzung der oben angegebenen Telefonnummer oder durch Klicken auf „Kontaktieren“ akzeptierst Du die Allgemeinen Nutzungsbedingungen, denen Du jederzeit widersprechen kannst. Weitere Informationen zum Datenschutz
MediumRectangleTop
MediumRectangleBottom
MediumRectangleTop
Wie zufrieden bist du mit dieser Seite (nicht mit der Immobilie selbst)?